Eladó családi ház Érd 184 900 000 Ft

Leírás

PRÉMIUM IKERHÁZ ELADÓ ÉRD FENYVESI RÉSZEN, PANORÁMÁS TERASSZAL !

Rengeteg extrával:
elektromos redőny, üvegkorlát, mennyezet hűtés-fűtés !

Érd Fenyves Parkváros keresett részen prémium minőségű ikerház épül. Az épületek dupla állásos garázzsal érintkeznek csak, lakótérrel nem.
Így semmilyen hang nem zavarhatja a nyugalmát.
Közös, térkövezett szolgalmi úttal , mely széles és kényelmes parkolást és közlekedést biztosít. Ez az épület az utcafronti.
Az ingatlant a 2025-ös év kedvezményes feltételeivel tudja megvásárolni, az építkezés céges.
Foglalja le már most leendő otthonát 10%-al. Az építkezés 80 %-os készültségnél tart, már csak a burkolatokat, szanitereket és ajtókat kell kiválasztania .
A környéken rengeteg referencia ház, amit közösen megtekinthetünk segítve a döntést.
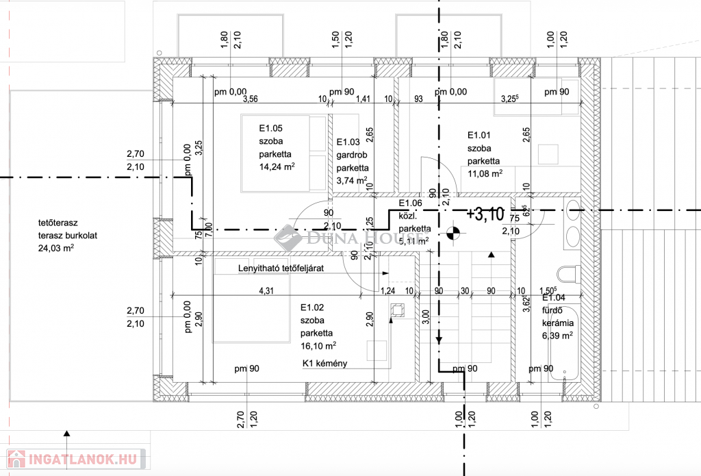
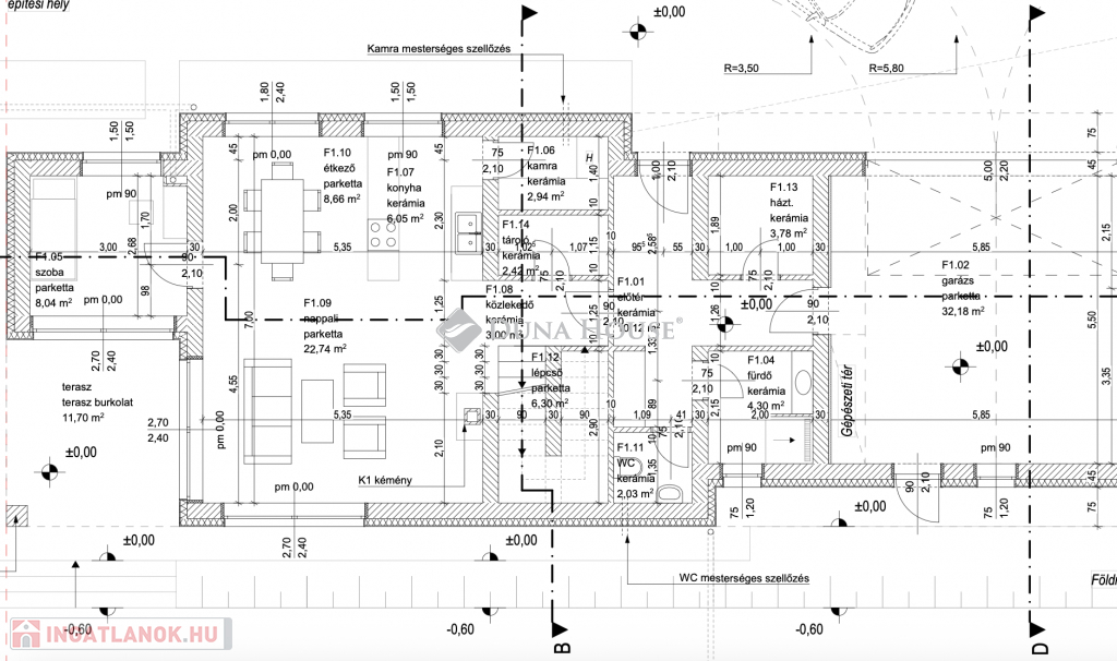
Az ingatlan nettó hasznos területe 174 m2 lakótér + 36 m2-es dupla állásos garázs, 2 db terasz és 2 db erkély, 500 m2 telekkel.
A helyiségek napfényesek, köszönhetően a jó tájolásnak és a jó méretű egyedi nyílászáróknak.
Elosztását tekintve:
Földszint:- Előszoba- 1 jó méretű hálószoba- Tágas , amerikai konyhás nappali- Kamra- Fürdőszoba- Háztartási helyiség- Tároló- 2 állásos garázs - 11 m2-es fedett terasz- 553 m2-es saját kert
Emelet:- 3 szoba terasszal és erkéllyel / 23 m2-es/, ahonnan hangulatos kilátás tárul elénk- Fürdőszoba

EXTRÁK:- Mennyezet hűtés-fűtés- Elektromos alumínium redőnyök- Térkövezett út - Üvegkorlát- Hörmann elektromos garázskapu
Műszaki adatok:- 30-as Leier tégla, 10 cm válaszfalak- 15 cm homlokzati szigetelés- Hőszivattyú 200 literes használati meleg víz tartállyal- H- tarifás mérőszekrény kialakítás
Minden helyiségben padlófűtés
Betoncserép- 3 rétegű 6 légkamrás egyedi fa nyílászárók, kívül-belül antracit kivitelben- 2 db autónak kocsibeálló- Riasztó előkészítése- Szaniterek- Hideg/meleg burkolatok ( 10 000 Ft/m2 meleg: 7 000 Ft/ m2 )- Beltéri ajtók ( 90 000 Ft/ db )- Bejárati ajtó

Környék rendezett, minden perceken belül elérhető. Iskola, óvoda, bevásárlási lehetőségek, M7 autópálya.
Várható átadás: 2026 Március

Ha megtekintené az ingatlant, kérem hívjon bizalommal.

Családi ház részletei

Ár: 184 900 000 Ft
Méret: 174 négyzetméter
Azonosító: 11587838
Irodai azonosító: HZ036496-5110254
Cím: 174 nm-es ház eladó Érd
Telek: 500 négyzetméter
Ingatlan állapota: Épülő
Jelleg: ikerház
Építőanyag: Tégla
Fűtés jellege: Villany
Fűtés módja: Hőszivattyú
Komfort fokozat: Összkomfort
Kor: Új építésű
Szintek száma: Földszintes
Egész szobák: 5

Egyéb jellemzők

  • Garázs

Térkép

Hasonló családi ház hirdetések

Eladó családi ház

Érd

Budapest vonzáskörzetében, Érden eladásra kínálunk nettó 157 nm alapterületű ...

Eladó családi ház

Érd

ÖRÖK PANORÁMÁS, ÖNÁLLÓ CSALÁDI HÁZ, NAGY TELEKKEL kiemelkedő minőségben! DÍJNYERTES ...

Eladó családi ház

Érd

Kedves Ingatlankereső! Ajánlom figyelmébe ezt a TÁRSASHÁZAT! Szeretné ...

Eladó családi ház

Érd

Kedves Ingatlankereső!!! Ajánlom figyelmébe ezt a LUXUS kivitelű családi ...

Hasonló családi ház hirdetések

Eladó családi ház

Érd

Budapest vonzáskörzetében, Érden eladásra kínálunk nettó 157 nm alapterületű ...

Eladó családi ház

Érd

ÖRÖK PANORÁMÁS, ÖNÁLLÓ CSALÁDI HÁZ, NAGY TELEKKEL kiemelkedő minőségben! DÍJNYERTES ...

Eladó családi ház

Érd

Kedves Ingatlankereső! Ajánlom figyelmébe ezt a TÁRSASHÁZAT! Szeretné ...

Eladó családi ház

Érd

Kedves Ingatlankereső!!! Ajánlom figyelmébe ezt a LUXUS kivitelű családi ...