Eladó családi ház Érd 70 000 000 Ft

Leírás

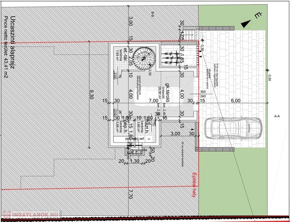
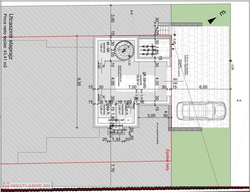
Eladásra kínálok Érden, Érdparkvárosban, az M7-es és M0-ás útvonalak által körülhatárolt területrészén, a településnek egy természetközeli, nagyon csendes részén, 816 nm alapterületű, téglalap alakú, kb. 25-26 méter széles, összközműves telken álló, 128 nm alapterületű lakásterülettel, 2 szintes, szinteltolásos, 4 szobás, 3 teraszos, 2 fürdőszobás, gardróbos, szerkezetkész állapotú családi házat, pinceszinten 43 nm-es garázzsal, nagy hátsó kerttel, a hátsó kertben bontandó kis házzal.

A ház építése 2020-ban kezdődött, a terep- és domborzati viszonyoknak megfelelően kialakított, pincézett, beton alapzattal és beton födémszerkezettel, B30-as tégla falazat alkalmazásával szerkezetkész állapotig jutott el és családi okok miatt nem készült el. Az épületet a tulajdonos saját magának építette a kornak megfelelő korszerű és használt technológiáinak felhasználásával.

Az ingatlanról a tervrajzok egy részét és néhány friss belső és külső fotót tettem közzé.

Tulajdonságok:
Építési övezet: Lke-1(h)
Beépítési mód: SZ (szabadonálló)
Telek terület: 816 m2
Földszinti bruttó beépítés: 163 m2
Beépítettség: 163/816=19,9%, 25% (megengedett)
Terepszint alatti beépítés: 59 m2
Szintterület mutató: (59+163)/816=0,27, 0,38 (megengedett)
Zöldterület: 573 m2/816 m2=70,2% 50% (előírt)
Épületmagasság: 3,87 m 6,00 m (megengedett)
Gk.tárolás: 1 db gk.tároló épületen belül
Kerékpár tárolás: 1 db elhelyezhető a telken
Előkert: 6,00 m (HÉSZ szerint)
Oldalkert(legkisebb) 3,00 m 3,00 m (előírt)
Hátsókert(legkisebb): 18,60 m 6,00 m (megengedett)
Lakásterület: 171,18 m2 204 m2 (megengedett)

Műszaki állapot: a házat alapos tervezés, és eddigi állapotának megfelelő kivitelezés jellemzi, mely a tulajdonos törekvése volt. A lapostető kavicsolt bitumenlemezfedés.

Környék: Érd fiatal családi házas övezetében Érdparkvárosban helyezkedik el. Iskola, óvoda, bevásárlási lehetőségek, orvos, patika, játszótér néhány perc alatt elérhető, mind a közelben megtalálható.

Ajánlom azoknak, akik a térségben, Érden vagy környékén modern, lapostetős, tágas és világos kertes házra vágynak nagy nyílászárókkal, tolóajtókkal, melyet saját ízlésük szerint tudnak kialakítani és lakható állapotúra befejezni.

Az építési engedélyek a használatba vételi engedélyezés megvalósításához és az építkezés befejezéséhez a következő 3 évben még adottak.

Adatkezelés
Ezúton tájékoztatjuk, hogy Ön mint érdeklődő, a hirdetésben megjelölt telefonszám felhívásával hozzájárul személyes adatai – így különösen neve és telefonszáma -, a hirdetést feladó FORTISElit Ingatlan Kft. általi - biztonságos és körültekintő - kezeléséhez, nyilvántartásához. E körben, keresse a FORTISELIT ingatlaniroda weboldalát adatkezelési tájékoztatót.

We hereby inform you that You as an interested party, by calling the phone number mentioned in the advertisement, contribute to be your personal data – especially your name and phone number – handled and recorded safe and circumspectively by FORTISElit Ingatlan Kft as advertiser. Hereby, you can learn our Privacy Policy.

Finanszírozás:
Adatbázisunkban további több ezer ingatlanból választhat, hívjon bizalommal, hogy megtaláljuk a legmegfelelőbbet!
Hitelre van szüksége? Teljes körű és díjmentes hitel-ügyintézéssel, biztosításkötéssel áll rendelkezésére szakértő kollégánk. Kérje személyre szabott ajánlatunkat!

Családi ház részletei

Ár: 70 000 000 Ft
Méret: 171 négyzetméter
Azonosító: 11574450
Irodai azonosító: 339842
Telek: 816 négyzetméter
Ingatlan állapota: Épülő
Jelleg: családi ház
Építőanyag: Tégla
Komfort fokozat: Összkomfort
Egész szobák: 4

Egyéb jellemzők

  • Garázs
  • Terasz

Hasonló családi ház hirdetések

Eladó családi ház

Érd

Az ingatlanra Otthon Start hitel igénybe vehető! Érd központjától (Stop ...

Eladó családi ház

Érd

Kedves Ingatlankereső! Ha kedvet kapott egy felújításhoz akkor ajánlom ...

Eladó családi ház

Érd

PRAKTIKUS KIS HÁZ - SZUPER KÖRNYÉKEN! Érden eladó iskolák, óvodák, ...

Eladó családi ház

Érd

Érd kertvárosi környezetében, Tusculanum városrészben, csendes utcában, ...

Hasonló családi ház hirdetések

Eladó családi ház

Érd

Az ingatlanra Otthon Start hitel igénybe vehető! Érd központjától (Stop ...

Eladó családi ház

Érd

Kedves Ingatlankereső! Ha kedvet kapott egy felújításhoz akkor ajánlom ...

Eladó családi ház

Érd

PRAKTIKUS KIS HÁZ - SZUPER KÖRNYÉKEN! Érden eladó iskolák, óvodák, ...

Eladó családi ház

Érd

Érd kertvárosi környezetében, Tusculanum városrészben, csendes utcában, ...