Eladó családi ház Göd 139 900 000 Ft

Leírás

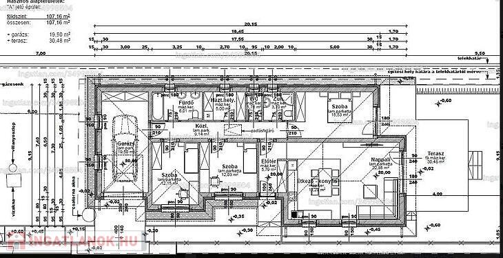
Göd központi részén eladó egy 122 nm-es, újépítésű családi ház, 450 nm-es saját kerttel.

Az ingatlan 30-as téglából épül, 15 cm-es EPS szigeteléssel és háromrétegű műanyag nyílászárókkal, amelyek stabil és jól szigetelt otthont biztosítanak. A fűtést hőszivattyú látja el, a teljes ház padlófűtéses.

Az elrendezés átgondolt: amerikai konyhás nappali, négy szoba, háztartási helyiség, egy zuhanyzós és egy kádas fürdőszoba szolgálja a kényelmet.

A cserépfedés tartós megoldást ad, a tervezett garázs helyett pedig igény esetén egy plusz szoba is kialakítható.

Az ingatlan jó elhelyezkedése és modern műszaki tartalma hosszú távon is kényelmes, jól használható otthont biztosít.

várható átadás: 2026. október

Jelen esetben foglalózás után, hideg meleg burkolatok, beltéri nyílászárók, szaniterek választhatóak melyek a meghirdetett ár részét képezik a belső műszaki tartalom szerint



Megtekintés érdekében vagy felmerülő kérdés esetén keresse irodánkat.

A hirdetésben szereplő adatok tájékoztató jellegűek.

Az ingatlan hitelre is megvásárolható. Bankfüggetlen tanácsadóink, az ország összes pénzintézete közül gyorsan és gördülékenyen találja meg az Önnek legmegfelelőbb konstrukciót, egyedi kedvezményekkel. A hitel és az ingatlan közvetítés vevőink részére díjmentes.

Családi ház részletei

Ár: 139 900 000 Ft
Méret: 122 négyzetméter
Azonosító: 11599079
Irodai azonosító: 24685
Telek: 450 négyzetméter
Ingatlan állapota: Épülő
Jelleg: családi ház
Építőanyag: Kérdezzen rá a hirdetőtől »
Fűtés jellege: Egyéb
Szintek száma: Földszintes
Egész szobák: 4

Hasonló családi ház hirdetések

Eladó családi ház

Göd

ÁLOMOTTHON GÖDÖN – AZONNAL KÖLTÖZHETŐ, TEHERMENTES CSALÁDI HÁZ! Eladó ...

Eladó családi ház

Göd

ÚJ ÉPÍTÉSŰ ÖNÁLLÓ, EGY SZINTES CSALÁDI HÁZ ELADÓ! CSALÁDI OTTHONTEREMTÉSI ...

Eladó családi ház

Göd

Modern, energiatakarékos ikerházfél eladó Felsőgöd-Neveleken, közvetlenül ...

Eladó családi ház

Göd

Eladóvá vált egy gyönyörű, önálló családi ház ...

Hasonló családi ház hirdetések

Eladó családi ház

Göd

ÁLOMOTTHON GÖDÖN – AZONNAL KÖLTÖZHETŐ, TEHERMENTES CSALÁDI HÁZ! Eladó ...

Eladó családi ház

Göd

ÚJ ÉPÍTÉSŰ ÖNÁLLÓ, EGY SZINTES CSALÁDI HÁZ ELADÓ! CSALÁDI OTTHONTEREMTÉSI ...

Eladó családi ház

Göd

Modern, energiatakarékos ikerházfél eladó Felsőgöd-Neveleken, közvetlenül ...

Eladó családi ház

Göd

Eladóvá vált egy gyönyörű, önálló családi ház ...