Eladó családi ház Gyál 112 990 000 Ft

Leírás

ELADÓ ÚJ ÉPÍTÉSŰ, MODERN IKERHÁZ GyÁLON – PRÉMIUM MINŐSÉG, MAGAS MŰSZAKI TARTALOM!!!

Gyál, Gyálszőlő városrészében, csendes és családias környezetben eladásra kínálunk egy belső kétszintes, 121,87- m²-es, 136,87 m²-es amerikai konyhás nappali + 4 hálószobás ikerházat, amely a 2025-ös szigorú környezetvédelmi és energetikai elvárásoknak teljes mértékben megfelel!

Fedezze fel ezt a lenyűgöző, kétszintes ikerházat, amely Gyál csendes mellékutcájában várja új tulajdonosát. A két lakás külön bejárattal, saját utcafronttal és egyedi telek-résszel rendelkezik, garantálva a privát életérzést.

A lakás jellemzői:
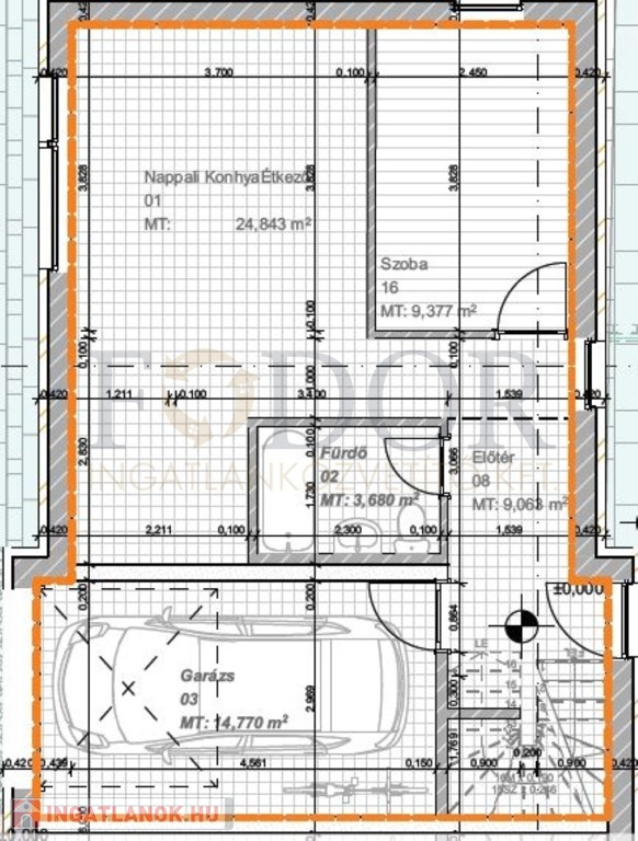
• Hasznos lakóterület: 105,5-121,18 m² – Tágas amerikai konyhás nappalik, 4 külön be-járatú hálószoba és gardróbszoba.
• Két szint, két fürdőszoba, 8,95 m²-es terasz és 9,96 m²-es terasz a pihenéshez.
• Szintenként padlófűtés, fürdőszobákban törölközőszárítós radiátorok.
• 16 m²-es szekcionált garázs ajtó + motorral az árban.
• Kertkapcsolatos nappali a pihenés és a szórakozás jegyében.
• Hőszivattyús rendszer, modern energia hatékony megoldások: A lakások még jobb komfortjának érdekében a fűtéshez/hűtéshez kiegészítő oldafali fan coil is kapcsolódik emeleten lakószobákban, földszinten nappaliban

Minőségi kivitelezés, prémium alapanyagok:
• Leier 30 cm-es főfal + 12 cm homlokzati szigetelés a maximális energiahatékonyságért.
• Fischer hőszivattyú + 240 L melegvíztároló a fűtéshez és a meleg vízhez.
• Prémium kategóriás Kömmerling 3 rétegű, 66 légkamrás hő- és hangszigetelt nyílászárók kívül barna, belűről fehér színben a kellemes belső klímáért.
• Alumínium manuális redőnyök és szúnyoghálók, kívül barna, belűről fehér színben.
• Térkövezett kocsibejáró és személyi bejáró, az egész ház körül.

A jelű lakás br:121 m2, 8,95 m2 terasz, 16,37 m2 garázs, 201 m2 privát telekterület 112.990.000 MFt.

B jelű lakás br:136 m2, 9,96 m2 terasz, 15,69 m2 garázs, 360 m2 privát telekterület 129.990.000 MFt.

Ügyvéd által ellenjegyzett használati megosztással kerülnek értékesítésre az ingatlanok!!!

Környék:
• Kiváló infrastruktúra: Minden fontos szolgáltatás, iskola, bevásárlóközpont, és tő-megközlekedési lehetőség pár perc sétára.


Ne hagyja ki ezt a páratlan lehetőséget!

Az ingatlan várható átadása 2026. I. negyedév.

Az ár a kulcsrakész állapotra vonatkozik, az Ön igényei szerint választhatóak burkolatok, szaniterek, és beltéri ajtók.

Keressen minket bizalommal, és kérjen bővebb tájékoztatást!
Finanszírozás:

• A projekt kamattámogatott hitellel, CSOK és Babaváró támogatással is elérhető!

• Irodánk ingyenes hitelügyintézést és tanácsadást biztosít, segítünk a legjobb banki ajánlatok kiválasztásában.

Családi ház részletei

Ár: 112 990 000 Ft
Méret: 121 négyzetméter
Azonosító: 11608724
Irodai azonosító: 344734
Telek: 201 négyzetméter
Ingatlan állapota: Kitűnő
Jelleg: ikerház
Építőanyag: Tégla
Komfort fokozat: Dupla komfort
Kor: Új építésű
Egész szobák: 5

Egyéb jellemzők

  • Garázs
  • Terasz

Hasonló családi ház hirdetések

Eladó családi ház

Gyál

Egyedi hangulatú családi ház Gyál szívében – ahol ...

Eladó családi ház

Gyál

Csak az irodánk kínálatában! AZ ELSŐ KÉT VEVŐ SZÁMÁRA BRUTTÓ 3.000.000. ...

Eladó családi ház

Gyál

Eladó 4 szobás új építésű ikerház Gyál csendes, zöldövezeti részén! Ez ...

Eladó családi ház

Gyál

Gyál egyik csendes, családbarát részén eladó két igényesen megtervezett, ...

Hasonló családi ház hirdetések

Eladó családi ház

Gyál

Egyedi hangulatú családi ház Gyál szívében – ahol ...

Eladó családi ház

Gyál

Csak az irodánk kínálatában! AZ ELSŐ KÉT VEVŐ SZÁMÁRA BRUTTÓ 3.000.000. ...

Eladó családi ház

Gyál

Eladó 4 szobás új építésű ikerház Gyál csendes, zöldövezeti részén! Ez ...

Eladó családi ház

Gyál

Gyál egyik csendes, családbarát részén eladó két igényesen megtervezett, ...