Eladó családi ház Gyál 129 990 000 Ft

Leírás

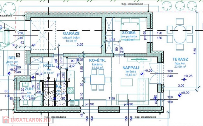
Gyál csendes, kertvárosi részén, , új építésű, kétszintes, 135 m2-es, nappali + 4 szobás, garázsos, utca felőli családi ház kulcsrakészen 351 m2-es, összközműves telekrészen 2025 nyár végi átadással, kulcsrakészen, 11 KW-os csúcskategóriájú Daikin hőszivattyúval, 3 db. fűtő-hűtő inverteres klímával eladó. Az udvar felőli, 142 m2-es, szintén nappali + 4 szobás ház 450 m2-es telekrésszel már elkelt.

Vasbeton sávalap, 30 cm-es Porotherm tégla főfalak 15 cm-es dryvit hőszigeteléssel. 30 cm. hőszigetelés a födémen. 24 KW-os kondezációs gázkazán biztosítja a fűtést és a meleg víz ellátást. Padlófűtés és radiátoros hőleadók. Törölközőszárítós radiátor a fürdőszobában. Terrán betoncserép héjalás. Festés, burkolás, szaniterek választhatóak. Riasztó vezetékelve. Bejárati kapuhoz elektromos kiállás kiépítve. Hőszigetelt, szekcionált garázskapu. Műanyag, fehér, 7 légkamrás, 3 rétegű üvegezésű ablakok. Rejtett redőnytokos, elektromos, alumínium redőnyök. Fehér mdf. felületű, belső ajtók. Geberit tartályos wc-k. Épített zuhany. Hőszigetelt padlásfeljáró.

CSOK plusz igényelhető.Az ország szinte összes bankjának a termékeit is kínáljuk egyedi kedvezményekkel, díjmentes ügyintézéssel. Hívjon bizalommal.

Családi ház részletei

Ár: 129 990 000 Ft
Méret: 135 négyzetméter
Azonosító: 11352500
Erkély mérete: 15.00 négyzetméter
Telek: 351 négyzetméter
Ingatlan állapota: Kitűnő
Jelleg: családi ház
Építőanyag: Kérdezzen rá a hirdetőtől »
Szintek száma: 2 szint
Egész szobák: 5

Egyéb jellemzők

  • Csatorna
  • Garázs
  • Kábel TV
  • Melléképület
  • Parketta
  • Pince
  • Terasz

Hasonló családi ház hirdetések

Eladó családi ház

Gyál

ÚJÉPÍTÉSŰ IKERHÁZ GYÁLON – KIVÁLÓ MINŐSÉG, ENERGIATAKARÉKOS ...

Eladó családi ház

Gyál

Egyedi hangulatú családi ház Gyál szívében – ahol ...

Eladó családi ház

Gyál

CSAK AZ IRODÁNK KÍNÁLATÁBAN ! AZ ELSŐ KÉT VEVŐ SZÁMÁRA BRUTTÓ 3.000.000. ...

Eladó családi ház

Gyál

IGAZI KIS GYÖNGYSZEM GYÁL SZÍVÉBEN – TELJESKÖRŰEN FELÚJÍTOTT, MESEBE ...

Hasonló családi ház hirdetések

Eladó családi ház

Gyál

ÚJÉPÍTÉSŰ IKERHÁZ GYÁLON – KIVÁLÓ MINŐSÉG, ENERGIATAKARÉKOS ...

Eladó családi ház

Gyál

Egyedi hangulatú családi ház Gyál szívében – ahol ...

Eladó családi ház

Gyál

CSAK AZ IRODÁNK KÍNÁLATÁBAN ! AZ ELSŐ KÉT VEVŐ SZÁMÁRA BRUTTÓ 3.000.000. ...

Eladó családi ház

Gyál

IGAZI KIS GYÖNGYSZEM GYÁL SZÍVÉBEN – TELJESKÖRŰEN FELÚJÍTOTT, MESEBE ...