Eladó családi ház Győr 64 500 000 Ft

Leírás


Új Építésű Lakások - Beruházótól! – Menjen biztosra, foglalja le most! 2025 szeptemberben  indul a B TÖMB építse, a Hegyalja Lakóparkban Győrújbaráton, egy modern és igényes sorházas lakóprojektben, ahol 3 ingatlan közül választhat, amire már most lehetőség van szerződni.  

Fűtéskész átadás 2026 áprilisában lesz, a hirdetési ár erre vonatkozik (B tömb L2)!

A B tömb középső lakásának fűtéskész ára: (L2) 64,5 M Ft

A B tömb szélső lakásának fűtéskész ára: (L1) 66,5 M Ft  

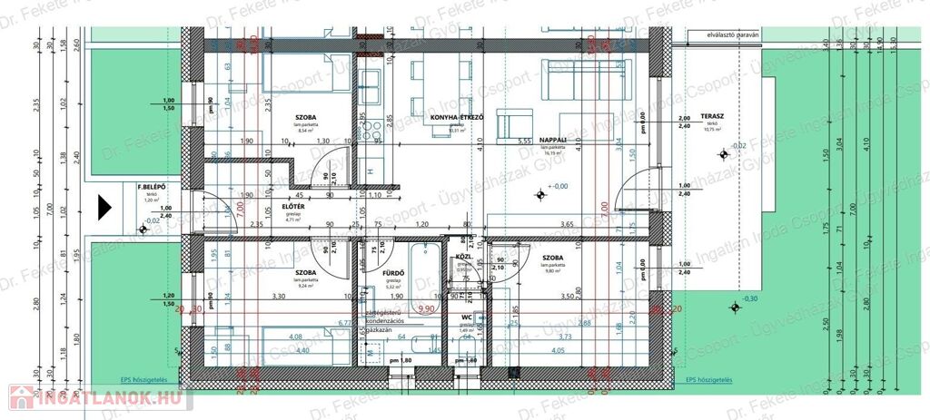
Minden lakás mérete megegyezik, csak a kert mérete változó.(Lásd alaprajzok)

Lakótér 66,55 nm (nappali + 3 szoba) fürdő - WC (egyben és külön) padlástér cca. 6 nm, lenyitható lépcsővel. 

Terasz a középső lakásnál: 14,3 nm. 

Kertkapcsolat a középső lakásnál: 72,17 nm + előkert 10,64 nm

 

Az ingatlanok 100%-os szerkezeti és közmű készültséggel kerülnek átadásra, igény szerint kulcsrakész állapotban is elérhetőek! 

Műszaki Tartalom

•    Beton alapozás, tégla teherhordó falazat, 20 cm-es külső szigetelés

•    Magas tetős kialakítás, komplett tetőszerkezettel, ereszcsatornával

•    Aljzatbeton elkészítve, egyenletes, burkolásra előkészített felülettel

•    Modern, esztétikus színezés

•    Víz- és szennyvízhálózat kiépítve 1 db kerti csap kiállás a teraszon

•    A nappaliban a klíma beltéri egységnek csordalékvíz elvezetés kiépítés

•    Elektromos redőny előkészítés

•    Elektromos hálózat alapszerelve. A lakások csatlakozási teljesítménye 1x32 A

•    Külön mérőóra kialakítás minden lakáshoz

•    3 rétegű hőszigetelt nyílászárók (u=0,7), bejárati ajtó: MABISZ minősítésű

•    BOSCH kondenzációs kazán az optimalizált padlófűtéshez

•    A fürdő és WC rendkívül hatékony kürtős szellőztetést kap a középső lakásban, 

•    A szélső lakások természetes szellőzést biztosító ablakkal ellátottak

•    Terasz: fagyálló térkő burkolattal 

•    A kertkapcsolat átlapolt 220cm átláthatatlan antracit kerítéssel készül

•    Bejáratnál csengő, világítás lámpával, az ehhez tartozó kapcsoló kerül kialakításra

Külső környezet:

•    járdák, 

•    Gépkocsibeállók kockakő burkolattal 2,5 M Ft / db

•    Alkonykapcsolós külső világítás

Ez a projekt tökéletes választás: 

•    aki modern, energiatakarékos és igényesen kivitelezett otthont keresnek 

•    családosoknak, akik saját igényeik szerint szeretnék befejezni otthonukat

•    befektetőknek, akik értéknövelő lehetőséget keresnek

 

További információért, alaprajzokért, opcionálisan rendelhető extrákért érdeklődjön most!

Várom hívását. +36 20 481 3369 Hartmann-né Viki

Kulcsrakész kivitelezés: bruttó 110.000 Ft/m² áron, külön műszaki leírás alapján, kérje részletes ajánlatunkat!

A hirdetésben szereplő friss képek mellett, a már elkészült / átadott lakásokról készült fotók láthatóak, amelyek az ön ingatlanának méretével azonosak.

A képek és a látványképek az értékesítés célját szolgálják.

 

 

 

Családi ház részletei

Ár: 64 500 000 Ft
Méret: 74 négyzetméter
Azonosító: 11559822
Irodai azonosító: 210600623
Cím: VERESS PÉTER B Középső
Telek: 83 négyzetméter
Összesített energetikai besorolás: B
Ingatlan állapota: Kitűnő
Jelleg: sorház
Építőanyag: Tégla
Fűtés jellege: Egyéb
Komfort fokozat: Összkomfort
Kor: Új építésű
Egész szobák: 4

Hasonló családi ház hirdetések

Eladó családi ház

Győr

Város a városban!  Egy biztonságos közeg Győr belvárosától, ...

Eladó családi ház

Győr

Győr Szabadhegyen, a József Attila utcában eladó, egy 80'as években ...

Eladó családi ház

Győr

Családi ház Győrszentiván csendes, rendezett részén ...

Eladó családi ház

Győr

Csak a Tradíció Ingatlan kínálatában. Kis ház a városszélén Győr ...

Hasonló családi ház hirdetések

Eladó családi ház

Győr

Város a városban!  Egy biztonságos közeg Győr belvárosától, ...

Eladó családi ház

Győr

Győr Szabadhegyen, a József Attila utcában eladó, egy 80'as években ...

Eladó családi ház

Győr

Családi ház Győrszentiván csendes, rendezett részén ...

Eladó családi ház

Győr

Csak a Tradíció Ingatlan kínálatában. Kis ház a városszélén Győr ...