Eladó családi ház Gyula 68 000 000 Ft

Leírás

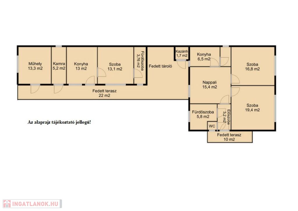
Eladásra kínálom Gyula fürdővárosának fürdő övezeti részen, a Várfürdőtől és a belvárostól mindössze 2 perc sétával megközelíthető 70-es években épült és 2016 évben felújított tégla falazatú családi házat. A ház szerkezetileg kifogástalan állapotban van, külső hőszigetelése is megtörtént. Az ingatlanhoz tartozik egy 552 m2-es teljesen körbekerített, parkosított udvar is, ahol egy nagy és hangulatos fedett terasz is építve lett. A felújítás során 2020 évben cserélve lett a teljes fűtésrendszer egy korszerű BAXI kondenzációs kazánra és lapradiátorokra. A ház egy főépületből ( 80 m2 ) és egy melléképületből ( 40 m2 ) áll. A főépület alacsony költségből az emeleti részen bővíthető, mivel az emeleti részen az összes közmű megtalálható.
Főépület: Nappali, konyha, 2 szoba, fürdőszoba, előszoba, Wc, kamra.
Melléképület: Szoba, konyha, fürdőszoba, WC.
Az ingatlan lakóterülete: 120 m2.
Fedett teraszok: 32 m2
A telek: 552 m2.
Amennyiben ez a kiváló helyen lévő, tökéletes elosztású, akár többgenerációs családoknak alkalmas családi ház felkeltette érdeklődését hívjon bizalommal a +36 70 / 457-4392 telefonszámon.
(További képekért és információkért kérem hívjon!)

Családi ház részletei

Ár: 68 000 000 Ft
Méret: 120 négyzetméter
Azonosító: 11561617
Irodai azonosító: 582140
Telek: 552 négyzetméter
Ingatlan állapota: Felújítandó
Jelleg: családi ház
Építőanyag: Tégla
Fűtés jellege: Cirkó
Egész szobák: 4
Nappalik: 1

Egyéb jellemzők

  • Beépíthető tetőtér
  • Csatorna
  • Garázs
  • Melléképület
  • Pince
  • Terasz

Hasonló családi ház hirdetések

Eladó családi ház

Gyula

Gyula kedvelt városrészén, az Újvárosban eladóvá vált egy 95 nm alapterületű ...

Eladó családi ház

Gyula

6 szobás családi ház a paradicsomban! Gyula fürdővárosának egyik ...

Eladó családi ház

Gyula

Eladásra kínálok egy 1995-ben téglából épült, jó állapotú családi ...

Eladó családi ház

Gyula

Gyulaváriban, központi elhelyezkedésű, 136 nm belső hasznos alapterületű, ...

Hasonló családi ház hirdetések

Eladó családi ház

Gyula

Gyula kedvelt városrészén, az Újvárosban eladóvá vált egy 95 nm alapterületű ...

Eladó családi ház

Gyula

6 szobás családi ház a paradicsomban! Gyula fürdővárosának egyik ...

Eladó családi ház

Gyula

Eladásra kínálok egy 1995-ben téglából épült, jó állapotú családi ...

Eladó családi ház

Gyula

Gyulaváriban, központi elhelyezkedésű, 136 nm belső hasznos alapterületű, ...