Eladó családi ház Gyula 97 000 000 Ft

Leírás

Vásároljon új építésű családi házat a Gyulai Várfürdőtől néhány percnyi távolságra megbízható, nagy múltú gyulai kivitelező cégtől!

Az ingatlan elhelyezkedése:
Gyula, Nagyrománváros csendes, átmenő forgalomtól mentes utcájában található, mindössze 2 km távolságra a belvárostól.

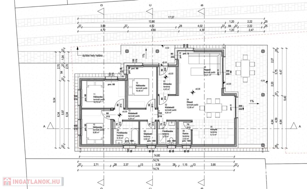
A telek alapterülete 635 nm, adottságainak köszönhetően a ház előkerttel épül, 95 nm lakórésszel és két tágas (33 nm és 8,67 nm alapterületű fedett terasszal).

Műszaki tartalom:
- Energiaellátás: emelt szintű, 3 x 25A elektromos hálózat, H-tarifa
- Falszerkezet: ProKoncept 35 falazóelem légcsatornákkal (kiemelkedően magas energiahatékonyság)
- Gépészet:
o Fűtés: hőszivattyús rendszer padlófűtéssel.
o Hűtés: 1 db nagy teljesítményű Split klíma a nappaliban
o Fürdőszoba: elektromos törölközőszárítós radiátor
- Nyílászárók:
o Külső: 3 rétegű hőszigetelt műanyag ablakok és műanyag hőszigetelt
bejárati ajtó.
o Belső: Dekorfóliás beltéri ajtók (választható színben a megadott
keretösszegig).
- Szaniterek: Minőségi fehér kerámia szaniterek, Ferro gyártmányú króm
csaptelepekkel.
- Kert: 110 méter mély fúrt kút az udvari vízellátáshoz

Extraként igényelhető (a hirdetési ár nem tartalmazza): mennyezethűtés, kocsibeálló kialakítása, stb (egyénileg egyeztetve)

Irányár: 97.000.000 Ft (5%-os ÁFA-val)
1. Foglaló: 2.000.000 Ft
2. Munkálatok megkezdésekor: 20%
3. Szerkezetkész állapot (cserepezés után): 20%
4. Kulcsrakész átadáskor: 60%

A családi ház kivitelezése 2026 év elején kezdődik, várható átadás 2026 október.

További információért és időpont egyeztetéssel kapcsolatban forduljon hozzám bizalommal!
(További képekért és információkért kérem hívjon!)

Családi ház részletei

Ár: 97 000 000 Ft
Méret: 96 négyzetméter
Azonosító: 11596133
Irodai azonosító: 396726
Telek: 635 négyzetméter
Ingatlan állapota: Kitűnő
Jelleg: családi ház
Építőanyag: Tégla
Fűtés jellege: Hőszivattyú
Egész szobák: 4
Nappalik: 1

Egyéb jellemzők

  • Beépíthető tetőtér
  • Csatorna
  • Garázs
  • Melléképület
  • Pince
  • Terasz

Hasonló családi ház hirdetések

Eladó családi ház

Gyula

Költözzön a belvárosba, a legjobb környékre. Eladóvá vált Gyulán ...

Eladó családi ház

Gyula

Több lehetőség: családi ház, apartman vagy cukrászda? Az lesz amit Ön ...

Eladó családi ház

Gyula, Törökzug

Gyulán Törökzugi zöldövezetben - kertvárosi részen, jó elrendezésű, ...

Eladó családi ház

Gyula

Tökéletes ingatlan tökéletes helyen! Gyula legkedveltebb utcájában ...

Hasonló családi ház hirdetések

Eladó családi ház

Gyula

Költözzön a belvárosba, a legjobb környékre. Eladóvá vált Gyulán ...

Eladó családi ház

Gyula

Több lehetőség: családi ház, apartman vagy cukrászda? Az lesz amit Ön ...

Eladó családi ház

Gyula, Törökzug

Gyulán Törökzugi zöldövezetben - kertvárosi részen, jó elrendezésű, ...

Eladó családi ház

Gyula

Tökéletes ingatlan tökéletes helyen! Gyula legkedveltebb utcájában ...