Eladó családi ház Hajdúsámson 99 900 000 Ft

Leírás

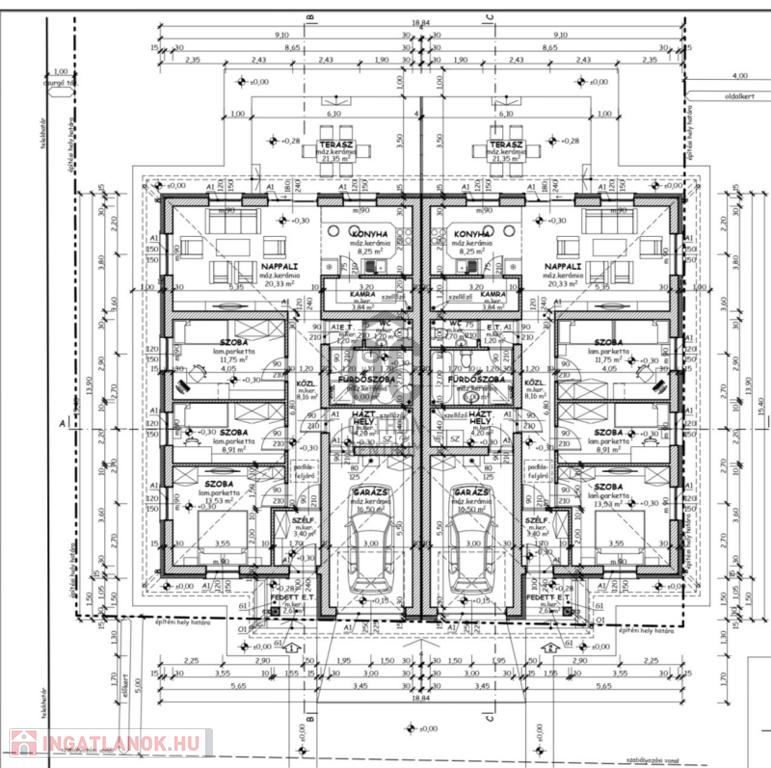
Sámsonkertben 120 nm-es, 4 szobás, összközműves újépítésű földszintes ikerház eladó!
Sámsonkert-i, 120 nm-es, 3 szoba+nappalis ,összközműves ikerház eladó!

Ingatlan műszaki jellemzői:

- Debrecentől 6 km-re Sámsonkert-i projekt
- nappali (20,5 nm) plusz 3 szoba
- víz, gáz, villany és csatorna bekötve
- fűtése: gázkazán, padlófűtéssel minden helyiségben
- 5 légkamrás műanyag nyílászárók
- elektromos redőny előkészítéssel
- klíma
- homlokzati szigetelés 15cm, födém cellulóz 20cm és aljzat 12cm
- külön fürdőszoba és wc
- elkülönített háztartási helyiség
- terasz 21,35 nm
- telek 479 nm
- garázs, elektromos garázskapuval (16,5 nm)
- garázsbejáró és járda térkövezve
- teljes műszaki leírás előzetesen megtekinthető!
- burkolat választási lehetőség (6000 Ft/nm)

A projekt tervezésekor nagy hangsúlyt fektettek az ENERGIATAKARÉKOSSÁGRA.

Illetékmentesség CSOK+ os ügyfeleknek!

Rugalmas kifizetés lehetséges!

Megbízható vállalkozó, ÁRGARANCIÁVAL!

Várható átadás: 2026 június

Irodánk az ügyintézés bármely szakaszában teljeskörű segítséget biztosít, legyen az vétel vagy eladás, kiváló ügyvédi háttérrel, díjtalan és bankfüggetlen hitelszakértő segítségével.
További kérdéssel, megtekintéssel kapcsolatban várom hívását a hét minden napján!

Családi ház részletei

Ár: 99 900 000 Ft
Méret: 120 négyzetméter
Azonosító: 11607784
Telek: 479 négyzetméter
Ingatlan állapota: Kitűnő
Jelleg: ikerház
Építőanyag: Kérdezzen rá a hirdetőtől »
Fűtés jellege: Cirkó
Egész szobák: 4

Egyéb jellemzők

  • Csatorna
  • Garázs
  • Kábel TV
  • Melléképület
  • Parketta
  • Pince
  • Terasz

Hasonló családi ház hirdetések

Eladó családi ház

Hajdúsámson

Hajdúsámson egyik legkeresettebb részén, rendezett környezetben várja ...

Eladó családi ház

Hajdúsámson

Hajdúsámson csendes részén, rövid időn belül beköltözhető, modern ...

Eladó családi ház

Hajdúsámson

Debrecen-Martinkán az Iskola utcában eladó egy Új építésű 106 nm alapterületű ...

Eladó családi ház

Hajdúsámson, Sámsonkert

Az ingatlan, aminek a különlegességét a képek nem tudják visszaadni. Sámsonkert ...

Hasonló családi ház hirdetések

Eladó családi ház

Hajdúsámson

Hajdúsámson egyik legkeresettebb részén, rendezett környezetben várja ...

Eladó családi ház

Hajdúsámson

Hajdúsámson csendes részén, rövid időn belül beköltözhető, modern ...

Eladó családi ház

Hajdúsámson

Debrecen-Martinkán az Iskola utcában eladó egy Új építésű 106 nm alapterületű ...

Eladó családi ház

Hajdúsámson, Sámsonkert

Az ingatlan, aminek a különlegességét a képek nem tudják visszaadni. Sámsonkert ...