Eladó családi ház Hajdúsámson 55 900 000 Ft

Leírás

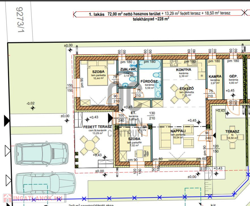
A 72 négyzetméteres alapterülettel rendelkező, új építésű házban tágas nappali + 2 szoba és két fürdőszoba vár rád. Az amerikai konyhás nappali a középpontja a lakásnak, ahol barátaiddal és családoddal együtt élvezheted a közös pillanatokat. A 13 és 18,5 négyzetméteres terasz ideális helyszín a reggeli kávézáshoz vagy a nyári grillpartikhoz, miközben a panorámát csodálhatod. A ház fűtése gáz cirkó rendszerrel működik, ami gazdaságos és kényelmes megoldást kínál a hideg téli hónapokban, míg a klíma a nyári melegben biztosítja a kellemes hőmérsékletet.
A közel 240 m2 telek tökéletesen alkalmas kertkapcsolatos lakás kialakítására, így a szabadban eltöltött idő mindenki számára élvezetes lehet. Az ingatlan modern dizájnja és praktikus elrendezése lehetővé teszi, hogy a hétköznapokban is maximálisan kihasználhasd a teret. A környék csendes és biztonságos, ideális helyszín a fiatal felnőttek számára, akik értékelik a nyugodt, de mégis élénk városi életet. A közlekedési lehetőségek kiemelkedőek: a városközpont mindössze néhány percre található, így a mindennapi teendőid könnyedén megoldhatóak.

A ház jellemzői:
- 30-as téglafalazat 15 cm hőszigeteléssel
- 3 rétegű műanyag nyílászárók
- gáz cirkó padlófűtéssel a szobákban radiátoros hőleadókkal
- az ingatlan fúrt kúttal nyert vízzel ellátott, és ingatlanonként külön zárt szennyvíztároló építve
- a nappaliban 1 db inverteres klíma kerül
- autó beállási lehetőség az udvaron
-osztatlan közös terület, ügyvédileg szabályozott használati szerződéssel
- az ikerházak egymás mögé épülnek, kazánházzal, gépészeti helyiséggel elválasztva a 2 épületet

Az ingatlanra CSOK+, babaváró és piaci hitel igénybevehető!
Az Otthon Start hitelnek a település nem felel meg.
Átadás: 2027. március


A tömegközlekedés is jól kiépített, így bármikor gyorsan elérheted Debrecent a 4405-ös busszal.
A közeli boltok, az újonnan nyíló SBOX bevásárló központban szinte minden elérhető. Ez az ingatlan nemcsak egy otthon, hanem egy lehetőség is a jövőd építésére. Ha befektetési céllal keresel ingatlant, ez a modern ház tökéletes választás lehet, hiszen a környék folyamatosan fejlődik, és a kereslet egyre nő. Ne habozz, hiszen az ilyen lehetőségek gyorsan elkelnek! Kérlek, bátran keresd fel kérdéseiddel, hiszen itt vagyok, hogy segítsek neked a legjobb döntés meghozatalában!

Családi ház részletei

Ár: 55 900 000 Ft
Méret: 72 négyzetméter
Azonosító: 11575854
Telek: 240 négyzetméter
Ingatlan állapota: Kitűnő
Jelleg: ikerház
Építőanyag: Kérdezzen rá a hirdetőtől »
Fűtés jellege: Cirkó
Egész szobák: 3

Egyéb jellemzők

  • Garázs
  • Kábel TV
  • Melléképület
  • Parketta
  • Pince
  • Terasz

Hasonló családi ház hirdetések

Eladó családi ház

Hajdúsámson

Új építésű családi- és ikerházak épülnek Hajdúsámsonban, legyen ...

Eladó családi ház

Hajdúsámson

ÚJ ÉPÍTÉSŰ IKERHÁZ ELADÓ – HAJDÚSÁMSONBAN! Eladó Hajdúsámson ...

Eladó családi ház

Hajdúsámson

Ha egy új, modern otthont keresel, ami tökéletesen illik a dinamikus életstílusodhoz, ...

Eladó családi ház

Hajdúsámson

Most egy igazán különleges lehetőséget kínálunk számodra Sámsonkert ...

Hasonló családi ház hirdetések

Eladó családi ház

Hajdúsámson

Új építésű családi- és ikerházak épülnek Hajdúsámsonban, legyen ...

Eladó családi ház

Hajdúsámson

ÚJ ÉPÍTÉSŰ IKERHÁZ ELADÓ – HAJDÚSÁMSONBAN! Eladó Hajdúsámson ...

Eladó családi ház

Hajdúsámson

Ha egy új, modern otthont keresel, ami tökéletesen illik a dinamikus életstílusodhoz, ...

Eladó családi ház

Hajdúsámson

Most egy igazán különleges lehetőséget kínálunk számodra Sámsonkert ...