Eladó családi ház Hévíz 299 000 000 Ft

Leírás

A Gold Balaton Home Ingatlaniroda megvételre kínálja a 100 307-es sorszámú HÉVÍZI CSALÁDI HÁZAT


Panorámás kilátás, igényes megjelenésű villa!

2020-ban fejezték be a családi ház építését, ami 984 m2-es területen helyezkedik el Hévíz közkedvelt utcájában.

40 m2-es medence napozó terasszal a rendezett udvar ékköve. Fűthető, ellenáramoltatóval, víz forgatóval rendelkezik a gépészet.

A családi ház kettő nagy amerikai konyhás nappalival, három hálószobával, három fürdőszobával, teraszokkal kényelmes életteret biztosít Ön és családja számára. Szintenként külön is lezárható, használható.


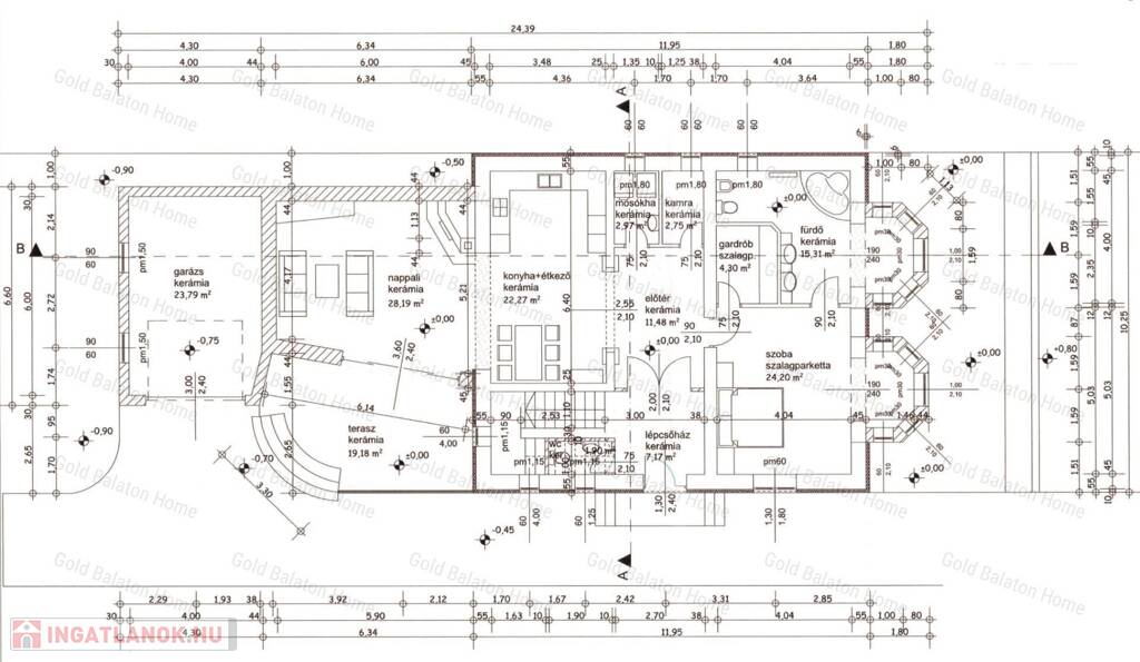
- Földszinti helyiségek: amerikai konyhás nappali 50,46 m2, szoba 24,2 m2, fürdőszoba 15,31 m2, gardrób 4,3 m2, mosókonyha 2,97 m2, külön WC 2,75 m2, kamra 1,9 m2, előtér 11,48 m2, lépcsőház 7,17 m2, terasz 19,18 m2, garázs 23,79 m2.

- Emeleti helyiségek: amerikai konyhás nappali 49,94 m2, szoba 16,16 m2, terasz 5,08 m2, szoba 15,54 m2, terasz 5,08 m2, fürdőszoba 6,28 m2, gardrób 1,8 m2, fürdőszoba 2,49 m2, kamra 3,18 m2, előtér 7,56 m2, lépcsőház 6,28 m2, kazánház 1,48 m2, erkély 2,7 m2, terasz 28,56 m2.


Műszaki paraméterek:

Főfalakig visszabontották a meglévő épületet, és teljesen újjá építették a házat a mostani műszaki követelmények szerint.

- 2020-ban került átadásra a 15 cm-es külső hőszigeteléssel ellátott családi ház

- héjazata cserép, födém szigetelés 30 cm

- műanyag nyílászárók három rétegű üvegezéssel, szúnyoghálóval

- fűtés kondenzációs gázkazánnal, hőleadás padlófűtéssel

- nappaliban fatüzeléses kandalló

- elektromos hálózat 380 Volt

- hűtő-fűtő klíma minden szobában és a nappalikban

- konyhabútorok gépekkel felszerelve

- elektromos kapu és garázsajtó


Az ingatlan egyéb jellemzői:

- rendezett, körbekerített udvar

- térkővel lerakott udvarrész

Hévízi tó 800 m-re található.

Amennyiben hirdetésem felkeltette érdeklődését, kérem, keressen bizalommal!


Irodánk szolgáltatásai igény esetén: ügyvéd, energetikai tanúsítvány, hitelügyintézés, értékbecslés, statikus, földmérő, belsőépítész. Biztonság, szakértelem - GOLD BALATON HOME - „Élj ott, ahol mások nyaralnak”

Családi ház részletei

Ár: 299 000 000 Ft
Méret: 280 négyzetméter
Azonosító: 11603379
Irodai azonosító: 183100307
Telek: 984 négyzetméter
Ingatlan állapota: Újszerű
Jelleg: családi ház
Építőanyag: Tégla
Fűtés jellege: Cirkó
Fűtés módja: Gáz
Komfort fokozat: Dupla komfort
Kor: 6-10 éves
Egész szobák: 5

Egyéb jellemzők

  • Csatorna

Hasonló családi ház hirdetések

Eladó családi ház

Hévíz

Hévízen kedvelt részén teljesen felújított villa  ...

Eladó családi ház

Hévíz

A Gold Balaton Home ingatlaniroda megvételre kínálja a 183 100 445-ös sorszámú ...

Eladó családi ház

Hévíz

Új építésű, igényesen kivitelezett családi ház!A Gold Balaton Home ...

Eladó családi ház

Hévíz

A Gold Balaton Home Ingatlaniroda megvételre kínálja a 183 100 340-es sorszámú ...

Hasonló családi ház hirdetések

Eladó családi ház

Hévíz

Hévízen kedvelt részén teljesen felújított villa  ...

Eladó családi ház

Hévíz

A Gold Balaton Home ingatlaniroda megvételre kínálja a 183 100 445-ös sorszámú ...

Eladó családi ház

Hévíz

Új építésű, igényesen kivitelezett családi ház!A Gold Balaton Home ...

Eladó családi ház

Hévíz

A Gold Balaton Home Ingatlaniroda megvételre kínálja a 183 100 340-es sorszámú ...