Eladó családi ház Kecskemét 55 000 000 Ft

Leírás

Eladó önálló családi ház Kecskeméten!

Kecskeméten a Boróka lakópark közelében kínálunk megvételre egy 105 nm alapterületű, 1972-ben salaktéglából épült, önálló családi házat 900 nm-es telken.

Az ingatlan közepes állapotú, tágas, nagy terekkel rendelkezik.
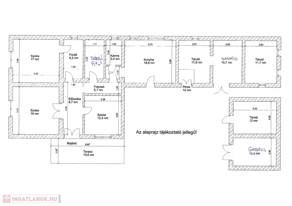
Beosztása:
- előszoba 8,7 mm,
- szoba 17 nm,
- szoba 19 nm,
- szoba 12,3 nm,
- konyha 18,8 nm,
- kamra 3,4 nm,
- fűrdőszoba+ WC 6,5 nm,
- folyosó 5,1 nm,
- tároló 6,4 nm,
_------------------------------
Összesen: 97,2 nm
- fedett terasz 15,6 nm,
- pince 12,0 nm,
- tároló 11,6 nm,
- tároló 11,7 nm,
- tároló 12,0 nm,
- garázs 10,7 nm,
- garázs 10,3 nm,

Közművek tekintetében, víz, villany a házba bekötve, gázcsonk az udvarban, csatorna nincs.

Az ingatlan ügyvédi megosztással kerül értékesítésre, akár nagyobb telekkel is megvásárolható. Teljes telek terület 2502 nm.

Amivel segítjük az Ön ingatlanvásárlását:
- ingyenes hitelügyintézés,
- jogi háttér,
- földhivatali ügyintézés,
- energetikai tanúsítvány,
- a vevő számára az ingatlanközvetítés ingyenes.

Irodánk 30 éves szakmai tapasztalattal áll ügyfelei rendelkezésére!

Várom szíves megkeresését!

Családi ház részletei

Ár: 55 000 000 Ft
Méret: 105 négyzetméter
Azonosító: 11578698
Irodai azonosító: 389153
Cím: Boróka lakópark közelében
Telek: 900 négyzetméter
Ingatlan állapota: Átlagos
Jelleg: családi ház
Építőanyag: Kérdezzen rá a hirdetőtől »
Fűtés jellege: Egyéb
Komfort fokozat: Komfort
Kor: 50 évesnél régebbi
Szintek száma: Földszintes
Egész szobák: 3

Egyéb jellemzők

  • Csatorna
  • Garázs
  • Pince
  • Terasz

Térkép

Hasonló családi ház hirdetések

Eladó családi ház

Kecskemét

Otthonok és Megoldások! Kecskemét, Kossuthváros, belvároshoz közeli részén, ...

Eladó családi ház

Kecskemét

Kecskemét - Kadafalván eladó egy vegyes falazatú családi ház 848 négyzetméteres ...

Eladó családi ház

Kecskemét

Eladó családi ház Hetényegyháza központi részén – két generációnak ...

Eladó családi ház

Kecskemét

Új építésű nappali + 2 szobás , 60 m2-es ikerház eladó!Kecskemét központjától ...

Hasonló családi ház hirdetések

Eladó családi ház

Kecskemét

Otthonok és Megoldások! Kecskemét, Kossuthváros, belvároshoz közeli részén, ...

Eladó családi ház

Kecskemét

Kecskemét - Kadafalván eladó egy vegyes falazatú családi ház 848 négyzetméteres ...

Eladó családi ház

Kecskemét

Eladó családi ház Hetényegyháza központi részén – két generációnak ...

Eladó családi ház

Kecskemét

Új építésű nappali + 2 szobás , 60 m2-es ikerház eladó!Kecskemét központjától ...