Eladó családi ház Mohács 54 990 000 Ft

Leírás

Félkész családi ház eladó Mohács egyik legszebb utcájában!
Ez a lakóparki ingatlan, kiváló lehetőséget nyújt azok számára, akik saját igényeik szerint szeretnék befejezni és kialakítani jövőbeli otthonukat.
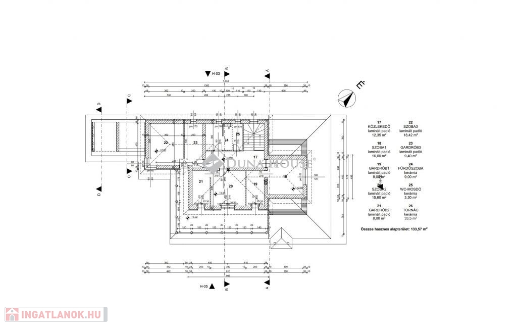
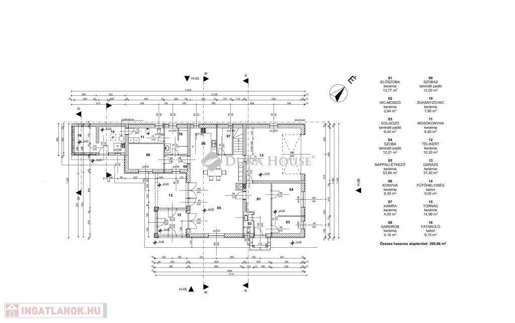
Az ingatlan 880 m²-es telken helyezkedik el, a tervezett 333 m² alapterületű épület pedig tágas, jól alakítható tereket biztosít, így akár egy nagyobb család számára is ideális prémium otthon valósítható meg.
A kivitelezés folytatásában teljes körű segítséget tudunk biztosítani, hiszen minden szükséges szakember rendelkezésre áll az építkezés befejezéséhez.
Az építkezés főbb adatai:
38 cm-es Leiertherm tégla falazat
Monolit födém mindkét szintenTerrán Danubia barna cserépfedés
A telek teljes közműellátottsággal rendelkezik: villany, gáz ,víz, szennyvíz kábel TV.
Az ingatlan jelenlegi állapota nagy szabadságot ad a belső terek kialakításában, így minden részlet a leendő tulajdonos elképzelései szerint valósítható meg. Ha egy kiváló elhelyezkedésű ingatlant keres, ahol saját elképzelései szerint alakíthatja ki álmai otthonát, akkor ez a lehetőség Önre vár.
Hívjon ,nézzük meg együtt és tervezzük meg új otthonát!

Az energetikai tanúsítvány készítése folyamatban van, amint rendelkezésre áll, úgy azzal a hirdetés frissítésre kerül.


Jöjjön nézzük meg együtt ! 06209737207

Referencia szám: HZ075744

Családi ház részletei

Ár: 54 990 000 Ft
Méret: 333 négyzetméter
Azonosító: 11614458
Irodai azonosító: HZ075744-5207158
Telek: 880 négyzetméter
Ingatlan állapota:
Jelleg: családi ház
Építőanyag: Tégla
Fűtés jellege: Egyedi
Fűtés módja: Gáz
Szintek száma: Földszintes
Egész szobák: 8

Térkép

Hasonló családi ház hirdetések

Eladó családi ház

Mohács

Félkész családi ház eladó Mohács egyik legszebb utcájában alakítsa ...

Eladó családi ház

Mohács

Félkész családi ház eladó Mohács egyik legszebb utcájában alakítsa ...

Hasonló családi ház hirdetések

Eladó családi ház

Mohács

Félkész családi ház eladó Mohács egyik legszebb utcájában alakítsa ...

Eladó családi ház

Mohács

Félkész családi ház eladó Mohács egyik legszebb utcájában alakítsa ...