Eladó családi ház Monor 89 900 000 Ft

Leírás

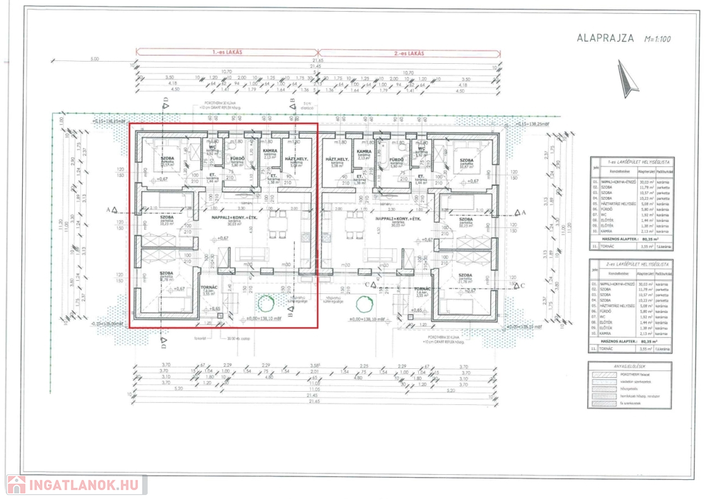
MONOR KERTVÁROSI RÉSZÉN ÚJ ÉPÍTÉSŰ IKERHÁZ FÉL ELADÓ!!!

Monor csendes, kertvárosias részén, cca. 300 nm-es telek területtel, Új építésű, 80 nm-es, 4 szobás (nappali + 3 hálószoba), egy szintes, hőszivattyús fűtéssel, Nyugati fekvésű, műanyag (3 rétegű) nyílászárós, szigetelt, fafödémes, új építésű ikerház fél eladó.

Az ingatlan 30 cm-es Porotherm X-therm okos téglából épül, 10 cm-es grafitos szigeteléssel, fa födémmel, beton cserép fedéssel.


Az ingatlan kulcsrakész állapotban kerül átadásra, riasztó előkészítéssel, szaniterekkel, burkolatokkal, rendezett kerttel, új kerítéssel, tér burkolt járdával. A belső ajtókat, szanitereket és a burkolatokat a belső műszaki tartalomban megjelölt összegig a vevő a saját igénye szerint választhatja.
A nyílászárók hőszigetelt 3 rétegű üvegezésűek, igény esetén elektromos rejtett redőnnyel, zsalúziával, rovarhálóval.

300 nm-es telek terület és a földszinti tornác lehetőséget nyújt a pihenésre, kikapcsolódásra.


Iskola, óvoda, bölcsöde, posta, orvosi rendelő, bevásárlási lehetőség, patika séta távolságra, az M4-es, M0-ás, személy gépkocsival viszonylag gyorsan elérhető.


CSOK PLUSSZ, 5%-OS ÁFA IGÉNYELHETŐ!!!

Átadás: 1 éven belül, 2026. február végén.

Építés éve: 2025
Méret: 80 nm
Falazat: Porotherm 30 cm X-therm okos tégla
Szigetelés: 10 cm grafitos
Nyílászárók: Műanyag 3 rétegű üvegezéssel, redőny, zsalúzia előkészítéssel (igény esetén elektromos redőnnyel, zsalúziával és szúnyoghálóval)
Födém: fafödém
Fűtés: hőszivattyús fűtéssel
Állapot: új építésű
Parkolás: saját felszíni beálló, elektromos kapu előkészítés.

Érdemes megnézni, bővebb információért hívjon bizalommal akár hétvégén is!
L.D

INGYENES hitel tanácsadás, CSOK Plusz, OTTHON START ügyintézés!
BANKFÜGGETLEN hitelcentrumunk az összes elérhető bank és hitelintézet ajánlatát versenyezteti az Ön kedvéért, ráadásul DÍJMENTESEN.

- Egyedi, bankfiókban nem elérhető kamat- és díjkedvezmények
- Hitelképesség vizsgálat
- Idő, energia és pénz megtakarítás
- Teljes hivatali ügyintézés

Családi ház részletei

Ár: 89 900 000 Ft
Méret: 80 négyzetméter
Azonosító: 11548711
Irodai azonosító: 384622
Cím: Monor Manófalva Bölcsőde közelében
Telek: 300 négyzetméter
Ingatlan állapota: Kitűnő
Jelleg: ikerház
Építőanyag: Tégla
Fűtés jellege: Geotermikus
Fűtés módja: Hőszivattyú
Komfort fokozat: Összkomfort
Kor: Új építésű
Szintek száma: Földszintes
Egész szobák: 4

Egyéb jellemzők

  • Csatorna
  • Garázs
  • Pince
  • Terasz

Térkép

Hasonló családi ház hirdetések

Eladó családi ház

Monor

**ELADÓ Monor CSENDES, kertvárosi övezetében MINŐSÉGI KIVITELEZÉSSEL ...

Eladó családi ház

Monor, Újtelep

KIZÁRÓLAG A JUDIT INGATLAN ÉS HITELIRODA KÍNÁLATÁBAN!!! Monor Telepi ...

Eladó családi ház

Monor

KIZÁRÓLAG A JUDIT INGATLAN ÉS HITELIRODA KÍNÁLATÁBAN!!! Monor „Főszög”-i ...

Eladó családi ház

Monor, Belváros

HASZNÁLJA KI A CSOK+ KAMATTÁMOGATOTT HITEL ELŐNYEIT ÉS A 4% ILLETÉKKEDVEZMÉNYT, ...

Hasonló családi ház hirdetések

Eladó családi ház

Monor

**ELADÓ Monor CSENDES, kertvárosi övezetében MINŐSÉGI KIVITELEZÉSSEL ...

Eladó családi ház

Monor, Újtelep

KIZÁRÓLAG A JUDIT INGATLAN ÉS HITELIRODA KÍNÁLATÁBAN!!! Monor Telepi ...

Eladó családi ház

Monor

KIZÁRÓLAG A JUDIT INGATLAN ÉS HITELIRODA KÍNÁLATÁBAN!!! Monor „Főszög”-i ...

Eladó családi ház

Monor, Belváros

HASZNÁLJA KI A CSOK+ KAMATTÁMOGATOTT HITEL ELŐNYEIT ÉS A 4% ILLETÉKKEDVEZMÉNYT, ...