Eladó családi ház Nemesvámos 199 000 000 Ft

Leírás

ELADÓ EXKLUZÍV CSALÁDI HÁZ NEMESVÁMOS SZÍVÉBEN

FIGYELEM!
- Prémium kivitelezés, energiatakarékos megoldás
- Napelemes rendszer: 20KVA inverter és 15Kwp napelem teljesítmény
- Kényelmes, nagy terasz
- Nappali térben hatalmas belmagasság
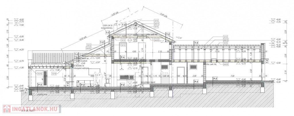
- Szinteltolásos kialakítás, különleges térélmény és egyedi építészeti megoldás
- Tehermentes ingatlan

A hirdetésben szereplő adatok tájékoztató jellegűek, a változtatás jogát fenntartjuk!

FŐBB ADATOK:
- Építés éve: 2025
- Szerkezet: tégla
- Födém: vegyes – vasbeton és fa
- Tető fedése: Terrán Zenit Mars kerámia cserép
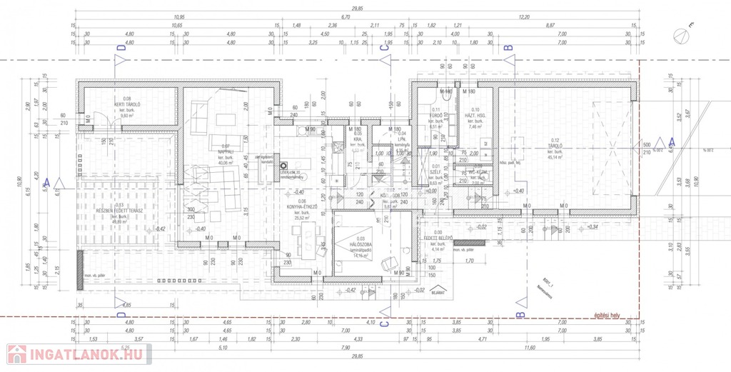
- Lakóterület: 220,96 m²
- Telek mérete: 906 m²

Parkolás: dupla garázs, közvetlen belső kapcsolattal a házhoz

MŰSZAKI JELLEMZŐK:
- Energiatakarékos kialakítás, napelem-rendszerrel – éves villamosenergia-fogyasztás szinte teljesen fedezve
- Külső falak 15 cm vastag hőszigeteléssel
- 3 rétegű nyílászárók elektromos redőnnyel és szúnyoghálóval mindenhol
- Velux elektromos tetőablak a galéria szinten
- Fűtés-hűtés: kandalló, hőszivattyús padlófűtés, Fain Cool rendszerrel a nappali-konyha-étkező zónában és az emeleten (közlekedőn)
- Melegvíz-ellátás: szintén hőszivattyúval megoldva

KULCSRA KÉSZ ÁLLAPOT :
Teljes kulcsrakész átadás várható 2026 I. negyedév

Az épület szerkezetkész állapotot meghaladó készültségben van ,a kivitelezésből már csak a burkolatok, szerelvények és az álmennyezet hiányzik.

OTTHONOSSÁG ÉS DIZÁJN EGYBEN:
- Impozáns, galériás nappali – világos, légies tér, amely a ház központi eleme
- Stílusos kandalló a nappali szívében, a meghittség és melegség forrása
- Exkluzív fedett terasz, lamellás árnyékolóval, alumínium oszlopokkal, korcolt lemezfedéssel – ideális reggeli kávéhoz
- Lélegzetelállító naplemente látvány a teraszról (49,89 m2), dél-délnyugati tájolásnak köszönhetően

KÖRNYEZET:
- Nemesvámos új lakóövezetében, családbarát, nyugodt környezet
- Tökéletes választás gyermekes családoknak, nyugalomra vágyóknak vagy befektetésnek

A KÖZELBEN TALÁLHATÓ:
- Éttermek
- Boltok
- Buszmegálló
- Posta
- Orvosi rendelő
- Gyógyszertár
- Iskola, Óvoda, Bölcsőde
- Kerékpárút


Amennyiben az ingatlan megvásárlásához el kell adnia jelenlegi otthonát, úgy annak és a teljes folyamatnak a lebonyolításában is állok rendelkezésre!

További információkért forduljon hozzám bizalommal, hívjon a megadott telefonszámon - akár hétvégén is!


TOVÁBBI SZOLGÁLTATÁSAINK:
- Megbízható ügyvédi háttér
- INGYENES, FÜGGETLEN hitelügyintézés
- INGYENES, FÜGGETLEN biztosítási tanácsadás
- Energetikai tanúsítvány és ingatlan értékbecslés készítése
- Klíma rendszerek kiépítése és beüzemelése
- Riasztó- és kamera rendszerek kiépítése
- Közművek és szolgáltatók átírása
- Birtokbaadás lebonyolítása
- Kert- és tereprendezés
- Ingatlan takarítás
- Ingatlan felújítás
- Költöztetés

10 ÉVES SZAKMAI TAPASZTALATTAL!


#gonahome #tegyelprobara #keressbizalommal #mindenamiingatlan

Családi ház részletei

Ár: 199 000 000 Ft
Méret: 220 négyzetméter
Azonosító: 11595675
Irodai azonosító: 338558
Telek: 906 négyzetméter
Ingatlan állapota: Kitűnő
Jelleg: családi ház
Építőanyag: Tégla
Komfort fokozat: Összkomfort
Kor: Új építésű
Egész szobák: 5

Egyéb jellemzők

  • Garázs
  • Terasz

Hasonló családi ház hirdetések

Eladó családi ház

Nemesvámos

A CasaNetWork Veszprém Ingatlaniroda eladásra kínálja a 2372-es számú egyedülálló ...

Eladó családi ház

Nemesvámos

Eladó családi ház Nemesvámos térköves utcájában csendes, családbarát ...

Hasonló családi ház hirdetések

Eladó családi ház

Nemesvámos

A CasaNetWork Veszprém Ingatlaniroda eladásra kínálja a 2372-es számú egyedülálló ...

Eladó családi ház

Nemesvámos

Eladó családi ház Nemesvámos térköves utcájában csendes, családbarát ...