Eladó családi ház Ócsa 110 000 000 Ft

Leírás


Kizárólag irodánk kínálatában!!! 

 

Ócsán kínálunk eladásra egy 2 szintes, önálló családi házat. 

 

Az ingatlan tehermentes,összkomfortos, hitelezhető, jogilag rendezett. 

A 719m2-es telek összközműves, rendezett, a kert öntözését fúrt kút is segíti. 

A parkolás szerelőaknás dupla garázzsal megoldott, mely 50m2-es. 

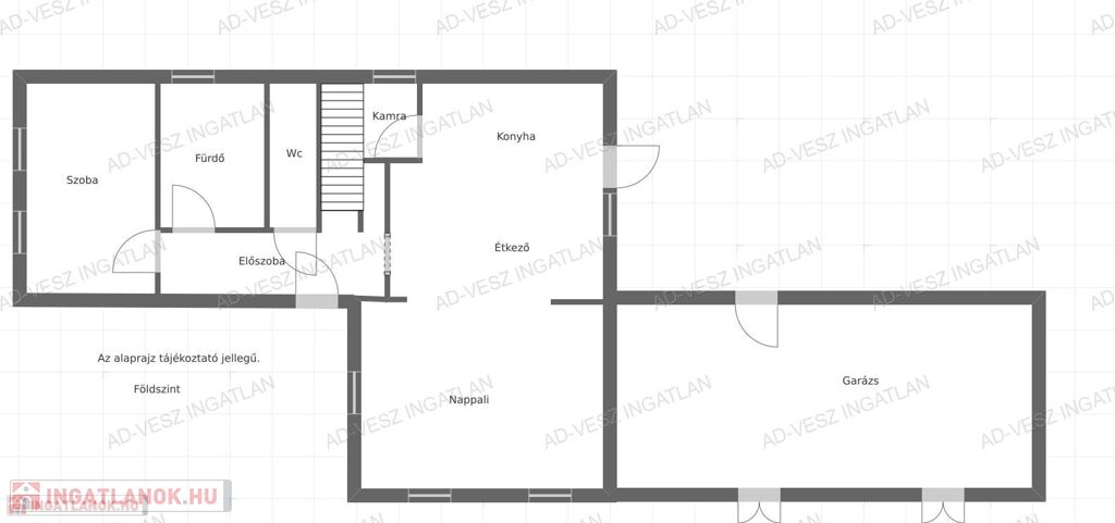
A ház földszintjén tágas, világos nappali, konyha étkezővel, egy hálószoba, wc, fürdő, kamra, előszoba, és közlekedő lett kialakítva. 

A tetőtérben további 2 hálószoba, fürdőszoba wc-vel, gardrób szoba, és közlekedő található. 

Az épület 2000-ben épült beton alapra, tégla falazattal, 10cm-es szigeteléssel, beton födémmel, zsindely fedéssel. 

2024-ben felújításra került, kicserélték a nyílászárókat redőnyös, szúnyoghálós, műanyag ablakokra, lecserélték a csaptelepeket, és korlátot építettek. 

A ház biztonságáról távfelügyeletes riasztó rendszer gondoskodik. 

 A fűtés kondenzációs gáz cirkóról radiátorokkal történik, de klímák is segítenek az optimális hőmérséklet elérében. 

Az ingatlan csendes utcában helyezkedik el, de a városközpont gyorsan megközelíthető, és a vonat, valamint a  buszmegálló is sétatávolságban van. 

Ócsa fejlődő kisváros Budapest közelében, mely őrzi a vidéki élet hangulatát. 

 

Ha egy kellemes kisvárosban képzeli el az életét, egy kényelmes, jó állapotú otthonban, hívjon!!! 

 

Irodánk ingyenes hiteltanácsadással, profi ügyvédi támogatással várja.

Ha a vásárláshoz még el kell adnia ingatlanát szívesen segítünk!

 

Bocskainé Krisztina

30-221-3336

Családi ház részletei

Ár: 110 000 000 Ft
Méret: 126 négyzetméter
Azonosító: 11586924
Irodai azonosító: 674400261
Telek: 719 négyzetméter
Ingatlan állapota:
Jelleg: családi ház
Építőanyag: Tégla
Fűtés jellege: Cirkó
Komfort fokozat: Összkomfort
Egész szobák: 4

Hasonló családi ház hirdetések

Eladó családi ház

Ócsa

Akció!!!   Ha még az idén lefoglalja, az Öné lehet ...

Eladó családi ház

Ócsa

  Ócsa város központjában kínálunk eladásra egy ...

Hasonló családi ház hirdetések

Eladó családi ház

Ócsa

Akció!!!   Ha még az idén lefoglalja, az Öné lehet ...

Eladó családi ház

Ócsa

  Ócsa város központjában kínálunk eladásra egy ...