Eladó családi ház Öreglak 83 000 000 Ft

Leírás

Öreglakon családi házas övezetben, rendezett, gondosan karbantartott összesen 245 m2-es, többgenerációs otthon vált eladóvá.

A Csiszta-pusztai Termálfürdő a közelben található, valamint a Balaton is csak 15 km!

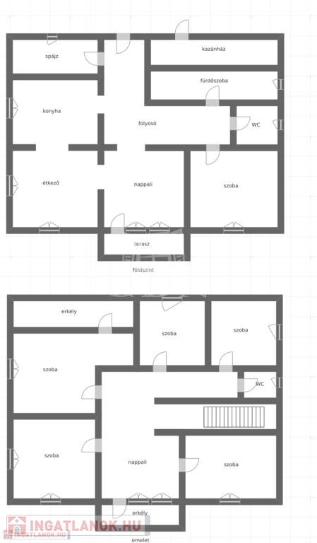
Az ingatlan helyiségeinek elosztása a következő:
- földszint: konyha étkezővel, spájz, egy hálószoba, nappali, fürdőszoba, illemhely,
- emelet: nappali, négy hálószoba, az ötödik hálószoba igény szerint fürdőszobává is alakítható (a vízbekötés előkészítése megtörtént), illemhely.

Az ingatlan nagy udvarral rendelkezik, melyen található egy fedett kocsibeálló, egy téglaépítésű garázs, mellék-, valamint gazdasági épület és nyári konyha. A zárt udvarról egy kapun kilépve 0,6 hektáros területen egy 9 éves akácos növekszik!

Az ingatlan vegyes tüzelésű kazán által biztosított központi fűtéssel rendelkezik. Gáz telken belül, így fűtésrendszere könnyedén átalakítható gáz-cirkó fűtéssé.

Minden igényt kielégítő adottságai vannak az ingatlannak. A közelben van a Csiszta-fürdő, s a Balaton is csak 15 km!
A településen minden szükséges intézmény megtalálható.

Amennyiben felkeltettem érdeklődését keressen bizalommal a hét bármely napján.

Családi ház részletei

Ár: 83 000 000 Ft
Méret: 120 négyzetméter
Azonosító: 11463006
Irodai azonosító: 377059
Cím: Csiszta Fürdő, Balaton a közelben
Telek: 6599 négyzetméter
Ingatlan állapota: Átlagos
Jelleg: családi ház
Építőanyag: Tégla
Komfort fokozat: Összkomfort
Kor: 21-50 éves
Szintek száma: Földszintes
Egész szobák: 6

Egyéb jellemzők

  • Csatorna
  • Garázs
  • Pince
  • Terasz

Térkép