Eladó családi ház Pilisborosjenő 167 000 000 Ft

Leírás

PILISBOROSJENŐN ÚJ ÉPÍTÉSŰ CSALÁDI HÁZAK ELADÓK!

A telek Pilisborosjenőn csodálatos környezetben, a pilisi Nagy-Kevély lábánál fekszik, melyről gyönyörű panoráma tárul elénk a környező hegyekre, településekre, este a Parlament látványa is lenyűgöző.

A házak magas műszaki tartalommal, energiahatékony megoldásokkal és prémium minőségű anyagokkal kerülnek kialakításra az épület szerkezetétől egészen a látható és tapintható anyagokig. Az épület ’A’ energetikai besorolású, korszerű anyagokból és technológiákkal épül, ezért gazdaságosan üzemeltethető. A padlófűtés hőszivattyúról működik, míg a hűtésért split klímák felelnek., melyek alternatív fűtési megoldást is nyújtanak.

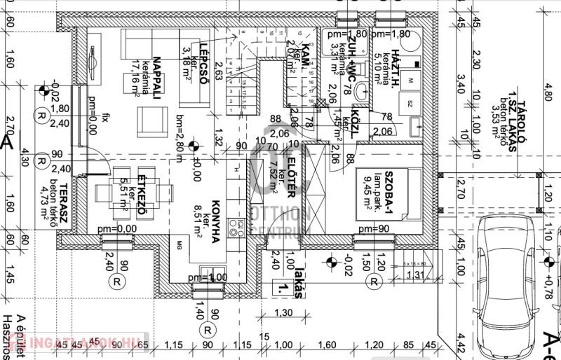
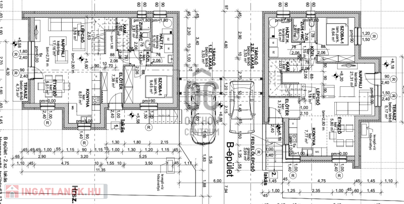
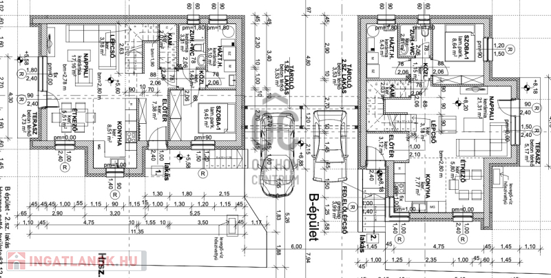
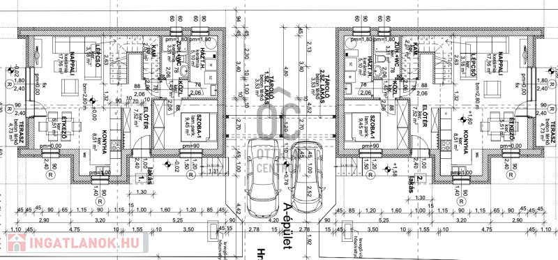
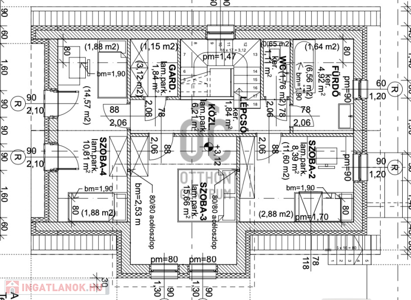
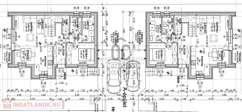
Összesen 6 ház, 3x2 lakóépület épül (A, B, C épületek), mind önálló, saját kerttel, autóbeállóval vagy garázzsal kerül értékesítésre. Az egyes házak egy közös útról közelíthetőek meg. A házak kétszintesek, 114-196 m²-esek, alsó szinten a közösségi tér, azaz előszoba, konyha, étkező nappali, zuhanyzós fürdő, WC, háztartási helyiség, kamra és 1 szoba kerül kialakításra. A tetőtéri szinten a közlekedőből 3db hálószoba, gardrób és fürdőszoba nyílik.
A C épület 2.-es lakása 3 szintes, azaz a pinceszinten kerül kialakításra egy 2 állásos garázs, a gépészeti helyiség és további tárolási lehetőség.


Ez a Pest megyei régió, Üröm, Pilisborosjenő folyamatosan fejlődő része, egy zsáktelepülés, mely Budapesttől északnyugatra, 13 km-re található. Autóval Budapesttől a 3.kerületen át a 10-es úton, vagy Csillaghegy felől is megközelíthető. Tömegközlekedés terén autóbusz az Árpád híd irányába és Ürömön vonatmegálló is elérhető, mely a Nyugati Pályaudvar fele közlekedik.

Élhető, nyugodt település minden korosztály számára, egy kis gyöngyszem a főváros közelségében. Megtalálható új építésű óvoda, bölcsőde, általános iskola nagy tornateremmel, orvosi rendelők és szociális létesítmények. Pilisborosjenő erdős hegyekkel övezve, a természet közelségében rengeteg kirándulási lehetőséget is kínál. Közelben az Egri vár másolata, Teve-szikla, , Kevélyhegyi tanösvény, levendula mezők, lovardák, a pilisborosjenői szőlővidék található.

Bővebb információért, műszaki tartalommal, megtekintéssel kapcsolatban keressen bizalommal!
Projekt bemutatása

ÚJÉPÍTÉSŰ PRÉMIUM CSALÁDI HÁZAK PILISBOROSJENŐN, A NAGY-KEVÉLY LÁBÁNÁL

Fedezze fel új otthonát Pilisborosjenőn, Budapest közvetlen közelében, ahol a természet és a modern építészet találkozik. A festői panoráma a pilisi hegyekre, a környező településekre, sőt, tiszta estéken egészen a Parlamentig nyújt felejthetetlen látványt.
Prémium minőség – energiahatékony megoldásokkal
Az épületek a legkorszerűbb technológiákkal és anyagokkal készülnek, „A” energetikai besorolással. A hőszivattyús padlófűtés, a split klímák hűtés-fűtés funkciója és a gondosan megválasztott prémium burkolatok garantálják az otthon kényelmét és gazdaságos fenntarthatóságát.
Otthon, amely igazodik az Ön életéhez
Összesen 6 lakóház, saját kerttel, autóbeállóval vagy garázzsal
Kétszintes, 114–196 m²-es terek – átgondolt alaprajzokkal
Földszinten: tágas nappali-étkező-konyha, hálószoba, fürdő, háztartási helyiség, kamra
Emeleten: három hálószoba, gardrób és fürdőszoba
Különlegesség: a C épület egyik lakása háromszintes, kétállásos garázzsal és extra tárolási lehetőséggel
Kivételes elhelyezkedés – közel a fővároshoz, mégis a természet ölelésében
Pilisborosjenő igazi gyöngyszem: nyugodt, biztonságos település minden korosztály számára, mindössze 13 km-re Budapesttől. Autóval és tömegközlekedéssel is könnyen megközelíthető (busz, vonat).
A település saját óvodával, iskolával, orvosi rendelővel és modern közösségi létesítményekkel rendelkezik. A környék kirándulási és sportlehetőségek széles tárházát kínálja: Teve-szikla, Egri vár másolata, Kevélyhegyi tanösvény, levendulamezők és lovardák teszik teljessé az itt töltött mindennapokat.

✨ Ez nem csupán egy ingatlan – ez az Ön jövőbeli otthona, ahol a természet közelsége és a modern élet kényelme tökéletes harmóniában találkozik.

Bővebb információért, műszaki tartalommal, megtekintéssel kapcsolatban keressen bizalommal!

Családi ház részletei

Ár: 167 000 000 Ft
Méret: 114 négyzetméter
Azonosító: 11554647
Telek: 312 négyzetméter
Ingatlan állapota: Kitűnő
Jelleg: családi ház
Építőanyag: Kérdezzen rá a hirdetőtől »
Egész szobák: 5

Egyéb jellemzők

  • Csatorna
  • Garázs
  • Kábel TV
  • Melléképület
  • Parketta
  • Pince
  • Terasz

Hasonló családi ház hirdetések

Eladó családi ház

Pilisborosjenő

A NYUGALOM SZIGETE, ÖRÖKPANORÁMÁS CSALÁDI HÁZ ELADÓ A KÖVES-BÉRC LÁBÁNÁL. Budapest ...

Eladó családi ház

Pilisborosjenő

Az Otthon Centrum kínálatában : Pilisborosjenő belső ófalui részén ...

Eladó családi ház

Pilisborosjenő

Projekt bemutatása ÚJÉPÍTÉSŰ PRÉMIUM CSALÁDI HÁZAK PILISBOROSJENŐN, ...

Eladó családi ház

Pilisborosjenő

Projekt bemutatása ÚJÉPÍTÉSŰ PRÉMIUM CSALÁDI HÁZAK PILISBOROSJENŐN, ...

Hasonló családi ház hirdetések

Eladó családi ház

Pilisborosjenő

A NYUGALOM SZIGETE, ÖRÖKPANORÁMÁS CSALÁDI HÁZ ELADÓ A KÖVES-BÉRC LÁBÁNÁL. Budapest ...

Eladó családi ház

Pilisborosjenő

Az Otthon Centrum kínálatában : Pilisborosjenő belső ófalui részén ...

Eladó családi ház

Pilisborosjenő

Projekt bemutatása ÚJÉPÍTÉSŰ PRÉMIUM CSALÁDI HÁZAK PILISBOROSJENŐN, ...

Eladó családi ház

Pilisborosjenő

Projekt bemutatása ÚJÉPÍTÉSŰ PRÉMIUM CSALÁDI HÁZAK PILISBOROSJENŐN, ...