Eladó családi ház Pilisborosjenő 178 000 000 Ft

Leírás

Ezüsthegy-Kevély lábánál újszerű, azonnal költözhető családi ház eladó!



Ezüsthegyen, zöldövezetben frissen felújított, 250 nm-es családi ház nagy telekkel eladó. Az ingatlan felújítása most fejeződött be, frissen festett falak, új burkolatok, új szaniterek, új beltéri ajtók, modern, új konyha várja a leendő tulajdonosukat.



Az ingatlan beosztása:



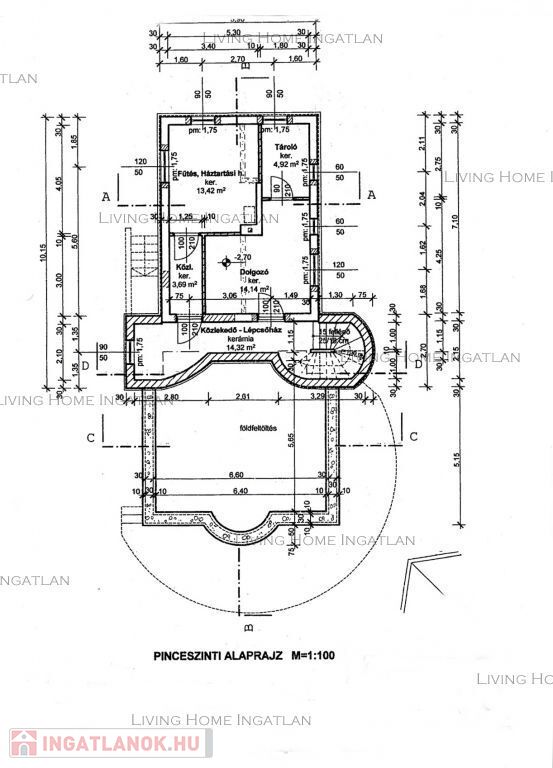
Alagsor: Gépészeti helyiség, kazánház, tárolók, szuterénes szoba.



Földszint:  A közel 40 nm-es, félkörívben üvegezett, hangulatos nappali szervesen kapcsolódik a nagy hátsó, intim teraszhoz. A minőségi, új parketta, a néhány lépcsős szinteltolás és a médiafal kialakítása modern, egységes hangulatot teremt.



-Tágas előszoba, fürdőszoba.



-Az extra, nagyméretű, gépesített konyha teljesen felszerelt, tárolóval ellátott. A boltívvel elhatárolt étkezőben kényelmesen elfér egy nagy asztal székekkel.



Emelet: A lépcsőn felérve egy kisebb, erkélykapcsolatos nappaliba érkezünk, innen nyílnak csillag szerűen a szobák. Található még itt két fürdőszoba, mosókonyha és egy szárító helyiség is.



További extrák:



-Teljes, 15 cm-es szigetelés,



-Ariston kondenzációs kazán,



-vízteres kandalló (mindhárom emeletet befűti),



-hőszigetelt ablakok,



-kerámia tetőcserép,



-kerti tároló.



Ajánlom családosoknak, összeköltözőknek az ingatlant. Gyerekeknek is ideális, hiszen a zárt kertben játszótér vagy medence is kialakítható. Néhány perc sétára található iskola, óvoda, játszótér, bolt.



Ha a hirdetés felkeltette az érdeklődését, kérem, keressen akár hétvégén is.



Az alaprajz és az adatok tájékoztató jellegűek.



English: 



Like-new detached house for sale at the foot of the Silver Hill! Ready to move in!



Newly renovated 250 sqm detached house with large plot for sale in the green area of Silver Hill. The renovation of the property has just been completed, freshly painted walls, new tiling, new sanitary ware, new interior doors, modern new kitchen awaits the future owner.



The property is divided into:



Basement: mechanical room, boiler room, storage rooms, basement room.



Ground floor: a cosy living room of almost 40 sqm, semi-circular glazed, with a large intimate terrace at the back. The quality, new parquet flooring, the few steps of the staircase and the media wall design create a modern, unified atmosphere.



-Spacious entrance hall, bathroom.



-Extra large fully fitted kitchen with appliances and storage. The dining room, separated by an arch, comfortably accommodates a large table with chairs.



Upstairs: the stairs lead up to a small living room with a balcony, from here the rooms open out in a star-shaped pattern. There are also two bathrooms, a laundry room and a drying room.



Other extras:



-Full, 15 cm insulation,



-Ariston condensing boiler,



-Water fireplace (heats all three floors),



-insulated windows,



-ceramic roof tiles,



-garden storage.



I recommend the property for families, people who move in together. Ideal for children, as the enclosed garden can be used as a playground or swimming pool. A few minutes walk to school, kindergarten, playground, shop.



If you are interested in the advertisement, please contact me even on weekends.



The floor plan and data are for information only.



 




Családi ház részletei

Ár: 178 000 000 Ft
Méret: 250 négyzetméter
Azonosító: 11555457
Irodai azonosító: 360651121-356
Telek: 842 négyzetméter
Ingatlan állapota:
Jelleg: családi ház
Építőanyag: Tégla
Fűtés jellege: Cirkó
Komfort fokozat: Dupla komfort
Kor: 11-20 éves
Elhelyezkedés: Panorámás
Egész szobák: 8

Egyéb jellemzők

  • Csatorna
  • Garázs
  • Kábel TV
  • Padlás
  • Pince
  • Terasz

Hasonló családi ház hirdetések

Eladó családi ház

Pilisborosjenő

A NYUGALOM SZIGETE, ÖRÖKPANORÁMÁS CSALÁDI HÁZ ELADÓ A KÖVES-BÉRC LÁBÁNÁL. Budapest ...

Eladó családi ház

Pilisborosjenő

Az Otthon Centrum kínálatában : Pilisborosjenő belső ófalui részén ...

Eladó családi ház

Pilisborosjenő

Projekt bemutatása ÚJÉPÍTÉSŰ PRÉMIUM CSALÁDI HÁZAK PILISBOROSJENŐN, ...

Eladó családi ház

Pilisborosjenő

Projekt bemutatása ÚJÉPÍTÉSŰ PRÉMIUM CSALÁDI HÁZAK PILISBOROSJENŐN, ...

Hasonló családi ház hirdetések

Eladó családi ház

Pilisborosjenő

A NYUGALOM SZIGETE, ÖRÖKPANORÁMÁS CSALÁDI HÁZ ELADÓ A KÖVES-BÉRC LÁBÁNÁL. Budapest ...

Eladó családi ház

Pilisborosjenő

Az Otthon Centrum kínálatában : Pilisborosjenő belső ófalui részén ...

Eladó családi ház

Pilisborosjenő

Projekt bemutatása ÚJÉPÍTÉSŰ PRÉMIUM CSALÁDI HÁZAK PILISBOROSJENŐN, ...

Eladó családi ház

Pilisborosjenő

Projekt bemutatása ÚJÉPÍTÉSŰ PRÉMIUM CSALÁDI HÁZAK PILISBOROSJENŐN, ...