Eladó családi ház Pincehely 45 000 000 Ft

Leírás

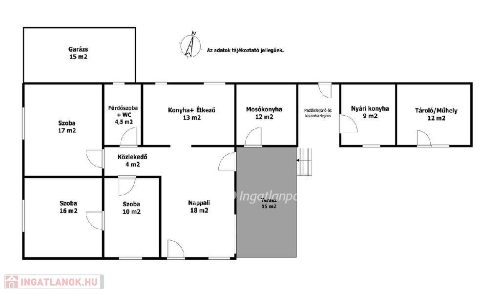
Pincehelyen eladó egy 110 m2-es, téglaépítésű, szépen felújított és kiváló állapotú családi ház, amely egy közel 3000 m2-es telken helyezkedik el. A klasszikus kádárkocka jellegű ingatlant praktikus elrendezésűvé tették: három szoba, nappali,konyha és mosókonyha került kialakításra benne. A ház igényes burkolatokat és festést kapott, a modern, jól felszerelt konyha pedig kényelmes és esztétikus teret biztosít a mindennapokhoz. Az ingatlan gondosan karbantartott, rendezett állapotú, így egy igazán otthonos, azonnal költözhető házról van szó.
Az ingatlan műszaki felújításon is átesett, a villanyvezeték-hálózat teljesen ki lett cserélve, valamint a víz- és szennyvízvezetékek is megújultak. A nyílászárók korszerű műanyag kivitelűek, szúnyoghálóval és redőnnyel felszerelve. A komfortérzetről többféle fűtési lehetőség gondoskodik: gázfűtés, fa tüzelésű központi rendszer, valamint két darab hűtő-fűtő klíma áll rendelkezésre. A padlás szigetelést kapott.
A tágas, 3000 m2-es telek kiváló lehetőséget nyújt kertészkedésre, gazdálkodásra. Az ingatlan állapota valóban kiemelkedően jó, a felújításnak köszönhetően az új tulajdonos számára egy kényelmes, azonnal birtokba vehető otthont kínál. Per- és tehermentes, megfelel az Otthon Start program feltételeinek.

Referencia szám: M324842

Családi ház részletei

Ár: 45 000 000 Ft
Méret: 110 négyzetméter
Azonosító: 11606057
Irodai azonosító: M324842-5175216
Telek: 2985 négyzetméter
Ingatlan állapota:
Jelleg: családi ház
Építőanyag: Tégla
Fűtés jellege: Egyedi
Fűtés módja: Gáz
Komfort fokozat: Összkomfort
Kor: 50 évesnél régebbi
Szintek száma: Földszintes
Egész szobák: 2
Fél szobák: 1

Egyéb jellemzők

  • Garázs

Térkép