Eladó családi ház Ráckeve, Újtelep, 89 900 000 Ft

Leírás

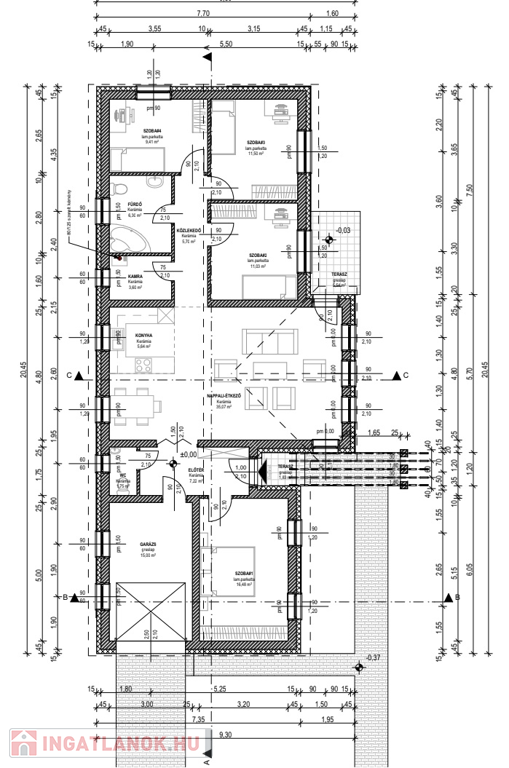
Eladó újépítésű, 136 m²-es földszintes családi ház Ráckeve frekventált részén – 4 szoba + 10 nm terasz, 807 m²-es telek

CSOK PLUSZRA ALKALMAS INGATLAN! HASZNÁLATBA VÉTELI ENGEDÉLLYEL RENDELKEZIK!

Ráckeve egyik legdinamikusabban fejlődő környékén kínáljuk megvételre ezt a modern, újépítésű, 136 m² alapterületű, földszintes családi házat, amelyhez egy 10 m²-es fedett terasz és egy 807 m²-es saját telek is tartozik.

Tökéletes választás:

Ez az ingatlan nemcsak a korszerű technológiákat (padlófűtés, energiatakarékos gázcirkó) kínálja, hanem a kiváló térkihasználást: garázs, előszoba, vendég Wc., fürdőszoba, kamra/kazánház, közlekedő, 4 szoba, tágas nappali, amerikai konyha és közvetlen kertkapcsolat a teraszon keresztül.

Ingatlan rövid műszaki tartalma:

-teherhordó falak Porotherm 30-as falazó elemből épültek

-belső teherhordó falak 10 cm-es tégla

-homlokzati szigetelés 15 cm-es

-Bramac cserép fedés – párazáró fólia- tetőszigetelés 2×15 cm-es

-Nyílászárok: ablakok fehér 3 rétegű, hőhídmentes- hőszigetelt műanyag nyílászárok, fehér bejárati ajtók 5 ponton záródó acél tokkal és biztonsági vasalással

-Ingatlan fűtése és használati melegvíz előállítása gázkazánról történik

-Hőleadás: padlófűtéssel megoldott

– riasztórendszer beszerelve

A 807 m²-es körbekerített kert rengeteg lehetőséget kínál: akár játszótér, kerti sütögető, medence vagy díszkert kialakítható.

A 10 m²-es fedett terasz pedig tökéletes helyszíne lehet családi reggeliknek, délutáni pihenéseknek vagy esti grillezéseknek.



Ráckeve – természetközeli, mégis jól ellátott város Pest megyében

Ráckeve közkedvelt célpont a Budapesttől elérhető távolságban, ahol egyesül a városi infrastruktúra és a nyugodt, természetközeli életforma. A városban megtalálható minden fontos szolgáltatás: iskola, óvoda, orvosi rendelő, boltok, gyógyszertár, termálfürdő, piac, éttermek és a Duna part nyújtotta rekreációs lehetőségek.

Amennyiben felkeltette érdeklődését az ingatlan várom szeretettel hívását időpont egyeztetésre!

Tőlünk vásárolt ÜGYFELEK számos kedvezményt vehetnek igénybe min pl. független- ingyenes hitelügyintézés és tanácsadás, MÖMAX áruházban vásárlás esetén 10 % , DIEGO-ba vásárlás esetén 10%, Vét-Gát vagyonvédelem- Szolgálat ingyenes bekötés, Sentinel- Max védelmi szolgálat ingyenes bekötés, Asztalos belső építés minden megrendelésből 10%, Enterprise Development online marketing és honlap készítés 10%

Családi ház részletei

Ár: 89 900 000 Ft
Méret: 136 négyzetméter
Azonosító: 11550265
Városrész: Újtelep
Telek: 807 négyzetméter
Ingatlan állapota: Kérdezzen rá a hirdetőtől »
Jelleg: családi ház
Építőanyag: Tégla
Fűtés jellege: Cirkó
Fűtés módja: Gáz
Komfort fokozat: Összkomfort
Kor: Új építésű
Elhelyezkedés: Udvari
Szintek száma: Földszintes
Egész szobák: 5
Nappalik: 1

Egyéb jellemzők

  • Beépíthető tetőtér
  • Csatorna
  • Garázs
  • Melléképület
  • Padlás
  • Parketta
  • Pince
  • Terasz

Térkép

Hasonló családi ház hirdetések

Eladó családi ház

Ráckeve

Ráckevén csendes utcában 2 lakásos ikerházban 90 % készültségben eladó. ...

Eladó családi ház

Ráckeve

Eladó családi ház Ráckevén - A tökéletes otthon álma most valóra válik! Ráckeve ...

Eladó családi ház

Ráckeve, Újtelep

???? Eladó újépítésű, földszintes önálló családi ház Ráckeve csendes ...

Eladó családi ház

Ráckeve

Eladó új építésű önálló családi házak Ráckevén! Most épülő ...

Hasonló családi ház hirdetések

Eladó családi ház

Ráckeve

Ráckevén csendes utcában 2 lakásos ikerházban 90 % készültségben eladó. ...

Eladó családi ház

Ráckeve

Eladó családi ház Ráckevén - A tökéletes otthon álma most valóra válik! Ráckeve ...

Eladó családi ház

Ráckeve, Újtelep

???? Eladó újépítésű, földszintes önálló családi ház Ráckeve csendes ...

Eladó családi ház

Ráckeve

Eladó új építésű önálló családi házak Ráckevén! Most épülő ...