Eladó családi ház Ráckeve 99 000 000 Ft

Leírás

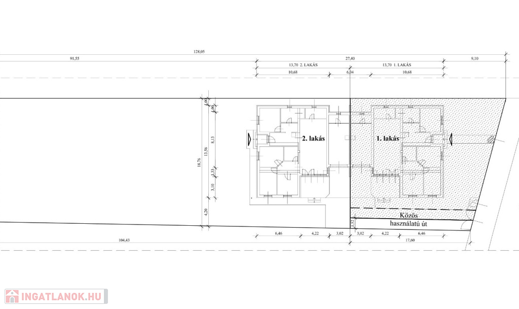
Megvételre kínálok Ráckevén 2db új építésű társas családiházat. Az ingatlanok Ráckeve kedvelt új építési övezetében vannak, közel a Dunaparthoz és a Strandhoz, Termálfürdőhöz.
1-es lakás ára: 99 000 000 Ft
127m2 360 m2 telekrésszel.
2-es lakás ára: 108 000 000 Ft
127m2 2 300 m2 telekrésszel.
Mindkét lakás tartalmaz 4 szobát, amerikai konyhás nappalit, 2 fürdőszobát, spejzt, gardróbot, garázst. Akár 3 gyermekes család kényelmes lakhatását is biztosítja. Az épületek minőségi kivitelezéssel, prémium kategóriájú anyagok felhasználásával készülnek. Az ingatlanok 30 cm-es Porotherm téglából épülnek, 15 cm-es grafitos dryvit szigeteléssel, műanyag 7 légkamrás nyílászárókkal, valamint a tető Bramac beton cserépfedéssel kerül kialakításra. A fűtésről, hűtésről és a meleg vízellátásról, energiatakarékos, hőszivattyús fűtési rendszer (padlófűtés), illetve 3,6kW hűtő fűtő klíma gondoskodik.
Riasztó és napelem előkészítéssel, illetve elektromos garázskapuval. A ház jelenleg építés alatt, befejezése a vevő igényeit figyelembe véve történik. A burkolatokat, szanitereket, belső nyílászárókat, a tulajdonos választhatja a megállapodás szerinti értékhatárig. A vételár kulcsrakész állapotra vonatkozik, amely a konyhabútort nem tartalmazza.
Várom megtisztelő érdeklődését: Keresztes Zoltán 06-30-674-8605

Családi ház részletei

Ár: 99 000 000 Ft
Méret: 127 négyzetméter
Azonosító: 11593153
Összesített energetikai besorolás: A
Ingatlan állapota: Kérdezzen rá a hirdetőtől »
Jelleg: családi ház
Építőanyag: Kérdezzen rá a hirdetőtől »
Egész szobák: 5

Térkép

Hasonló családi ház hirdetések

Eladó családi ház

Ráckeve

Eladó családi ház Ráckevén - A tökéletes otthon álma most valóra válik! Ráckeve ...

Eladó családi ház

Ráckeve, Újtelep

Eladó újépítésű, 136 m²-es földszintes családi ház Ráckeve frekventált ...

Eladó családi ház

Ráckeve

Eladó ingatlan a Duna partján, lenyűgöző erkélyes panorámával és magas ...

Eladó családi ház

Ráckeve

Eladásra kínálok egy rendkívül különleges, felújított családi házat ...

Hasonló családi ház hirdetések

Eladó családi ház

Ráckeve

Eladó családi ház Ráckevén - A tökéletes otthon álma most valóra válik! Ráckeve ...

Eladó családi ház

Ráckeve, Újtelep

Eladó újépítésű, 136 m²-es földszintes családi ház Ráckeve frekventált ...

Eladó családi ház

Ráckeve

Eladó ingatlan a Duna partján, lenyűgöző erkélyes panorámával és magas ...

Eladó családi ház

Ráckeve

Eladásra kínálok egy rendkívül különleges, felújított családi házat ...