Eladó családi ház Siófok 255 000 000 Ft

Leírás

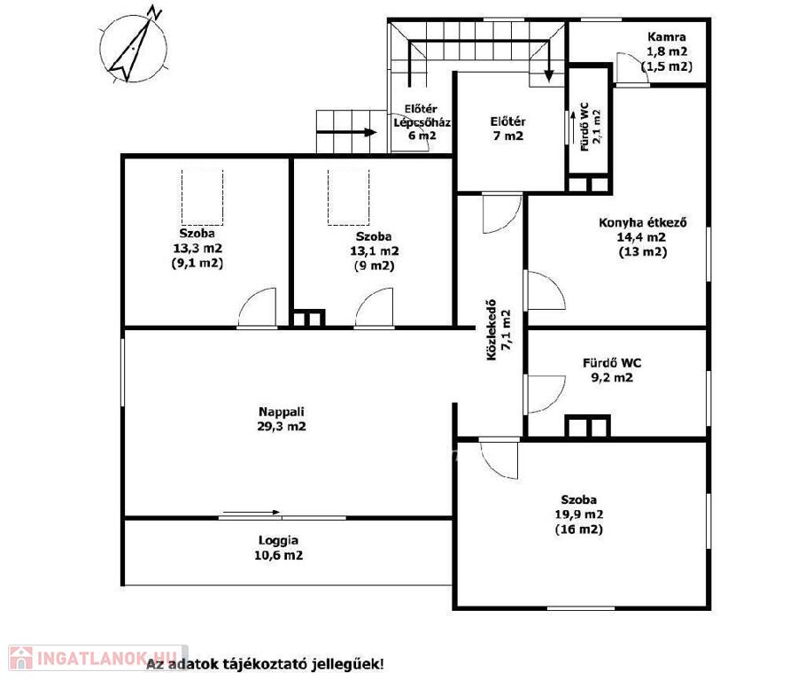
Balaton déli part, Siófok, 220 m2 társasházzá alakított 2 lakóegységes családi ház eladó. A földszint + tetőtér kialakítású ingatlan frekventált üdülőövezetben helyezkedik el, a Balaton-parttól 280 méterre. Az épület több elemében felújításra került az elmúlt években, homlokzati hőszigetelés, műanyag nyílászárók kerültek beépítésre, tetőhéjazat csere történt. A lakások megközelítése külön bejáraton keresztül biztosított, a terület kerítéssel kettéválasztott, a tetőtéri lakás megközelítése zárt lépcsőházon keresztül történik. A lakások külön mérőórákkal rendelkeznek. A lakások fűtése külön kombi gázkazánról működik. Minkét lakóegységben biztosított a vegyes tüzelésű kiegészítő fűtés. A lakások minősített kereskedelmi szálláshelyként vannak nyilvántartva. Az épület alkalmas lehet több generáció együttélésére, valamint befektetésre, kiadásra. Városközpont 800 méter távolságban van. Bővebb információért keressen telefonon!

Az energetikai tanúsítvány készítése folyamatban van, amint rendelkezésre áll, úgy azzal a hirdetés frissítésre kerül.



Referencia szám: M312828

Családi ház részletei

Ár: 255 000 000 Ft
Méret: 220 négyzetméter
Azonosító: 11567559
Irodai azonosító: M312828-5043952
Telek: 603 négyzetméter
Ingatlan állapota:
Jelleg: családi ház
Építőanyag: Tégla
Fűtés jellege: Cirkó
Fűtés módja: Gáz
Komfort fokozat: Dupla komfort
Kor: 50 évesnél régebbi
Szintek száma: 1 szint
Egész szobák: 8

Egyéb jellemzők

  • Garázs

Térkép

Hasonló családi ház hirdetések

Eladó családi ház

Siófok

Siófok rózsadombján a Fokihegyen eladó egy 425 m2-es, 3 szintes, családi ...

Eladó családi ház

Siófok

Siófok-Sóstó, új építésű lakóparkjában a Csenge utcában eladó ez ...

Eladó családi ház

Siófok

Eladó luxusingatlan Siófok legszebb lakóparkjában, panorámás kilátással ...

Eladó családi ház

Siófok

Balaton déli parton, Siófokon 118 m2-es családi ház 56 m2-es lakható melléképülettel ...

Hasonló családi ház hirdetések

Eladó családi ház

Siófok

Siófok rózsadombján a Fokihegyen eladó egy 425 m2-es, 3 szintes, családi ...

Eladó családi ház

Siófok

Siófok-Sóstó, új építésű lakóparkjában a Csenge utcában eladó ez ...

Eladó családi ház

Siófok

Eladó luxusingatlan Siófok legszebb lakóparkjában, panorámás kilátással ...

Eladó családi ház

Siófok

Balaton déli parton, Siófokon 118 m2-es családi ház 56 m2-es lakható melléképülettel ...