Eladó családi ház Sülysáp 69 990 000 Ft

Leírás

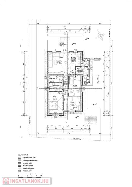
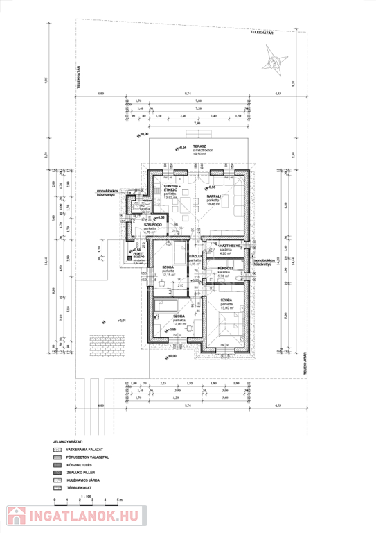
Sülysápon a Dózsa György út 130 szám alatt, 92,85 m2-es három szoba + amerikai konyhás nappalival rendelkező, energiahatékony családi házak eladók!

A hátsó ingatlan elkelt!

A tartószerkezeti falak Porotherm P30N+F téglából, betonkoszorúval, fa födémes tetőszerkezettel készülnek. A lábazat 10 cm polisztirol lépésálló, a homlokzatok 15cm-es EPS, a vízszintes födém 25 cm ásványgyapot szigeteléssel lesz ellátva.

Három rétegű üvegekkel szerelt, hat légkamrás műanyag thermo nyílászárók kerülnek beépítésre.

A minimális energiaigényt a megfelelő szigetelésen kívül a megújuló energiát használó gépészet is biztosítja. A fűtést levegő-víz hőszivattyús rendszer fogja végezni.


Burkolatok , szaniterek, belső ajtók, csaptelepek választhatóak a következő értékhatárig:

-Hidegburkolat: 3000 Ft.-/m2
-Melegburkolat: 3000 Ft.-/m2
-Beltéri ajtók: 30.000.Ft.-/db
-Fürdőkád: 40.000.- Ft.-
-Csaptelepek: 15000.- Ft.-/db

Magasabb árú választás is lehetséges, a különbség finanszírozásával.

Csok plusz igényelhető!

Tervezett átadás 2026 első negyedév.

Érdeklődő ügyfeleinknek a tervdokumetációt és a műszaki tartalmat készséggel rendelkezésre bocsájtjuk.

INGYENES hitel tanácsadás, CSOK Plusz ügyintézés!
BANKFÜGGETLEN hitelcentrumunk az összes elérhető bank és hitelintézet ajánlatát versenyezteti az Ön kedvéért, ráadásul DÍJMENTESEN.

- Egyedi, bankfiókban nem elérhető kamat- és díjkedvezmények
- Hitelképesség vizsgálat
- Idő, energia és pénz megtakarítás
- Teljes hivatali ügyintézés

Amennyiben hirdetésem felkeltette az érdeklődését vagy egyéb információra van szüksége hívjon bizalommal!

Családi ház részletei

Ár: 69 990 000 Ft
Méret: 93 négyzetméter
Azonosító: 11546561
Irodai azonosító: 384282
Cím: Dózsa György út
Telek: 380 négyzetméter
Ingatlan állapota: Kitűnő
Jelleg: családi ház
Építőanyag: Tégla
Fűtés jellege: Geotermikus
Fűtés módja: Hőszivattyú
Komfort fokozat: Összkomfort
Kor: Új építésű
Szintek száma: Földszintes
Egész szobák: 4

Egyéb jellemzők

  • Csatorna
  • Garázs
  • Pince
  • Terasz

Térkép

Hasonló családi ház hirdetések

Eladó családi ház

Sülysáp

Sülysápon a Határ úton 960 m2-es telken, 93,76 m2-es három szoba + amerikai ...

Eladó családi ház

Sülysáp

Sülysápon a Dózsa Gyögy út és az Ady endre utca sarkán , 600 m2-es ...

Eladó családi ház

Sülysáp

Sülysápon, a Kókai utcában, csendes és rendezett környezetben kínálunk ...

Eladó családi ház

Sülysáp

Sülysápon a Határ úton , 874m2-es telken nettó 92,68 m2-es három szoba ...

Hasonló családi ház hirdetések

Eladó családi ház

Sülysáp

Sülysápon a Határ úton 960 m2-es telken, 93,76 m2-es három szoba + amerikai ...

Eladó családi ház

Sülysáp

Sülysápon a Dózsa Gyögy út és az Ady endre utca sarkán , 600 m2-es ...

Eladó családi ház

Sülysáp

Sülysápon, a Kókai utcában, csendes és rendezett környezetben kínálunk ...

Eladó családi ház

Sülysáp

Sülysápon a Határ úton , 874m2-es telken nettó 92,68 m2-es három szoba ...