Eladó családi ház Szada 124 500 000 Ft

Leírás

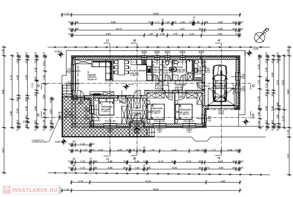
Szada csendes, panorámás részén eladó ÚJÉPÍTÉSŰ nettó 116 nm-es lakóterülettel (+22 nm-es fedett terasz), földszintes családi ház, 950 nm-es telken.
B30-as Porotherm tégla falazatú, külső 10 cm-es grafitflex szigeteléssel. A válaszfalak 10 cm-es 10 N+F Porotherm típusú.
45 cm-es beton sávalapon, a talajon fekvő padozat 15 cm-es austrotherm XPS szigetelést kapott.
A födém előregyártott E gerendás EB60/19 béléstestes, vasbeton födém.
A tető héjalása Tondach cserép.
A fehér műanyag redőnnyel ellátott nyílászárók 3 rétegű thermoplán üvegezésűek.
A jó hőtartását fokozza az ingatlannak a padlástérben elhelyezett 22 cm-es austrotherm XPS szigetelés.
A fűtést a garázsból nyíló gépészeti helyiségben elhelyezett hőszivattyú biztosítja, mely padlófűtésen adja le minden helyiségben a hőt.
A következő helyiségek kerültek kialakításra:
- nappali 26,94 nm,- konyha-étkező 11,26 nm, -háló 11,55 nm, -előszoba 5,28 nm (tetőtérre feljáró kialakítva, lehajtható létrával), -háló 11,36 nm, - háló 11,34 nm, -kamra 2,67 nm, - wc-kézmosó 2,52 nm, -fürdő-wc 5,53 nm, -garázs 19,71 nm, -gépészeti helyiség 2,15 nm, -közlekedő 5 nm, - fedett terasz 22,8 nm.

A riasztó rendszer, elektromos redőny előkészítve, H tarifás villanyóra, 3 x 20 Amper rendelkezésre áll.
A vételár részét képezi a konyhabútor, egyedileg választott színű lapokkal, és frontrészekkel, beépített gránit mosogatóval, páraelszívóval.

A burkolatok még választhatóak.

Kb. 400 méterre a 396-os számú busz megállója, mely Budapest Újpest-Városkapu és Veresegyház között közlekedik. Közelben Coop, Lidl, gyógyszertár.

Családi ház részletei

Ár: 124 500 000 Ft
Méret: 116 négyzetméter
Azonosító: 11542170
Irodai azonosító: 383570
Cím: panorámás részén
Telek: 950 négyzetméter
Ingatlan állapota: Kitűnő
Jelleg: családi ház
Építőanyag: Tégla
Fűtés jellege: Geotermikus
Fűtés módja: Hőszivattyú
Komfort fokozat: Összkomfort
Kor: Új építésű
Szintek száma: Földszintes
Egész szobák: 4

Egyéb jellemzők

  • Csatorna
  • Garázs
  • Pince
  • Terasz

Térkép

Hasonló családi ház hirdetések

Eladó családi ház

Szada

Szadán a Vasút Köz-ben, új építésű ingatlanok között, nettó 150,4 ...

Eladó családi ház

Szada

Kivételes Ajánlat! A megfelelő otthon, a nyugalom záloga Fodor Ingatlanközvetítő ...

Eladó családi ház

Szada

Megvételre kínálunk Szadán egy új építésű, HŐSZIVATTYÚS, ...

Eladó családi ház

Szada

ELADÓ SZADÁN EGYEDÜL ÁLLÓ CSALÁDI HÁZ, ÓRIÁSI UDVARRAL!!! Eladó ...

Hasonló családi ház hirdetések

Eladó családi ház

Szada

Szadán a Vasút Köz-ben, új építésű ingatlanok között, nettó 150,4 ...

Eladó családi ház

Szada

Kivételes Ajánlat! A megfelelő otthon, a nyugalom záloga Fodor Ingatlanközvetítő ...

Eladó családi ház

Szada

Megvételre kínálunk Szadán egy új építésű, HŐSZIVATTYÚS, ...

Eladó családi ház

Szada

ELADÓ SZADÁN EGYEDÜL ÁLLÓ CSALÁDI HÁZ, ÓRIÁSI UDVARRAL!!! Eladó ...