Eladó családi ház Szeged 160 000 000 Ft

Leírás

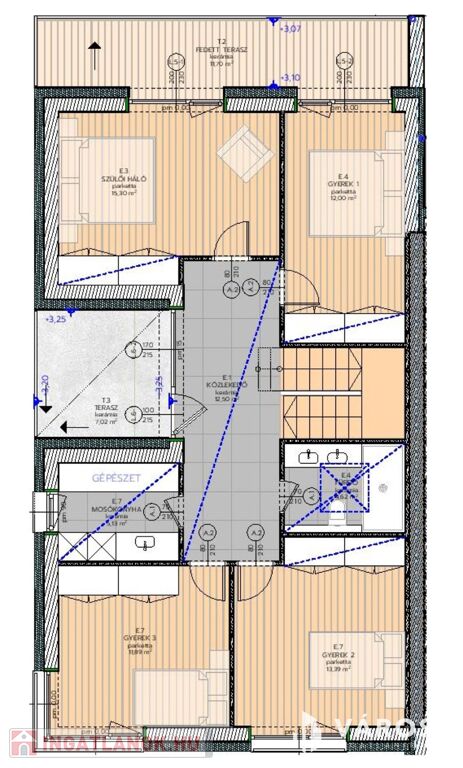
Újszeged kiváló részén eladó, jó elosztású, nappali + 4 szobás kétszintes, 195 négyzetméteres (nettó 160 m2) iker ház, dupla garázzsal, 384 négyzetméteres telekkel, szerrkezetkész állapotban.
Az ingatlan közelében Nova bevásárlóközpont, Gellért szabadidőközpont, valamint a Holt- Maros sétány található.
A ház főbb jellemzői:
- lakótér: 160 m2
- Földszint: dupla garázs: 33,06 m2
- fedett terasz: 11,07 + 8,06 m2
- amerikai konyhás nappali 36 m2
- előszoba + előtér + WC.
- Emelet:
- 4 hálószoba
- Fürdőszoba
- közlekedő
- 2 db terasz
- háztartási és gépészeti helyiség

Műszaki tartalom a teljesség igénye nélkül:

-Lemez alap mikro cölöpökkel
-Okos tégla 30 cm tartó falak
-20 cm homlokzati hőszigetelés
- Monolit vasbeton födém
- Dupla soros gipszkarton válaszfalak
- Alumínium nyílászárók és árnyékolók
- Padló fűtés, Mennyezet hűtés levegős hőszivattyúval napelemmel
- Elektromos garázskapu

A kulcsrakész ár tartalmazza a térburkolását és a kerítés építést.

Fizetési ütemezés:
Szerződéskötéskor a vásárló nevére kerül a telek tulajdoni hányad 37.500.000 ,-Ft / lakóegység
Szerződéskötéskor 20% vételár rész.

Minden ezt követő teljesítés kiegyenlítése a kötbér köteles pénzügyi és műszaki ütemterv szerint történik.

Amennyiben felkeltette érdeklődését az ingatlan, hívjon bizalommal a 06302490482 tel. számon, akár hétvégén is.
dr. Vass Zoltán
(További képekért és információkért kérem hívjon!)

Családi ház részletei

Ár: 160 000 000 Ft
Méret: 195 négyzetméter
Azonosító: 11602518
Irodai azonosító: 059857
Telek: 768 négyzetméter
Ingatlan állapota: Szerkezetkész
Jelleg: ikerház
Építőanyag: Tégla
Fűtés jellege: Hőszivattyú
Egész szobák: 5
Fél szobák: 1
Nappalik: 1

Egyéb jellemzők

  • Beépíthető tetőtér
  • Csatorna
  • Garázs
  • Melléképület
  • Pince
  • Terasz

Hasonló családi ház hirdetések

Eladó családi ház

Szeged

Szeged Petőfi telepen Eladó egy most induló, tégla építésű, 154 nm-es ...

Eladó családi ház

Szeged

Újszegeden lakás és munkahely egy helyen! Újszeged kertvárosi részén ...

Eladó családi ház

Szeged

Szeged Felsővároson eladó 230 négyzetméteres családi ház, 275 négyzetméteres ...

Eladó családi ház

Szeged

Eladó ikerház Újszeged exkluzív részén! Szeged Újszeged városrészében, ...

Hasonló családi ház hirdetések

Eladó családi ház

Szeged

Szeged Petőfi telepen Eladó egy most induló, tégla építésű, 154 nm-es ...

Eladó családi ház

Szeged

Újszegeden lakás és munkahely egy helyen! Újszeged kertvárosi részén ...

Eladó családi ház

Szeged

Szeged Felsővároson eladó 230 négyzetméteres családi ház, 275 négyzetméteres ...

Eladó családi ház

Szeged

Eladó ikerház Újszeged exkluzív részén! Szeged Újszeged városrészében, ...