Eladó családi ház Szeged 179 000 000 Ft

Leírás

Kedves Érdeklődő!

Eladó Újszegeden a lányneves utcákban új építésű önálló családi ház. A ház szerkezetkész állapotban van, a kulcsrakész átadást 2 hónapos határidővel tudja vállalni a kivitelező!

Főbb jellemzők:
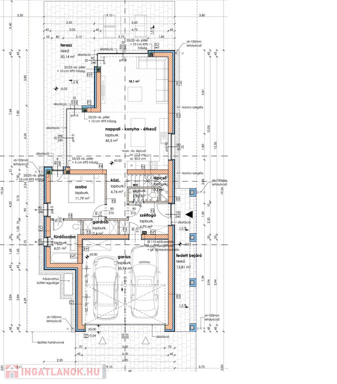
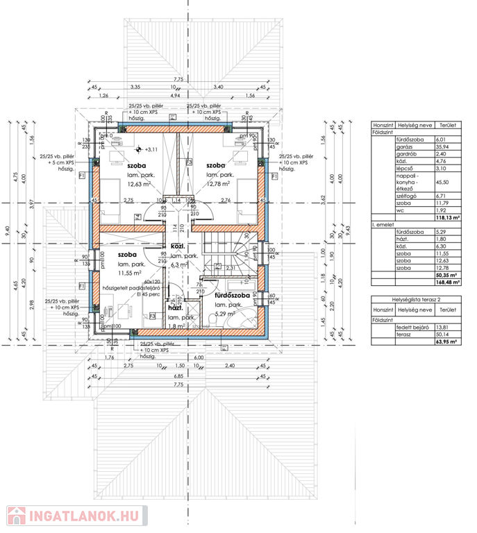
- 746 m2-es önálló telken épülő, szabadon álló belső szintes családi ház
- 30 cm tégla falazat, 15 cm EPS hőszigetelés
- nettó alapterület: 168,5 m2 + 13,8 m2 fedett bejáró + 50 m2 terasz
- nappali + 4 szobás elrendezés
- 2 fürdőszoba, 3 wc
- 50 m2-es terasz
- dupla garázs

Az emelt szintű szerkezetkész állapot a következőket tartalmazza: 
- villanyszerelési vezetékelés, riasztó rendszerrel együtt (gyenge áram), szerelvények nélkül;
- festés - 2 sor glettelés, 1 sor fehér színű falfestés
- gépészeti szerelés hőszivattyúval - padlófűtés, mennyezethűtés, szabályozó NGBS elektronika

Amit a feltüntetett ár nem tartalmaz: szerelvények (kád, tuskabin, wc -k, csapok), burkolások, beltéri ajtók és a külső kerti elemek nincsenek ebben az árban (kerítés, kertrendezés, térburkolás)

A kulcsrakész állapot tartalma:
- beltéri ajtók (150.000 Ft-ig)
- burkolást, burkolatokat (8.000 Ft/m2-ig)
- villany szerelvényeket (egyeztetett árig), alap riasztó rendszert
- gépészeti szerelvényeket: kád, tuskabin, wc -k, csapok (egyeztetett árig)
- külső részen: térburkolást a garázsbejáróban, ajtóban, termőföld feltöltést, kerítést

Kulcsrakész ár: 210.000.000 Ft

A tervezett szerkezetkész állapot elkészült, a kulcsrakész befejezést a kivitelező 2 hónapos határidővel vállalja!

További információért és időpont egyeztetéssel kapcsolatban forduljon hozzám bizalommal!

Elérhetőség:
Német Máté
+36-30/ 975-8764
nemet.mate@varos.hu
(További képekért és információkért kérem hívjon!)

Családi ház részletei

Ár: 179 000 000 Ft
Méret: 207 négyzetméter
Azonosító: 11393467
Irodai azonosító: 687318
Erkély mérete: 50.00 négyzetméter
Telek: 746 négyzetméter
Ingatlan állapota: Szerkezetkész
Jelleg: családi ház
Építőanyag: Tégla
Fűtés jellege: Cirkó
Egész szobák: 5
Nappalik: 1

Egyéb jellemzők

  • Beépíthető tetőtér
  • Csatorna
  • Garázs
  • Melléképület
  • Pince
  • Terasz

Hasonló családi ház hirdetések

Eladó családi ház

Szeged

Szeged Petőfi telepen Eladó egy most induló, tégla építésű, 154 nm-es ...

Eladó családi ház

Szeged

NAGYCSALÁDOSOK, ÖSSZEKÖLTÖZŐK FIGYELMÉBE!CSALÁDI HÁZ A MÁTYÁS TÉR ...

Eladó családi ház

Szeged

AZONNAL KÖLTÖZHETŐ, ÚJ ÉPÍTÉSŰ, ENERGIATAKARÉKOS, MODERN IKERHÁZ!!!! Újszeged ...

Eladó családi ház

Szeged

AZONNAL KÖLTÖZHETŐ KULCSRAKÉSZ INGATLANOK A HOLT MAROS BRIDGE KÖZELÉBEN! LEGYEN ...

Hasonló családi ház hirdetések

Eladó családi ház

Szeged

Szeged Petőfi telepen Eladó egy most induló, tégla építésű, 154 nm-es ...

Eladó családi ház

Szeged

NAGYCSALÁDOSOK, ÖSSZEKÖLTÖZŐK FIGYELMÉBE!CSALÁDI HÁZ A MÁTYÁS TÉR ...

Eladó családi ház

Szeged

AZONNAL KÖLTÖZHETŐ, ÚJ ÉPÍTÉSŰ, ENERGIATAKARÉKOS, MODERN IKERHÁZ!!!! Újszeged ...

Eladó családi ház

Szeged

AZONNAL KÖLTÖZHETŐ KULCSRAKÉSZ INGATLANOK A HOLT MAROS BRIDGE KÖZELÉBEN! LEGYEN ...