Eladó családi ház Vecsés 114 500 000 Ft

Leírás


Megvételre kínálunk Vecsésen egy új építésű 124 m²-es, HŐSZIVATTYÚS, teraszos, 5 szobás, dupla komfortos, gardróbos, dupla garázsos, családiházat. A ház tájolása és elosztása kiváló, tágas, világos, nyitott nagy terekkel rendelkezik.

Az ingatlan igényes kivitelezéssel, minőségi alapanyagokból, átgondolt tervezéssel, egyedi belső kialakítással készült, ahol a kényelem és az átgondolt tervezés mellett az energia takarékosság volt a fő szempont. Az ingatlan nappalija egy 14 nm-es teraszon keresztül kertkapcsolatos. Az ingatlan fűtéséről egy modern, energia takarékos, innovatív levegő-víz hőszivattyú gondoskodik H tarifás üzemeltetéssel.

Ennek köszönhetően a rezsi költségek minimalizálódnak.

Az ingatlan három darab inverteres  hűtő-fűtő klímával van felszerelve, így télen-nyáron egyöntetű kellemes a hőmérséklet. A használati melegvíz ellátás okos bojlerről történik.

 

A ház egy nagyobb telken fekszik, melyből kb. 280 nm privát kert. Gépjármű beállási lehetőségével a fedett térkövezett gépjármű beállón lehet biztonságosan parkolni.

A kulcsrakész ár tartalmazza az elektromos redőny előkészítést, három rétegű nyílászárókat, riasztó előkészítést, kaputelefon és motoros kapu kiépítést, valamint a klíma előkészítés kiépítését.

 

AZONNAL KÖLTÖZHETŐ!

 

AJÁNDÉK KONYHABÚTORRAL!

 

Társasházi szerződéssel, albetétesítve, külön mérőórákkal.

 

Igénybe vehető lehetséges kedvezmények:

- CSOK

- 5% Áfa visszatérítés

- Babaváró hitel

- Illeték kedvezmény vagy mentesség

 

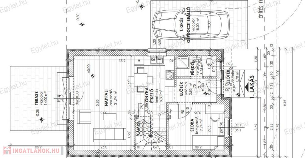
Helyiség lista a földszinten:

- Előtér

- Fürdőszoba

- Amerikai konyha

- Étkező

- Kamra

- Nappali 

- Szoba

- Terasz

 

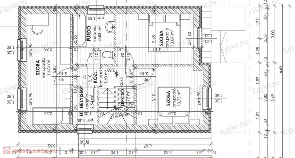
Helyiség lista az emeleten:

- Lépcsőház

- Fürdőszoba

- Közlekedő

- Gardrób

- Szoba

- Szoba

- Szoba

 

A hirdetés referencia fotókat is tartalmaz.

 

Az ingatlan biztonságos, nyugodt, csendes, kertes házas övezetében, Vecsés egyik legszebb részén található. A környék fejlett infrastruktúrájának köszönhetően bővelkedik a szociális intézményekben, bölcsőde, óvoda, általános iskola, orvosi intézmények, bevásárlási lehetőségek, találhatóak a közelben.

Közlekedése kiváló, busszal vagy vonattal Budapest központja rövid idő alatt megközelíthető. Az M0-ás, M 4-es, valamint az M 5-ös autópályák pár perc alatt elérhetőek.

 

Hitel, CSOK igénylésben díjmentes ügyintézéssel állunk rendelkezésére! Nálunk kiválaszthatja az Ön számára legkedvezőbb ajánlatot.

Várom megtisztelő érdeklődésüket.

Családi ház részletei

Ár: 114 500 000 Ft
Méret: 124 négyzetméter
Azonosító: 11568705
Irodai azonosító: 209002020
Telek: 300 négyzetméter
Ingatlan állapota: Kitűnő
Jelleg: családi ház
Építőanyag: Tégla
Komfort fokozat: Dupla komfort
Kor: Új építésű
Egész szobák: 5

Hasonló családi ház hirdetések

Eladó családi ház

Vecsés

**Pest megyei Vecsésen eladóvá vált egy 1329m2 telken 90m2 téglaépítésű ...

Eladó családi ház

Vecsés

Vecsésen felújított, földszintes családi ház eladó! Vecsés csendes, ...

Eladó családi ház

Vecsés, Andrássytelep

Vecsés Andrássy telepen, mindenhez közel (állomás, iskola, óvoda, M0-ás) ...

Eladó családi ház

Vecsés

Megvételre kínálunk Vecsésen egy új építésű 124 ...

Hasonló családi ház hirdetések

Eladó családi ház

Vecsés

**Pest megyei Vecsésen eladóvá vált egy 1329m2 telken 90m2 téglaépítésű ...

Eladó családi ház

Vecsés

Vecsésen felújított, földszintes családi ház eladó! Vecsés csendes, ...

Eladó családi ház

Vecsés, Andrássytelep

Vecsés Andrássy telepen, mindenhez közel (állomás, iskola, óvoda, M0-ás) ...

Eladó családi ház

Vecsés

Megvételre kínálunk Vecsésen egy új építésű 124 ...