Eladó családi ház Vecsés 129 900 000 Ft

Leírás

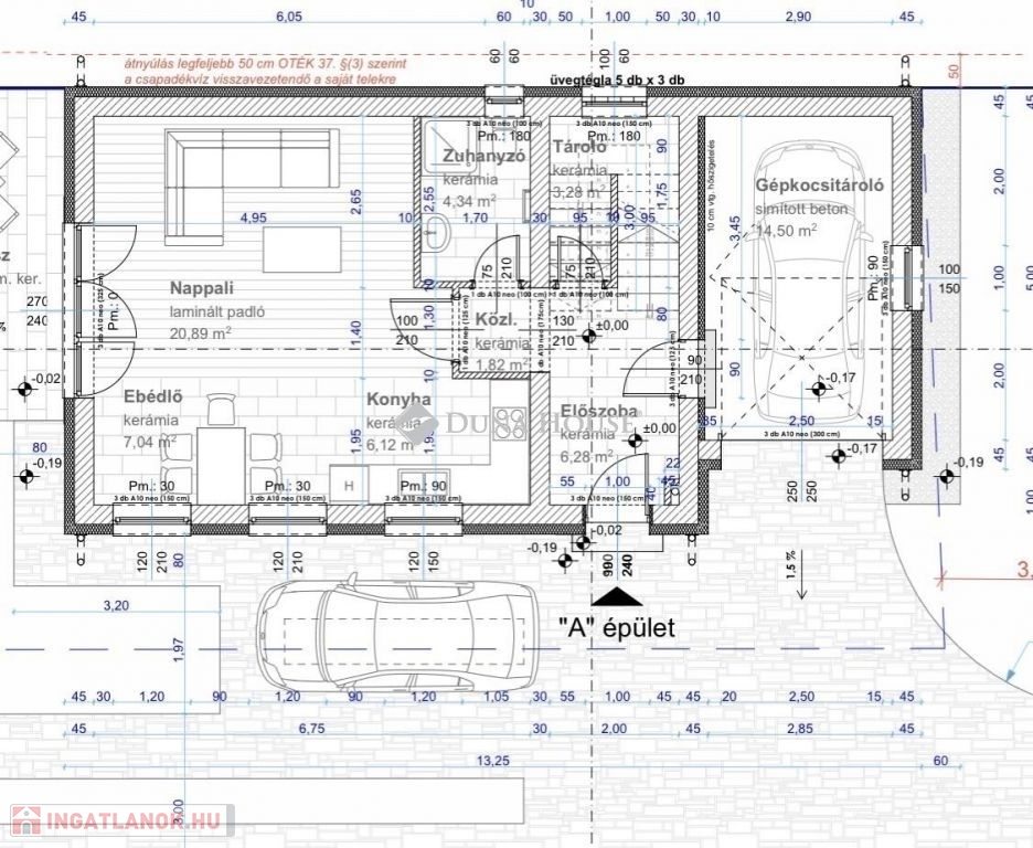
Vecsésen frekventált helyen kínálok megvételre egy új építésű családi házat .1174 nm -es telken ügyvédi megosztással 2 db különálló családi ház épült. Készültségi fok 100 %Telek mérete 540 nm ( saját )Nettó alapterület 119 nmKialakításAlsó szinten :-amerikai konyhás nappali-szoba -Közlekedő-Zuhanyzós Fürdőszoba-Lépcsőtér ( alatta kamra kialakítva)Emeleten :- 3 db hálószoba- Fürdőszoba káddal ellátva-Gardrób-KözlekedőSzobákban laminált parketta , a többi helységben kő burkolatok kerültek lerakásra. Az ingatlan beton alapon b 30-as Porotherm téglából épül , 15 cm vastagságú eps 80 -as szigeteléssel ellátva, rajta nemes vakolattal.A tető fa födémes 30 cm es szigeteléssel ellátva , a héjazat Tonndach tetőcserép.Hőszivattyús fűtésrendszer , padlón keresztül történő hőleadással. Nyílászárók 3 rétegű műanyag nyílászárókAz épület mellett egy fedett autó beálló került kialakításra. Bár osztott telken található az ingatlan mégis külön érzetet ad hiszen nincs közös bejárat sem közös fal, ráadásul a telek is 540 nm !Közlekedés szempontjából bevásárlás, iskola, óvoda, orvosi ellátás pár percnyire elérhető. Amennyiben hirdetésem felkeltette érdeklődését keressen bizalommal.

129900000 Ft

Családi ház részletei

Ár: 129 900 000 Ft
Méret: 119 négyzetméter
Azonosító: 11592260
Irodai azonosító: HZ029959-5122162
Cím: 119 nm-es ház eladó Vecsés
Telek: 540 négyzetméter
Összesített energetikai besorolás: A
Ingatlan állapota: Épülő
Jelleg: családi ház
Építőanyag: Tégla
Fűtés jellege: Villany
Fűtés módja: Hőszivattyú
Kor: Új építésű
Szintek száma: Földszintes
Egész szobák: 5

Térkép

Hasonló családi ház hirdetések

Eladó családi ház

Vecsés

Megvételre kínálunk Vecsés legszebb részén egy garázsos, ...

Eladó családi ház

Vecsés

Megvételre kínálunk Vecsés legszebb részén egy garázsos, ...

Eladó családi ház

Vecsés

Erdőszéli modern otthon eladó – 2019-es építés, saját kerttel és ...

Eladó családi ház

Vecsés

Vecsésen frekventált helyen kínálok megvételre egy új építésű családi ...

Hasonló családi ház hirdetések

Eladó családi ház

Vecsés

Megvételre kínálunk Vecsés legszebb részén egy garázsos, ...

Eladó családi ház

Vecsés

Megvételre kínálunk Vecsés legszebb részén egy garázsos, ...

Eladó családi ház

Vecsés

Erdőszéli modern otthon eladó – 2019-es építés, saját kerttel és ...

Eladó családi ház

Vecsés

Vecsésen frekventált helyen kínálok megvételre egy új építésű családi ...