Eladó családi ház Veszprém 149 000 000 Ft

Leírás

Tágas, igényes szélső sorház zöldövezetben – akár több generációnak is!

- Ha egy minőségi kialakítású, tágas és sokoldalú otthont keresel, ahol a kényelem, a nyugalom és a természet közelsége idilli harmóniában áll, akkor ez az ingatlan tökéletes választás!

- A 450 m²-es telken elhelyezkedő, 240 m²-es, kétszintes ház igényes kialakításának köszönhetően kifogástalan állapotban várja új lakóit.

- A fűtésrendszer sokoldalúságot kínál: padlófűtés, radiátorok és egy hangulatos kandalló gondoskodnak a kellemes hőmérsékletről és a meghitt hangulatról.

- A fa és műanyag nyílászárók, valamint a hatékony szigetelés energiatakarékos működést biztosítanak, a cseréptető pedig elegáns és időtálló megjelenést ad az épületnek.

- A földszint akadálymentesített, így kerekesszékkel is kényelmesen használható.
- A tágas amerikai konyhás nappali étkezővel, 3 nagyobb szoba, 2 fürdőszoba + külön WC, valamint tárolók és egy praktikus, beépített könyvespolcos folyosó teszik otthonossá a teret.

- Az udvarban három tároló található, igény szerint elbonthatók.

- Parkolás az udvarban és a ház előtt is biztosított.

- Az emeletet tömör falépcső köti össze a földszinttel.
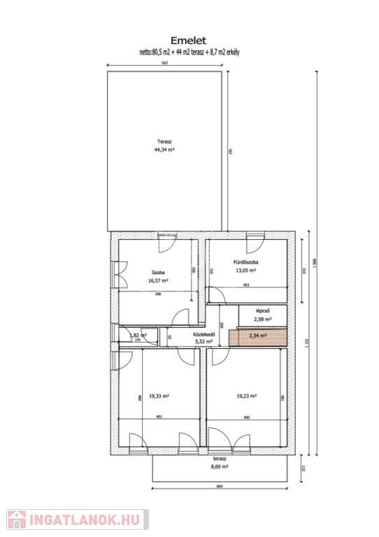
- Itt két tágas szoba kapott helyet, az egyikhez 9 m²-es, a másikhoz pedig egy impozáns, 44 m²-es panorámás terasz tartozik.
- Ezen a szinten található még egy tágas fürdőszoba, külön mosdó és közlekedő, ahonnan lépcső vezet a tetőtérbe.

- A tetőtér jelenleg konditeremként funkcionál, kétoldalt további tárolóhelyiségekkel.
- Ez a ház valódi élettér, amely akár több generáció számára is kényelmesen használható.
- A különválasztható szintek, a tágas belső terek és a hatalmas teraszok biztosítják a kényelmet és a privát szférát mindenkinek.

Amennyiben a veszprémi GDN Ingatlaniroda által kínált gyönyörű környezetben elhelyezkedő sorház vagy bármely, a kínálatunkban található ingatlan felkeltette érdeklődését, forduljon hozzám bizalommal!

Ingatlanirodánk díjmentes, banksemleges hitelügyintézéssel, illetve ügyvédi tanácsadással is áll Ügyfeleink rendelkezésére!

Családi ház részletei

Ár: 149 000 000 Ft
Méret: 240 négyzetméter
Azonosító: 11575234
Irodai azonosító: 388993
Cím: Veszprémvölgy Kolostorok és kertek
Telek: 450 négyzetméter
Ingatlan állapota:
Jelleg: sorház
Építőanyag: Tégla
Fűtés jellege: Cirkó
Fűtés módja: Gáz
Komfort fokozat: Összkomfort
Kor: 21-50 éves
Szintek száma: 2 szint
Egész szobák: 7

Egyéb jellemzők

  • Csatorna
  • Garázs
  • Pince
  • Terasz

Térkép

Hasonló családi ház hirdetések

Eladó családi ház

Veszprém

Veszprémben, az Újtelepen, csendes, kertvárosias környezetben, de mégis ...

Eladó családi ház

Veszprém

RITKA LEHETŐSÉG VESZPRÉMBEN!! ELADÓ 2 GENERÁCIÓS CSALÁDI HÁZ AZ EGYETEMVÁROSBAN, ...

Eladó családi ház

Veszprém

Veszprém történelmi belvárosában, zöldövezeti részen, örök várpanorámával, ...

Eladó családi ház

Veszprém

Veszprémben eladó egy 2016-ban épült, nettó 136 m²-es, tégla szerkezetű, ...

Hasonló családi ház hirdetések

Eladó családi ház

Veszprém

Veszprémben, az Újtelepen, csendes, kertvárosias környezetben, de mégis ...

Eladó családi ház

Veszprém

RITKA LEHETŐSÉG VESZPRÉMBEN!! ELADÓ 2 GENERÁCIÓS CSALÁDI HÁZ AZ EGYETEMVÁROSBAN, ...

Eladó családi ház

Veszprém

Veszprém történelmi belvárosában, zöldövezeti részen, örök várpanorámával, ...

Eladó családi ház

Veszprém

Veszprémben eladó egy 2016-ban épült, nettó 136 m²-es, tégla szerkezetű, ...