Eladó családi ház Zalaegerszeg 129 900 000 Ft

Leírás

Mintha az erdő legmélyén, a természet közepén jártam volna.
Ez volt az első benyomásom, amikor megpillantottam ennek a családi háznak a környezetét.
Vadászház, panzió a belvárostól mindössze 5 percre? Kérdeztem.
Nem, nem. Egy otthonos családi ház, ahol ezek az érzések öntik el a szemlélőt.
A telek, ahová a kíváncsi szemek nem láthatnak be, 4819 m2 nagyságú és a Becsali hegyen található. Igény esetén akár meg is osztható.
Felső részére épült a három szintes ház, a középső részen gondozott, hangulatos kert, halastó, az alsó részen pedig saját kis erdő.
A Porotherm 38-as falazattal, dupla hőszigetelő vakolattal épült ingatlan 2009-ben lett befejezve, az akkori kornak megfelelő, igényes anyagokkal.
2017-ben felújítások történtek (új kazán, festés, új tulajdonos igényeinek megvalósítása).
A tető héjazata Bramac hódfarkú cseréppel fedett.
Nyílászárói fa szerkezetűek, hőszigetelt üvegezéssel és redőnyökkel felszerelve.
Fűtése gázcirkó kazánnal történik radiátoros és padló fűtéses hőleadással, kiegészítésként a nappaliban kandalló és több helyiségben klímaberendezések találhatók.
A pinceszint nettó 145,7 m2-es, kert kapcsolatos.
Itt található egy biliárd szalon, szauna, bor tároló, kondi terem, vizes blokk, mosókonyha és egyéb tárolók.
Ezen helyiségek akár egy kisebb vállalkozásnak is helyet adhatnak.
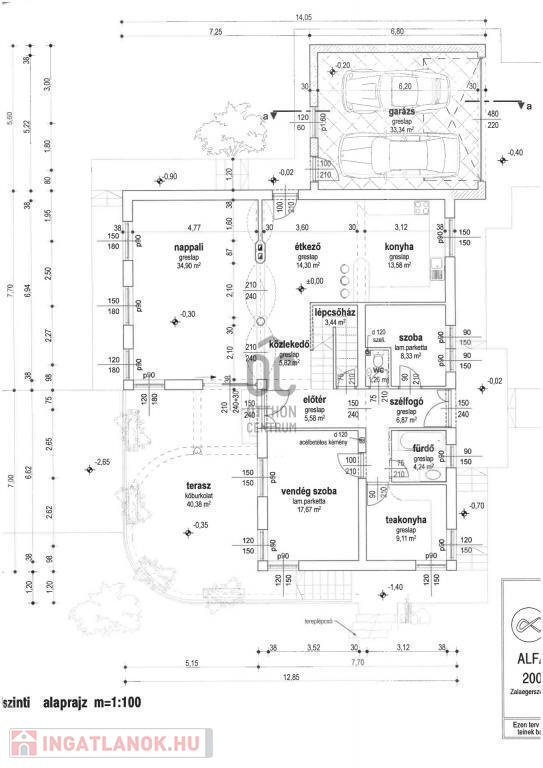
A földszinti élettér nettó 125,1 m2-es, ehhez kapcsolódik egy gyönyörű kilátást nyújtó 40,38 m2-es terasz és egy dupla garázs 33,34 m2-en.
Ezen a szinten nappali, konyha, étkező, kettő szoba, fürdő, külön WC és terasz lett megépítve.
A tetőtéri szint nettó 92,52 m2-es, bruttó 120,15 m2, ezen kívül egy 6,25 m2-es erkély került kialakításra, 4 négy szobával, kettő fürdővel és kettő gardrób szobával.
Így az összes nettó fűtött hasznos alapterület 363,32 m2-es, garázzsal, terasszal, erkéllyel 402,91 m2, bruttó összes pedig 470,92 m2.
Közművek közül a csatorna nincs kiépítve az utcában, víz, villany, gáz természetesen bekötve.
A telek besorolása zártkerti, művelési ág alól ki van vonva, viszont az épület családi házként van feltüntetve, így bármilyen hiteltermék felvehető rá.

Irodánk teljes körű szolgáltatást nyújt kereső ügyfeleinek.
Szakszerű tanácsadással, ingyenes CSOK és hitelügyintézéssel, energetikai tanúsítvány elkészítésével és kedvező díjszabású ügyvéddel nyújtunk segítséget!

Családi ház részletei

Ár: 129 900 000 Ft
Méret: 402 négyzetméter
Azonosító: 11596191
Irodai azonosító: H511219-5104296
Telek: 4819 négyzetméter
Ingatlan állapota:
Jelleg: családi ház
Építőanyag: Tégla
Fűtés jellege: Cirkó
Fűtés módja: Gáz
Kor: 11-20 éves
Szintek száma: Földszintes
Egész szobák: 7

Térkép

Hasonló családi ház hirdetések

Eladó családi ház

Zalaegerszeg

Mintha az erdő legmélyén, a természet közepén jártam volna. Ez volt ...

Eladó családi ház

Zalaegerszeg

Zalaegerszeg egyik legszebb részén vált eladóvá ez a 2015-ben épült ...

Eladó családi ház

Zalaegerszeg

Eladó PRÉMIUM CSALÁDI HÁZ ÚJ KIVITELEZŐTŐL! ❗ Zalaegerszeg, csácsi ...

Eladó családi ház

Zalaegerszeg

Zalaegerszeg belvárosában kínálom megvételre ezt a bruttó 300 nm-es, ...

Hasonló családi ház hirdetések

Eladó családi ház

Zalaegerszeg

Mintha az erdő legmélyén, a természet közepén jártam volna. Ez volt ...

Eladó családi ház

Zalaegerszeg

Zalaegerszeg egyik legszebb részén vált eladóvá ez a 2015-ben épült ...

Eladó családi ház

Zalaegerszeg

Eladó PRÉMIUM CSALÁDI HÁZ ÚJ KIVITELEZŐTŐL! ❗ Zalaegerszeg, csácsi ...

Eladó családi ház

Zalaegerszeg

Zalaegerszeg belvárosában kínálom megvételre ezt a bruttó 300 nm-es, ...