Eladó ipari ingatlan Győr 639 000 000 Ft

Leírás

A Győri Ipari Park, jól megközelíthető részén, 6 299 m2-es teleken elhelyezkedő, 2012-ben épült, 2845 m2-es (2637 m2-es fűthető gyártó/raktár csarnok, 208 m2-es iroda/szociális felület), gyártó/raktár csarnok eladó. (Az ingatlan 980 m2-es része már bérbeadott a fennmaradó 1865m2-es részre előrehaladott egyeztetések folynak.)
Ár: 639 000 000,-Ft+ÁFA
Érd.: 06-20/9-966-669

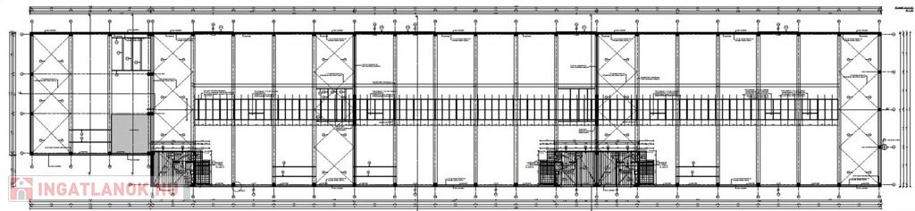
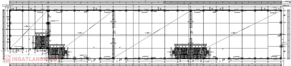
A 2012-ben épült épület négy egymással összefüggő részre tagolódik (286m2; 648m2; 780m2; 923m2). Mindegyik egységben iroda és szociális egység megtalálható. Így az ingatlan befektetési célú vásárlás esetén különböző méret igények kielégítésére rugalmasan alkalmas.
A tagolódása ellenére az épület egyben is, egy felhasználó igényeit is tökéletesen kielégíti, mivel a négy egység nagyméretű (4,75m x 4,5m) ipari szekcionált kapukkal egybe nyitható, amiken keresztül zavartalan a belső közlekedés.
Amennyiben nagyobb felületű iroda/szociális igény mutatkozik, ennek kielégítésére az épület 286m2-es fejépületében nyílik erre lehetőség. Jelenleg ez a terület is, mint az épület többi része műhely/raktár funkciót tölt be.
(A fotók közötti utolsó képen látható az eladásra kínált ingatlan közelében található 5.000 m2-es, 50%-ban beépíthető építési telek.)
INGATLAN ÖSSZEFOGLALÓ:
- Telekméret: 6.299 m2
- Épület összterület: 2.845 m2
- Gyártó/raktár csarnok: 2.636 m2
- Iroda és szociális részek: 208 m2
TECHNIKAI INFORMÁCIÓK:
- Padló: 20 cm vastag felület keményített acélhajbeton lemez
- Szerkezeti elemek: vasbeton oszlopok és gerendák
- Vasbeton lábazat
- Szendvicspanel falak 10 cm-es szigeteléssel
- Gipszkarton falak az irodákban, valamint a szociális helyiségekben
- Tető: szigetelt acél trapézlemez, bevilágító ablakokkal
- Hőszigetelt nyílászárók
- 4 db szintbeli dokkoló kapu (1 db 4,75 m x 3,75 m; 3db 4,75 m x 4,5 m)
RÉSZLETEK:
- Padló terhelhetősége: 5 tonna/m2
- Magasság
o 2.560 m2-es terület tiszta magassága: 6,5 m
o 286 m2-es terület tiszta magassága: 4 m (ebben a részben lehet igény szerint nagyobb iroda/szociális felületet kialakítani)
KÖZMŰ:
- Elektromos áram
- Víz (házi vízmű), vezetékes víz a telek előtt
- Saját szennyvíz kezelés (10m3-es zárt rendszer)
- Kiépített tűzi víz tározó
- Telekommunikáció
- Gáz az épületben nincs, de a telek előtt megtalálható
ELHELYEZKEDÉS:
- M1 autópálya: 6 km, (112-es és a 115-ös csatlakozás 6 km-re található)
- AUDI: 2 km
- Győr központ: 6 km
- Budapest: 116 km
- Bécs: 135 km
- Pozsony: 93 km

Az ingatlan a Győri Ipari Parkban, a város keleti oldalán, tömegközlekedéssel jól ellátott, súlykorlátozás nélkül megközelíthető részén található. Győr a hatodik legnagyobb magyar város közel 130.000 fős lakossággal. Az ipari park a térség ipari súlypontjaként több mint 200 hektáros területen ad otthont 100-nál is több cégnek. Az itt foglalkoztatottak száma meghaladja a 7.000 főt. Széles spektrumon helyezkedik el a jelen lévő gyártó cégek tevékenysége, melyekből az autóipar a kiemelkedő. a kategória legnagyobb és legfontosabb szereplője az AUDI.

Érd.: 06-20/9-966-669
Csörnyei Tamás Okleveles ingatlanszakértő / MSc in Real Estate INGATLAN 4 YOU Kft.

For sale production or store hall, with offices in the Industrial Park of Győr.
Size of the site: 6.299sqm
Size of the whole building: 2.845sqm
Production hall or warehouse: 2.636sqm (heatable; clear height: 8m)
Admistration and social area: 208sqm
Number of gates: 4 pcs,
Size of the gattes: 3 pcs: 4,75m x 4,5m; 1 pcs: 4,75m x 3,75m
Floor load bearing capacity: 5t/sqm
Price: 639.000.000HUF+VAT
Mobil: 00-36-20/9-966-669

Ipari ingatlan részletei

Ár: 639 000 000 Ft
Méret: 2 845 négyzetméter
Azonosító: 11441363
Irodai azonosító: 114887
Cím: Győr
Ingatlan állapota: Átlagos
Jelleg: egyéb

Hasonló ipari ingatlan hirdetések

Eladó ipari ingatlan

Győr

Győr peremkerületén, M1-es autópálya felhajtótól kb. 1 perces autótávolságra, ...

Hasonló ipari ingatlan hirdetések

Eladó ipari ingatlan

Győr

Győr peremkerületén, M1-es autópálya felhajtótól kb. 1 perces autótávolságra, ...