Eladó lakás Ajka 90 944 000 Ft

Leírás

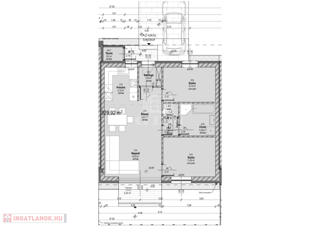
Új építésű lakások saját telekkel!

Ingatlanirodánk eladásra kínálja ezt az ÚJ ÉPÍTÉSŰ lakást Ajka-Bakonygyepesen!

- Az ingatlan egy 5 lakásos társasházban található.
- Az ingatlan 104 nm.
- A ház körbekerített, zárt telken helyezkedik el, ahol a lakásokhoz felszíni PARKOLÓHELY illetve saját TELEK is tartozik.

Műszaki adatok:
- A társasház földszinti teherhordó és térelhatároló falszerkezetei 30 cm vastagsággal, LEIER N+F típusú falazóblokkból készülnek, míg a válaszfalak 10 cm vastagsággal szintén LEIER válaszfallapokból.
- Födémszerkezet 20 cm vastag monolit vasbeton szerkezet XPS kiegészítő hőszigeteléssel.
- Tető kialakítása lapostető.
- Homlokzati nyílászárók Spectus 70 típusú belül fehér, kívül antracit színű műanyagszerkezetek 2 rétegű hőszigetelő üvegezéssel, redőnnyel ellátva.
- A ház homlokzati szigetelése 15 cm vastag dryvit EPS 80 hőszigetelő rendszerrel készül.
- A társasház fűtése padlófűtéses kialakítású hőszivattyús rendszer.
- Az ingatlan burkolatok, szaniterek, belső ajtók, konyhabútor nélkül kerül átadásra!

Kivitelezés várható befejezése: 2025. III. negyedév

Amennyiben a veszprémi GDN Ingatlaniroda által kínált ÚJ építésű projekt, vagy bármely a kínálatunkban található ingatlan felkeltette érdeklődését forduljon hozzám bizalommal!

Ingatlanirodánk díjmentes, banksemleges hitelügyintézéssel, illetve ügyvédi tanácsadással is áll Ügyfeleink rendelkezésére!

Lakás részletei

Ár: 90 944 000 Ft
Méret: 104 négyzetméter
Azonosító: 11559777
Irodai azonosító: 386480
Cím: Aporfi M.
Emelet: Földszint
Építőanyag: Tégla
Fűtés jellege: Hőszivattyú
Ingatlan állapota: Kitűnő
Komfort fokozat: Összkomfort
Építési év: Új építésű
Tulajdonviszony: Saját
Kilátás: udvari
Egész szobák: 3
Fél szobák: 2

Egyéb jellemzők

  • Erkély
  • Garázs
  • Lift
  • Pince
  • Tároló

Térkép

Hasonló lakás hirdetések

Eladó lakás

Ajka

Új építésű lakások saját telekkel! Ingatlanirodánk eladásra kínálja ...

Eladó lakás

Ajka

Új építésű lakások saját telekkel! Ingatlanirodánk eladásra kínálja ...

Eladó lakás

Ajka

ELADÓ MODERN STÍLUSÚ, ÚJ ÉPÍTÉSŰ EMELETES LAKÁS - AJKA-BAKONYGYEPES ...

Eladó lakás

Ajka

ELADÓ MODERN STÍLUSÚ, ÚJ ÉPÍTÉSŰ EMELETES LAKÁS - AJKA-BAKONYGYEPES ...

Hasonló lakás hirdetések

Eladó lakás

Ajka

Új építésű lakások saját telekkel! Ingatlanirodánk eladásra kínálja ...

Eladó lakás

Ajka

Új építésű lakások saját telekkel! Ingatlanirodánk eladásra kínálja ...

Eladó lakás

Ajka

ELADÓ MODERN STÍLUSÚ, ÚJ ÉPÍTÉSŰ EMELETES LAKÁS - AJKA-BAKONYGYEPES ...

Eladó lakás

Ajka

ELADÓ MODERN STÍLUSÚ, ÚJ ÉPÍTÉSŰ EMELETES LAKÁS - AJKA-BAKONYGYEPES ...