BICSKEI BEACH ÉLETÉRZÉS – MEDENCE, JAKUZZI, SZAUNA ÉS HŰSÍTŐ NÁDFEDELES SZALETLI EGY HELYEN? IGEN!
Ha szeretné, hogy a nyári napokat ne csak elviselje, hanem MINDEN PILLANATÁT ÉLVEZZE – saját jakuzziból, pálmafák árnyékából, egy vert nádtetős szaletli alatt borozgatva –, akkor ez az egyetlen, KÜLÖNLEGES HANGULATÚ BICSKEI OTTHON Önre vár.
 
ELHELYEZKEDÉS – Bicske, déli, csendes kertvárosi részen
Egy 1129 m²-es, gondosan megtervezett TELKEN található ez a 240 M² HASZNOS ALAPTERÜLETŰ, kétszintes, többfunkciós, egyedileg épített és korszerűsített családi ház. A lokáció tökéletes: elég közel a város szívéhez, de mégis nyugodt, zöldövezeti környezetben.
 
ÉPÜLET, KIALAKÍTÁS ÉS MŰSZAKI TARTALOM
Az ingatlan több ütemben épült: az eredeti házrészhez 2010-BEN EGY ÚJ SZÁRNY KERÜLT HOZZÁÉPÍTÉSRE, miközben a teljes szerkezet és a gépészet felújításon esett át.
•	Falazat: 30 cm tégla + 10 cm dryvit hőszigetelés
•	Födém: vasbeton+fa gerenda
•	Tető: zsindely
•	Nyílászárók: műanagy - redőnnyel, szúnyoghálóval
•	Energia: 6 kW-os napelemes rendszer akupakkal
•	Gépészet: kombi gázkazán + Bosh villanykazán + villanybojler a (melegvízhez)
•	Fűtés: radiátoros, kandallós, központi rendszer, klímás hűtés/fűtés (1 kültéri + 3 beltéri egység)
•	Közmű: összközműves, -  3x25A hálózat
 
TÉRÉLMÉNY, BELSŐ KIALAKÍTÁS – AHOL A FUNKCIÓ ÉS AZ ÉRZELEM TALÁLKOZIK
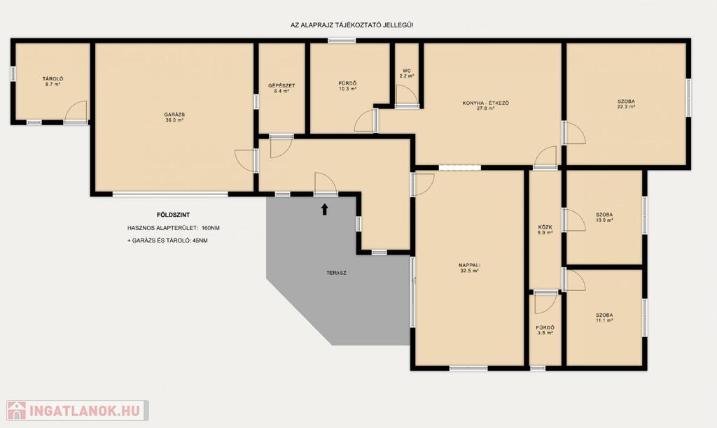
Földszint (160 m²):
Nappali (32 m²)
A nappali nemcsak méreteiben, de kialakításában is központi szerepet kap: dupla belmagasság, nyitott galéria, boltíves terek – mindez egy IGAZI OTTHONOSSÁGOT SUGÁRZÓ, ELEGÁNS KANDALLÓVAL kiegészítve. IDE CSATLAKOZIK A 35 M²-ES FEDETT TERASZ, amely szinte a nappali meghosszabbításaként működik.
Konyha + étkező (28 m²)
Letisztult, világos, kifejezetten nagy családokra vagy vendégfogadásra optimalizált tér. Modern gépesítés, hatalmas munkafelület, rengeteg tárolóhely. Itt az étkezés nem feladat – élmény.
Szoba 1 (23 m²)
Tágas, világos hálószoba. A szülői hálónak tökéletes választás – akár gardróbbal, akár pihenőzónával.
Szoba 2 és 3 (10–10 m²)
Gyerekszobák, dolgozószobák vagy vendégszobák kialakítására alkalmas, külön bejárattal, ideális méretekkel. Kialakításuk praktikus és könnyen variálható.
Fürdőszoba 1 (4 m²)
Modern burkolatok, pezsgőfürdős kád, kiváló fényviszonyok, funkcionális kialakítás.
Fürdőszoba 2 (11 m²)
Igazi wellness-részleg: hidromasszázs + gőzfunkciós zuhanykabin, prémium kialakítás..
Kazánház (6,5 m²)
Átlátható, jól szervezett gépészeti központ, ideális szerelési és karbantartási hozzáféréssel.
 
Emelet (35 m²): Galéria és egy új dimenzió
A nappali fölött egy NYITOTT GALÉRIA és egy különálló szoba található:
•	Szoba (12 m²): tökéletes vendég- vagy dolgozószoba
•	Galéria (7 m²): jelenleg nyitott, de akár két szobává is leválasztható
•	Közlekedő + előtér (5 m²): külön leválasztható egységként működik
 
 GARÁZS, TÁROLÓK ÉS PINCE 
•	Garázs (36,5 m²): 2 beállásos, automata kapuval, a lakásból közvetlen bejárattal
•	Tároló (9 m²): külön WC és kézmosó, vendégváró vagy kertészkedési eseményekhez is ideális
•	Pince (45 m²): automata kapu, rámpás bejárás, alkalmas borospincének, műhelynek vagy extrém sporteszközök tárolására
 
KERT, MINT EGY MINI NYARALÓ: SAJÁT BEACH ÉRZÉS
A kert 2025-ben teljesen megújult: nemcsak szép, hanem funkcionális és élményszerű is.
•	110 cm mély, eltolható tetejű, fűthető medence – tökéletes gyerekeknek, felnőtteknek
•	6–8 fős jakuzzi – teljes feltöltődés minden évszakban
•	Szauna – egészséges életmód támogatása
•	30 m²-es nádfedeles szaletli – világítással, árammal, vízzel és tűzhellyel – akár nyári konyhává is alakítható
•	Kerti zuhany, hátsó raktár – praktikum és stílus
•	Parkosított kert pálmafákkal, citromfákkal – igazi mediterrán hangulat
•	Mozgásérzékelős világítás, kamerarendszer előkészítés
 
KÖZVETLEN KÖRNYEZET – MINDEN KÉNYELMI SZOLGÁLTATÁS KÖZEL
•	Buszmegálló: 800 m
•	Iskola, óvoda, posta, Spar: 1,3 km
•	Penny, Aldi, Tesco: 5 km
•	Sportpálya: 100 m
•	Fiatalos, rendezett, csendes szomszédság
 
PÉNZÜGYI INFORMÁCIÓK ÉS LEHETŐSÉGEK
•	Irányár: 139.000.000 Ft
•	Tehermentes
•	60 napon belül birtokba vehető
•	Rezsi: kb. 50.000 Ft/hó
FINANSZÍROZÁSI TÁMOGATÁS:
•	Ingyenes hitelszűrés (18 bank ajánlatából)
•	CSOK, kamattámogatott hitelek
•	Teljes körű ügyintézés, ügyvédi háttérrel
 
KAPCSOLAT ÉS MEGTEKINTÉS:
Farkas Gergely
farkas.gergely@dot-ing.hu
+36 30 322 1015
 Megtekintés kizárólag előzetes egyeztetéssel
NE CSAK HÁZAT VÁSÁROLJON – TEREMTSEN ÉLMÉNYT, ÉLETTERET ÉS JÖVŐT!
Ez az ingatlan több, mint egy otthon. Életminőséget, kényelmet és élményeket kínál – mindezt egy stabil, értékálló beruházásként. Ha még nem találta meg álmai otthonát, most itt az alkalom, hogy ne kompromisszumot kössön, hanem szerelembe essen.                                                            
| Ár: | 139 000 000 Ft | 
| Méret: | 240 négyzetméter | 
| Azonosító: | 11556347 | 
| Irodai azonosító: | 9340 | 
| Cím: | Bicske | 
| Emelet: | 1. emelet | 
| Építőanyag: | Kérdezzen rá a hirdetőtől » | 
| Fűtés jellege: | Házközponti | 
| Ingatlan állapota: | Felújított | 
| Egész szobák: | 4 |