Eladó lakás Budapest III. ker 137 000 000 Ft

Leírás

Modern elegancia Óbuda szívében – tágas, teraszos lakás eladó


Alapterület: 75,87 m² + terasz: 19,5 m² → összesen: 85,62 m²

Ár: 137 M Ft
A teremgarázs ára 8 M Ft, melyett kötelező megvenni.

Oázis Óbuda szívében – napsütötte teraszok, elegáns otthonok, kertvárosi hangulat

A Kisbojtár projekt a III. kerületben, a Bojtár utca és a Kisbojtár utca találkozásánál helyezkedik el, csendes, barátságos környezetben. A Bécsi és a Szentendrei utak közelsége révén a közlekedés kiváló, miközben a környék megőrzi meghitt, családias hangulatát

Bölcsőde, óvoda, iskolák, valamint több szuper- és hipermarket néhány perces távolságra találhatók, így a mindennapi élet kényelmesen megszervezhető.

A projektben összesen két épületben, mindössze nyolc lakás került kialakításra, így a lakóközösség kis létszámú, exkluzív. A földszinti lakások kertkapcsolatosak, az emeleti otthonokat tágas teraszok, a legfelső szinteket pedig egyedi penthouse jelleg jellemzi. A pinceszinten kényelmes teremgarázs-beállók és közös gépészeti helyiségek találhatók.

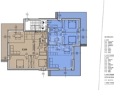
Az eladó lakás a 1. emeleten helyezkedik el, kiváló beosztású, világos terekkel és 19,5 m²-es terasszal, amely tökéletes helyszíne lehet a reggeli kávézásnak vagy esti pihenésnek.

Műszaki tartalom – a modern komfort szolgálatában
Energetikai besorolás: A+

Fűtés: Daikin levegő–levegő hőszivattyús rendszer padlófűtéssel

Hűtés: szobánként 1–1 fancoil egység

Nyílászárók: 5 légkamrás, 3 rétegű üvegezés

Redőny: elektromos alumínium redőnyhöz kiállások előkészítve

Homlokzat: 15 cm kőzetgyapot szigetelés

Burkolatok: igényes, nagylapos fürdőszobai burkolatok

A lakások minden részletükben a mai kor elvárásainak megfelelő, energiahatékony és kényelmes életteret biztosítanak.

Miért különleges ez az ingatlan?

✅ Beköltözhető, per- és tehermentes

✅ Kiváló infrastruktúra, mégis csendes környezet

✅ Kis lakásszámú, exkluzív társasház

✅ Modern technológia, alacsony fenntartási költségek

✅ Kiváló lakóérték és remek befektetés

Lakás részletei

Ár: 137 000 000 Ft
Méret: 75 négyzetméter
Azonosító: 11570383
Irodai azonosító: 388135
Cím: Kisbojtár utca
Emelet: 1. emelet
Építőanyag: Tégla
Fűtés jellege: Hőszivattyú
Ingatlan állapota: Kitűnő
Komfort fokozat: Összkomfort
Építési év: Új építésű
Tulajdonviszony: Saját
Kilátás: udvari
Egész szobák: 3

Egyéb jellemzők

  • Erkély
  • Garázs
  • Lift
  • Pince
  • Tároló

Térkép

Hasonló lakás hirdetések

Eladó lakás

Budapest III. ker

III.kerület kedvelt részén a TESTVÉRHEGYEN, energiahatékony, kiváló ...

Eladó lakás

Budapest III. ker

Oázis Óbuda szívében – Napsütötte teraszok, elegáns otthonok, kertvárosi. Alapterület: ...

Eladó lakás

Budapest III. ker

Budapest 3. kerület Csillaghegyen! Örökpanorámás! Újépítésű! 4 lakásos ...

Eladó lakás

Budapest III. ker

ELADÓ A BÉCSI ÚTON, A III. KERÜLETBE PENTHOUSE LAKÁS!!! 80 NM LAKRÉSZ ...

Hasonló lakás hirdetések

Eladó lakás

Budapest III. ker

III.kerület kedvelt részén a TESTVÉRHEGYEN, energiahatékony, kiváló ...

Eladó lakás

Budapest III. ker

Oázis Óbuda szívében – Napsütötte teraszok, elegáns otthonok, kertvárosi. Alapterület: ...

Eladó lakás

Budapest III. ker

Budapest 3. kerület Csillaghegyen! Örökpanorámás! Újépítésű! 4 lakásos ...

Eladó lakás

Budapest III. ker

ELADÓ A BÉCSI ÚTON, A III. KERÜLETBE PENTHOUSE LAKÁS!!! 80 NM LAKRÉSZ ...