Eladó lakás Budapest III. ker 147 000 000 Ft

Leírás

Oázis Óbuda szívében – Napsütötte teraszok, elegáns otthonok, kertvárosi.

Alapterület: 75,87 m²

Teraszok összesen: 38,66 m²

Összesen: 94,84 m²

Ár: 147 M Ft
A teremgarázs ára 8 M Ft, melyet kötelező megvenni.

Energetikai besorolás: A+

A beruházásról:

A Kisbojtár Projekt a III. kerület egyik legkedveltebb részén, a Bojtár utca és a Kisbojtár utca találkozásánál helyezkedik el. A Bécsi és Szentendrei utak között fekvő, barátságos lakóövezet csendes kertvárosi hangulatot és kiváló közlekedési lehetőségeket kínál

Bölcsőde, óvoda, iskolák, valamint több szuper- és hipermarket néhány perc alatt elérhetők — mindezt egy meghitt, nyugodt környezetben, amely ideális választás az igényes otthonkeresők számára.


Az épület és a lakások

A projekt két épületében összesen 8 lakás épült:

63 m²-től a 83 m²-es penthouse lakásig

Földszinten kertkapcsolatos lakások

Emeleteken tágas teraszok

Legfelső szinteken különleges kialakítású otthonok

A pinceszinten kényelmes teremgarázsbeállók és közös gépészeti helyiségek találhatók. Az épületeket világos terek, átgondolt alaprajzok, esztétikus és praktikus kialakítás jellemzi.


Műszaki tartalom
A+ energetikai besorolás

Daikin levegő–levegő hőszivattyús fűtés, padlófűtéssel

Szobánként 1-1 hűtő-fűtő fancoil

5 légkamrás, 3 rétegű nyílászárók

Elektromos alumínium redőny előkészítés

Nagylapos fürdőszobai burkolatok

15 cm kőzetgyapot homlokzati szigetelés

A korszerű gépészet és szigetelés egész évben kellemes belső klímát biztosít alacsony fenntartási költségek mellett.


A kínált lakás:

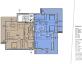
Ez a napfényes, első emeleti, 75,87 m²-es lakás két nagy méretű terasszal (összesen 38,66 m²) rendelkezik, így ideális választás azoknak, akik szeretik a tágas, világos tereket és a szabadtéri életteret.

A lakás azonnal beköltözhető, per- és tehermentes.

Ár: 147 M Ft

Garázs külön megvásárolható: 8 M Ft

Lakás részletei

Ár: 147 000 000 Ft
Méret: 75 négyzetméter
Azonosító: 11570384
Irodai azonosító: 388080
Cím: Kisbojtár utca
Emelet: 1. emelet
Építőanyag: Tégla
Fűtés jellege: Hőszivattyú
Ingatlan állapota: Kitűnő
Komfort fokozat: Összkomfort
Építési év: Új építésű
Tulajdonviszony: Saját
Kilátás: udvari
Egész szobák: 3

Egyéb jellemzők

  • Erkély
  • Garázs
  • Lift
  • Pince
  • Tároló

Térkép

Hasonló lakás hirdetések

Eladó lakás

Budapest III. ker

Minőségi otthon eladó a Római-part egyik legszebb lakóparkjában. Budapest ...

Eladó lakás

Budapest III. ker

Oázis Óbuda szívében – Kisbojtár Residence Napsütötte teraszok | ...

Eladó lakás

Budapest III. ker

***III. kerület, FOREST HILL lakóparkban egy 77 nm-es, 2 hálószobás, földszinti, ...

Eladó lakás

Budapest III. ker

ELADÓ A BÉCSI ÚTON, A III. KERÜLETBE PENTHOUSE LAKÁS!!! 80 NM LAKRÉSZ ...

Hasonló lakás hirdetések

Eladó lakás

Budapest III. ker

Minőségi otthon eladó a Római-part egyik legszebb lakóparkjában. Budapest ...

Eladó lakás

Budapest III. ker

Oázis Óbuda szívében – Kisbojtár Residence Napsütötte teraszok | ...

Eladó lakás

Budapest III. ker

***III. kerület, FOREST HILL lakóparkban egy 77 nm-es, 2 hálószobás, földszinti, ...

Eladó lakás

Budapest III. ker

ELADÓ A BÉCSI ÚTON, A III. KERÜLETBE PENTHOUSE LAKÁS!!! 80 NM LAKRÉSZ ...