Eladó lakás Budapest XIII. ker 53 990 000 Ft

Leírás

Eladó felújítandó téglaépítésű lakás Budapest 13. kerületében a Zsilip utcában.

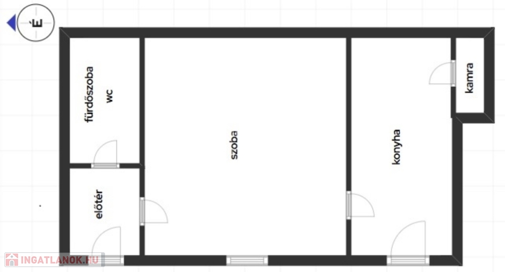
A lakás a társasház 2. emeletén található, 39 m² alapterülettel. Megközelítése függő folyosóról történik, két külön bejáraton keresztül. Az egyik bejáraton egy előszobába érkezünk, ahonnan külön nyílik a szoba, valamint a fürdőszoba WC- vel. A konyha megközelíthető a szobán keresztül, illetve a másik bejárati ajtón át is. A konyhából egy praktikus kis kamra nyílik.

A fűtést gázkonvektor biztosítja, a melegvíz ellátásról a gázkazán gondoskodik.

A lakásból a kilátás parkosított, csendes belső udvarra néző, ahol Hatalmas fa, kiülésre alkalmas padok és gondozott kert várja a lakókat.

Ideális választás lehet befektetőknek, vagy azok számára akik csendes , zöldkertes, urbanisztikus környezetben szeretnének élni. Az infrastruktúra és a közlekedés kiváló az M3 metró néhány perc alatt elérhető.
ID:391989

Lakás részletei

Ár: 53 990 000 Ft
Méret: 39 négyzetméter
Azonosító: 11598210
Irodai azonosító: 391989
Cím: Zsilip utca
Emelet: 2. emelet
Építőanyag: Tégla
Fűtés jellege: Konvektoros
Ingatlan állapota: Felújítandó
Komfort fokozat: Összkomfort
Építési év: 50 évesnél régebbi
Tulajdonviszony: Saját
Kilátás: udvari
Egész szobák: 1

Egyéb jellemzők

  • Erkély
  • Garázs
  • Lift
  • Pince
  • Tároló

Térkép

Hasonló lakás hirdetések

Eladó lakás

Budapest XIII. ker

Eladó a XIII. kerület, Angyalföldi részen tégla építésű társasház ...

Eladó lakás

Budapest XIII. ker

BEFEKTETÉSRE TÖKÉLETES LAKÁS !! A XIII. KERÜLET SZÍVÉBEN! Eladó a XIII. ...

Eladó lakás

Budapest XIII. ker

Budapest XIII. kerületében, a Visegrádi utcában, eladó egy földszinti ...

Eladó lakás

Budapest XIII. ker

BUDAEST XIII. kerület, Angyalföld rohamosan fejlődő városrészében eladó ...

Hasonló lakás hirdetések

Eladó lakás

Budapest XIII. ker

Eladó a XIII. kerület, Angyalföldi részen tégla építésű társasház ...

Eladó lakás

Budapest XIII. ker

BEFEKTETÉSRE TÖKÉLETES LAKÁS !! A XIII. KERÜLET SZÍVÉBEN! Eladó a XIII. ...

Eladó lakás

Budapest XIII. ker

Budapest XIII. kerületében, a Visegrádi utcában, eladó egy földszinti ...

Eladó lakás

Budapest XIII. ker

BUDAEST XIII. kerület, Angyalföld rohamosan fejlődő városrészében eladó ...