Eladó lakás Győr 68 710 950 Ft

Leírás

Ideális választás családok számára: új építésű, erkélyes lakás kertvárosi környezetben, Győr belvárosától mindössze 10 percre
Szitásdomb II.lakóparkban épülő, A+ energetikájú, prémium minőségű lakás kiváló kivitelezőtől

Győr belvárosától 10 percre, M1 autópálya elkerülő közelében, AUDI-hoz közel a Szitásdomb II. lakóparkban, kertvárosi környezetben épülő 25 lakásos társasházban kínálok magas műszaki tartalommal épülő, prémium minőségű lakásokat.
Nagy múltú, megbízható kivitelező cég.

A terület közigazgatásilag Vámosszabadihoz tartozik.

A társasház egy 3228 m2-es hatalmas telekre épült.

Műszaki tartalom:
- 30 cm-es tégla főfalak, a lakások közöttb30 cm vastag hanggátló falazattal
- Válaszfalak 10 cm vtg. válaszfaltéglából készülnek.
- POROTHERM áthidaló gerendák
- 20 cm homlokzati hőszigetelés
- erkélylefedéseknél antracit színű korclemez fedés
- 3 rétegű üveggel ellátott INTERNORM műanyag nyílászárók kívül antracit színben
- FŰTÉS és meleg víz központi HŐSZIVATTYÚS rendszerrel, PADLÓFŰTÉS
- MENNYEZET HŰTÉS, így nincs szükség klímákra
- rejtett dobozos, elektromos alumíníum redőny-előkészítés
- exkluzív üvegkorlát az erkélyen

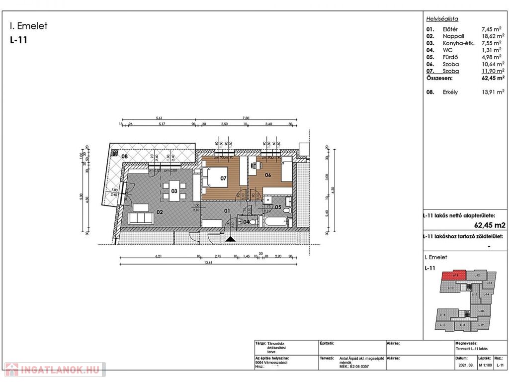
A 62,43 m2-es, 1. emeleti (L11), DNY fekvésű lakás HELYISÉGEI:
Előtér: 7,45 m2
Nappali: 18,62 m2
Konyha-étk: 7,55 m2
Szoba 10,64 m2
Szoba 11,9 m2
Fürdő: 4,98 m2
WC: 1,31 m2

A lakáshoz tartozik még 14,16 m2 ERKÉLY.

Az ár emelt szintű fűtéskész állapotra vonatkozik és tartalmazza az 5% Áfát, valamint a telekhányadot.
Kivitelező egyéni megállapodás alapján vállalja a kulcsrakész befejezést is.

Minden lakáshoz kötelező megvásárolni 2 db gépkocsibeállót, melynek darabja 1.000.000 Ft + (27% áfa). A lakáshoz tartozó parkolók száma: P24-P25

Várható átadás: 2026. tavasz

További költségek:
- ügyvédi díj: lakás vételárnak 0,8%-a
- egyszeri 150.000 Ft, az albetétesítéshez, földhivatali eljáráshoz

Amennyiben hitelre van szüksége ingyenes tanácsadással és teljes körű ügyintézéssel állunk rendelkezésére. Minden jelenleg hatályos támogatás igénybe vehető!

A társasház további elérhető lakásai:

L11 – 1. emelet, 62,45 m2 + 13,91 m2 erkély bruttó 68.710.950,-Ft
L21 – 2. emelet, 98,71 m2 + 34,33 m2 erkély bruttó 107.184.375 Ft
L22 – 2. emelet, 92,46 m2 + 22 m2 erkély bruttó 95.654.250 Ft

A lakóparkban kiépítésre kerül: játszótér, óvoda, bölcsőde, orvosi rendelő, szolgáltatók és számos üzlet is.
A csendes kisvárosi környezet, a város és az Ipari Park közelsége, könnyű megközelíthetősége miatt kitűnő választás akár saját lakásnak, akár befektetésnek is.

Nagy az érdeklődés, ne halogassa a megtekintést! Várom hívását!

Lakás részletei

Ár: 68 710 950 Ft
Méret: 62 négyzetméter
Azonosító: 11595919
Irodai azonosító: 124615
Cím: Győr
Emelet: 1. emelet
Építőanyag: Kérdezzen rá a hirdetőtől »
Fűtés jellege: Cirkó
Ingatlan állapota: Átlagos
Építési év: Új építésű
Egész szobák: 3

Egyéb jellemzők

  • Erkély

Hasonló lakás hirdetések

Eladó lakás

Győr

Győr-Moson-Sopron vármegye, Győr Szabadhegy eladó újépítésű ...

Eladó lakás

Győr

Győr-Nádorvárosban 25 lakásos liftes társasház első emeletén, 49 m² ...

Eladó lakás

Győr

Győr-Nádorvárosban 25 lakásos liftes társasház harmadik emeletén, 49 ...

Eladó lakás

Győr

Győr-Nádorvárosban a közkedvelt Galamb utcában, 8 lakásos társasház ...

Hasonló lakás hirdetések

Eladó lakás

Győr

Győr-Moson-Sopron vármegye, Győr Szabadhegy eladó újépítésű ...

Eladó lakás

Győr

Győr-Nádorvárosban 25 lakásos liftes társasház első emeletén, 49 m² ...

Eladó lakás

Győr

Győr-Nádorvárosban 25 lakásos liftes társasház harmadik emeletén, 49 ...

Eladó lakás

Győr

Győr-Nádorvárosban a közkedvelt Galamb utcában, 8 lakásos társasház ...