Eladó lakás Hódmezővásárhely 48 900 000 Ft

Leírás

KERTVÁROSI KÖRNYEZET!KULCSRAKÉSZ LAKÁSOK AZ ÖN KÉNYELMÉRE TERVEZVE!
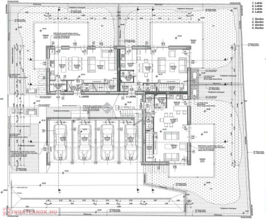
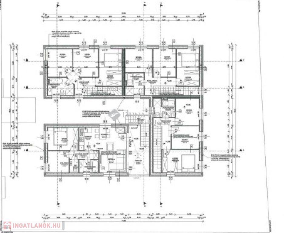
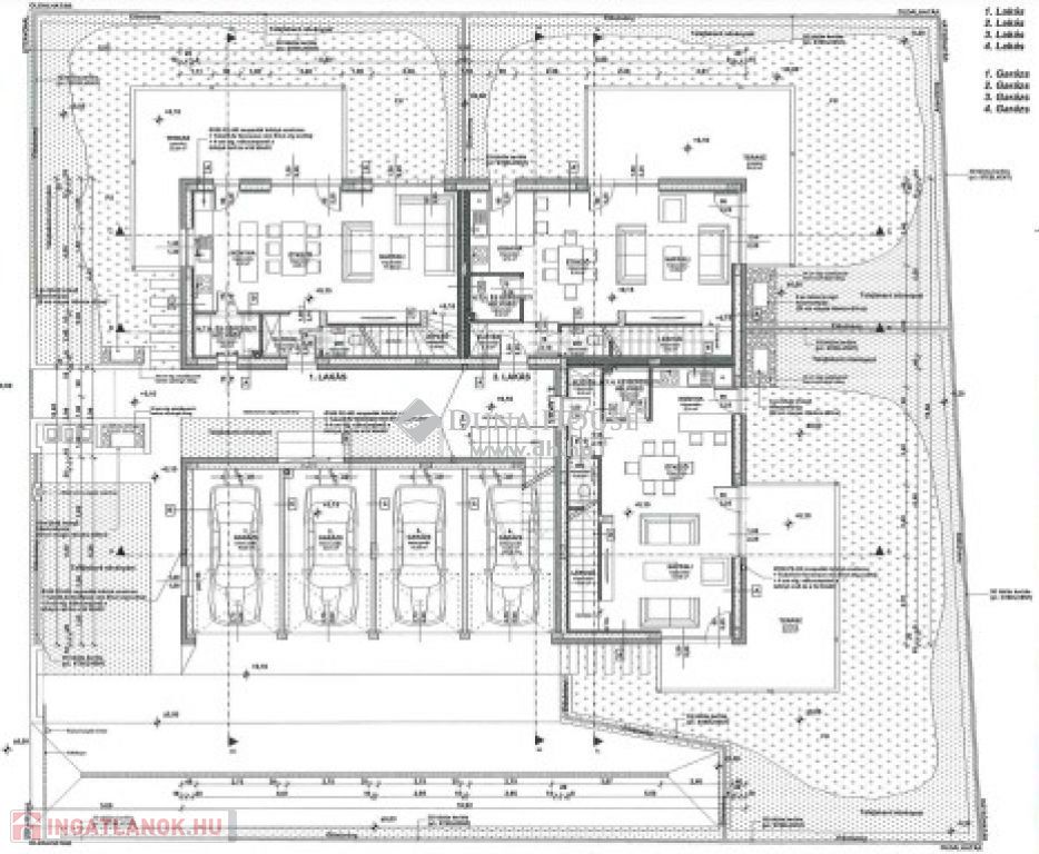
Hódmezővásárhely, Új-Kishomok kertvárosias részén Török Csongor terve alapján készült projekt épül:- 4 lakás (3 belső kétszintes )- 4 garázs kulcsrakész állapotban kerülnek átadásra.A modern lakások terasszal és saját kertrésszel rendelkeznek. Néhány műszaki jellemző:- 20 cm-es hőszigetelés- hármas üvegezésű nyílászárók, mely biztosítja a kiváló hőszigetelést- fő falazat és a födém földrengésbiztos vasbeton szerkezet- komplett fűtésrendszer (padlófűtés energiatakarékos hőszivattyúval, mely megújuló energiának minősül) MINDEN TOVÁBBI RÉSZLETTEL, VALAMINT MŰSZAKI ALAPRAJZZAL ÉS SZEMÉLYESMEGTEKINTÉSSEL KAPCSOLATBAN VÁROM HÍVÁSÁT!FORDULJON HOZZÁM BIZALOMMAL! KERTVÁROSI KÖRNYEZET!KULCSRAKÉSZ LAKÁSOK AZ ÖN KÉNYELMÉRE TERVEZVE!
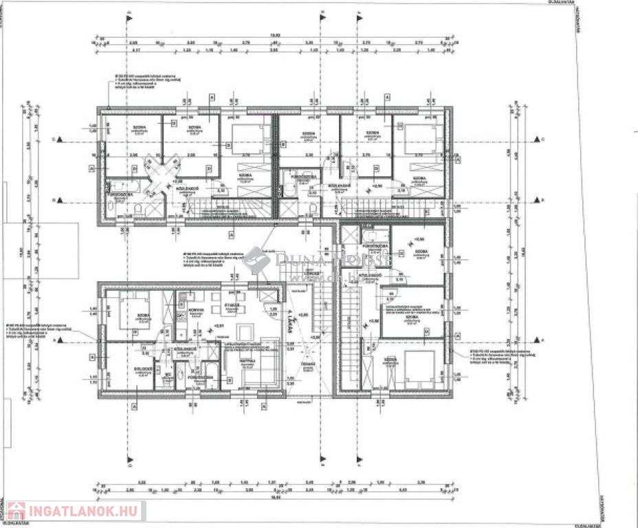
Hódmezővásárhely, Új-Kishomok kertvárosias részén Török Csongor terve alapján készült projekt épül.A modern lakások terasszal és saját kertrésszel rendelkeznek.A 4.számú, emeleti lakás 47,65 m2, melyben nappali, konyha – étkező, 2 külön bejáratú szoba, fürdő, wc és közlekedő került kialakításra.A környezettel való kapcsolatot a 12,82 m2-es terasz és a lakáshoz tartozó kizárólagos használatú 25,6 m2-es kert biztosítja.Össz. terület: 54,07 m2 ( 1/2 terasszal)- padlófűtés energiatakarékos hőszivattyúval- Aereco szellőző rendszer- beépített motoros alumínium redőny- hideg- és meleg burkolat , szaniterekGépkocsi számára a 14,54 m2-es garázs áll a rendelkezésre, melynek ára 9.900.000,- Ft.Néhány műszaki jellemző:- 20 cm-es hőszigetelés- hármas üvegezésű nyílászárók, mely biztosítja a kiváló hőszigetelést- fő falazat és a födém földrengésbiztos vasbeton szerkezet- komplett fűtésrendszer (padlófűtés energiatakarékos hőszivattyúval, mely megújuló energiának minősül

MINDEN TOVÁBBI RÉSZLETTEL, VALAMINT MŰSZAKI ALAPRAJZZAL ÉS SZEMÉLYESMEGTEKINTÉSSEL KAPCSOLATBAN VÁROM HÍVÁSÁT!FORDULJON HOZZÁM BIZALOMMAL!
Tisztelt ingatlantulajdonos !
Slivkáné Zsiros Éva vagyok, a Duna House Oroszlán utcai irodájában dolgozom. Ingatlanok eladásában, vételében, bérbeadásában, értékbecslésben, hitelnyújtásban, CSOK, babaváró támogatásban, energetikai tanúsítvány készítésében tudok segítséget nyújtani. Forduljon hozzám bizalommal.

Lakás részletei

Ár: 48 900 000 Ft
Méret: 54 négyzetméter
Azonosító: 11491327
Irodai azonosító: PR056352/LK/16705-4502393
Emelet: 1. emelet
Építőanyag: Tégla
Fűtés jellege: Hőszivattyú
Ingatlan állapota: Épülő
Komfort fokozat: Összkomfort
Építési év: Új építésű
Kilátás: udvari
Egész szobák: 3

Egyéb jellemzők

  • Garázs

Térkép

Hasonló lakás hirdetések

Eladó lakás

Hódmezővásárhely

Belvárosi, napfényes, azonnal költözhető tégla lakás Hódmezővásárhely ...

Eladó lakás

Hódmezővásárhely

Vásárhelyen az Eszperantó utcában kínálom eladásra ezt az 55 m2-es 2. ...

Eladó lakás

Hódmezővásárhely

Eladó egy 100 m²-es, azonnal költözhető tégla lakás Hódmezővásárhely ...

Eladó lakás

Hódmezővásárhely

Hódmezővásárhelyen a Kálvin tér szomszédságában eladó, vagy szegedi ...

Hasonló lakás hirdetések

Eladó lakás

Hódmezővásárhely

Belvárosi, napfényes, azonnal költözhető tégla lakás Hódmezővásárhely ...

Eladó lakás

Hódmezővásárhely

Vásárhelyen az Eszperantó utcában kínálom eladásra ezt az 55 m2-es 2. ...

Eladó lakás

Hódmezővásárhely

Eladó egy 100 m²-es, azonnal költözhető tégla lakás Hódmezővásárhely ...

Eladó lakás

Hódmezővásárhely

Hódmezővásárhelyen a Kálvin tér szomszédságában eladó, vagy szegedi ...