Eladó lakás Miskolc, Diósgyőr, 22 450 000 Ft

Leírás

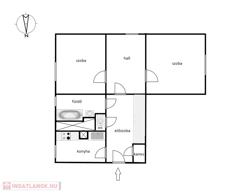
Miskolc, Diősgyőr elején a Kondor Béla utca 8. szám alatt, kitűnő elhelyezkedésű, 3 emeletes társasház 3. emeletén, K-Ny-i tájolású, összkomfortos, tehermentes, 55 nm-es, 3 szobás lakás, saját pincével együtt, kiváló lakóközösségben eladó.

A lakás könnyedén 2 szoba plusz nappalissá alakítható, valamint csendes környéken remek tömegközlekedési kapcsolatokkal és bevásárlási lehetőségekkel rendelkezik. Közelben Rendelő, iskola, óvoda, sportpálya stb.

Lakás felújításai:
- nyílászárók cseréje, burkolás, konyhaszekrény csere, 1 db konvektor csere, használati vízmelegítő cserélye

Helyiséglista:
- 3 szoba, előszoba, konyha, kamra, fürdőszoba WC-vel, pince

A lakás könnyedén 2 szoba plusz nappalissá alakítható, ahogy a mellékelt alaprajzon látható!

Ir. ár: 22,45 M

További információért kérem keressen telefonon

Lakás részletei

Ár: 22 450 000 Ft
Méret: 55 négyzetméter
Azonosító: 11578256
Irodai azonosító: 4828
Városrész: Diósgyőr
Emelet: 3. emelet
Építőanyag: Tégla
Fűtés jellege: Konvektoros
Ingatlan állapota: Átlagos
Komfort fokozat: Összkomfort
Elhelyezkedés: Társasház
Tulajdonviszony: Saját
Bútorozott: Nem bútorozott
Kilátás: utcai
Egész szobák: 3

Egyéb jellemzők

  • Erkély
  • Garázs
  • Klíma
  • Lift
  • Pince
  • Kertkapcsolat
  • Tároló
  • Kocsibeálló

Hasonló lakás hirdetések

Eladó lakás

Miskolc

Miskolcon a Győri Kapu végén az Újgyőri főtér előtt (Andrássy u.) ...

Eladó lakás

Miskolc

  Eladó újszerű téglalakás Miskolc, Kilián északi ...

Eladó lakás

Miskolc, Csabai-kapu

Miskolc Csabai kapu városrészében, a Park utca 17 sz. alatt, földszint+3 ...

Eladó lakás

Miskolc, Kilián

Miskolc Észak- Kilián városrész kedvelt részén, egy 3 emeletes téglaépítésű ...

Hasonló lakás hirdetések

Eladó lakás

Miskolc

Miskolcon a Győri Kapu végén az Újgyőri főtér előtt (Andrássy u.) ...

Eladó lakás

Miskolc

  Eladó újszerű téglalakás Miskolc, Kilián északi ...

Eladó lakás

Miskolc, Csabai-kapu

Miskolc Csabai kapu városrészében, a Park utca 17 sz. alatt, földszint+3 ...

Eladó lakás

Miskolc, Kilián

Miskolc Észak- Kilián városrész kedvelt részén, egy 3 emeletes téglaépítésű ...