Eladó lakás Pécs 77 000 000 Ft

Leírás


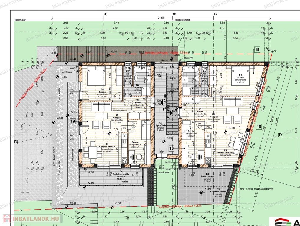
Pécs Belváros felett a Mecsekoldal központi részén, gyönyörű ősfás környezetben, csendes, nyugodt, természet közeli területen új építésű mindösszesen 4 db lakás eladó.

A családi házas környezetben megépülő lakások, a családok igényeinek megfelelően kedvező elrendezésűek, nappali és 2 szobásak, tágasak és napfényesek, erkélyesek vagy nagy teraszos  kialakításúak. A beruházó már több magas minőségű, professzionálisan megépített, kisebb lakásszámú épületet értékesített, ezért kifejezetten ajánlom minden korosztály és akár befektető részére is, mivel ez egy tökéletes választás lehet, azoknak akik modern, és elegáns építészetet kedvelik.

Az ideális hőmérsékletről házközponti, egyedileg mérhető és szabályozható levegő-víz hőszivattyús

fűtésrendszer fog gondoskodni padlófűtéssel, a tetőn napelem telepítéséhez szükséges előkészítés lesz kialakítva.  A társasház egészére az igényesség mellett a korszerű energetikai megoldások jellemzők, mely révén rendkívül alacsony a rezsiköltség.

Ami még ráteszi az i-re a pontot, hogy autóját itt biztonságban tudhatja, mivel fedett, zárt garázs is tartozik a lakáshoz, amelynek az ára 8.000.000 Ft

A szobák kényelmes és pihentető légkört teremtenek, míg a félszoba kiválóan használható gyerekszobának, irodának, vagy kreatív térnek.

Az amerikai konyhás kialakításnak köszönhetően sütés-főzés közben is egy légtérben lehetnek a párok, és megbeszélhetik vacsora előtt az aznapi történteket, és a kedvenc sorozatukat is nézhetik közösen még vacsorakészítés közben is.

Csodálatos élmény lesz az udvaron a pihenés, vagy egy családi sütögetés közben gyönyörködni a szomszédos erdő látványában és az ott élő madarak énekében.

A terasz lehet nyári estéink fénypontja, remek helyszínt biztosít a baráti összejöveteleknek.

Nekem rendkívül tetszik az ingatlanban az elhelyezkedése mellett az elrendezése, a csodás környezet, a Belváros közlei elérhetősége.

A nappali nemcsak tágas, de a természetes fény áradása és a modern kialakítás miatt is lenyűgöző.

Ha kedvező hitellehetőséget szeretne igénybe venni, az ingatlan vásárlásához, hívjon! Banki tanácsadónk rövid konzultációt követően 12 bank ajánlatai közül választja ki az Önnek legmegfelelőbbet.

Amennyiben fontos Önnek, hogy új otthona egy értékálló, megfelelő élettérrel rendelkező és exkluzív legyen, hívjon, nézze meg, ne várjon arra, hogy más csapjon le rá!

Lakás részletei

Ár: 77 000 000 Ft
Méret: 70 négyzetméter
Azonosító: 11573481
Irodai azonosító: 205704372
Emelet: Félemelet
Építőanyag: Tégla
Fűtés jellege: Geotermikus
Ingatlan állapota: Kitűnő
Komfort fokozat: Összkomfort
Építési év: Új építésű
Egész szobák: 3

Egyéb jellemzők

  • Lift

Hasonló lakás hirdetések

Eladó lakás

Pécs

Pécs Újhegyen, annak is az új kertvárosi családi házas részén, a Nyáros ...

Eladó lakás

Pécs

KIVÁLÓ BEFEKTETÉS! EXKLUZÍV ÚJ ÉPÍTÉSŰ LAKÁSOK, EGYEDI 7%-OS VISSZABÉRLÉSI ...

Eladó lakás

Pécs

Új építés! Babaváróra, CSOK+-ra és START hitelre alkalmas lakások. Eladó ...

Eladó lakás

Pécs, Belváros

Eladó modern lakás Pécs belvárosában Pécs belvárosában, mégis csendes, ...

Hasonló lakás hirdetések

Eladó lakás

Pécs

Pécs Újhegyen, annak is az új kertvárosi családi házas részén, a Nyáros ...

Eladó lakás

Pécs

KIVÁLÓ BEFEKTETÉS! EXKLUZÍV ÚJ ÉPÍTÉSŰ LAKÁSOK, EGYEDI 7%-OS VISSZABÉRLÉSI ...

Eladó lakás

Pécs

Új építés! Babaváróra, CSOK+-ra és START hitelre alkalmas lakások. Eladó ...

Eladó lakás

Pécs, Belváros

Eladó modern lakás Pécs belvárosában Pécs belvárosában, mégis csendes, ...