Eladó lakás Szeged 79 872 330 Ft

Leírás

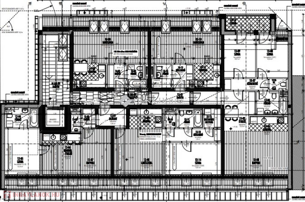
ÚJ LAKÁSOK ELÉRHETŐ ÁRON!Szeged-Alsóváros, Apáca utca közelében 11 lakásos, liftes, kulcsrakész társasház épül, a földszinten 3 db irodával, 6 db garázzsal és 8 db zárt udvari parkolóval. A modern, 5 szintes épület ( fsz., 1.em., 2.em., 3.em. , 4. em.(tetőtér) ) lakásai változatos méretben készülnek, erkéllyel , loggiával rendelkeznek.A lakásokhoz opcionálisan zárt udvari parkoló 2,9 M Ft-ért vagy garázs 8,7 M Ft-ért vásárolható.Várható szerkezetkész átadás: 2024.I.n.évA 13/A. számú lakás az épület 4. emeletén (tetőtér) található, alapterülete nettó 72,73 m2 m2, melyben nappali, konyha-étkező, 2 félszoba , fürdő és loggia került kialakításra.A környezettel való kapcsolatot az 5,94 m2-es loggia biztosítja.Össz terület: 72,73 m2 (1/2 loggiával )Az ingatlan használati megosztással (saját mérőórák) eladó, a közös 4,22 m2-es előtérből nyílik a szomszédos 13/B lakás.Néhány műszaki jellemző:Falazat:- körítő főfalak POROTHERM 30 N+F falazó tégla,- a lakások közötti hanggátló falak SILKA HM 250 NF + GT 25 cm téglából készülnekFűtés – hűtés:- a lakások fűtési illetve hűtési energiaigényét az udvari gépészeti térben elhelyezett 3 db STIEBEL ELTRON HPA-0 13 C Premium tipusú háromfázisú inverteres levegő hőszivattyú biztosítja-a mennyezet fűtési-hűtési rendszer lakásonként egy-egy külön osztó-gyűjtővel csatlakozik a központi hálózatra- napelem előkészítésNyílászárók:- 6 kamrás műanyag nyílászárók 3 rétegű üvegezésselAz épület 10 cm-es grafitos hőszigetelést kap.Az ingatlan elhelyezkedése kiváló, hiszen a Belváros bármely pontja néhány perc alatt elérhető.Közvetlen közelében villamosmegálló, klinikák valamint számos oktatási intézmény található.Az autóút mellett európai szintű kerékpár- és gyalogúton be is sétálhatunk vagy kerekezhetünk a Belvárosba.Ajánlom azoknak, akik modern otthont szeretnének, de befektetési célra is remek lehetőség.MINDEN TOVÁBBI RÉSZLETTEL, VALAMINT MŰSZAKI ALAPRAJZZAL ÉS SZEMÉLYESMEGTEKINTÉSSEL KAPCSOLATBAN VÁROM HÍVÁSÁT!FORDULJON HOZZÁM BIZALOMMAL!

Lakás részletei

Ár: 79 872 330 Ft
Méret: 72 négyzetméter
Azonosító: 11569868
Irodai azonosító: PR033674/LK/19618-5052716
Emelet: Földszint
Építőanyag: Tégla
Fűtés jellege: Hőszivattyú
Ingatlan állapota: Épülő
Komfort fokozat: Összkomfort
Építési év: Új építésű
Egész szobák: 3

Egyéb jellemzők

  • Erkély
  • Klíma
  • Lift

Térkép

Hasonló lakás hirdetések

Eladó lakás

Szeged

Egyedi stílusú ,trendi, dizájn lakás eladó! Szeged Rókus , Belvároshoz ...

Eladó lakás

Szeged

1.emelet 8.-as lakás. Amerikai konyhás nappali + 2 szoba , Erkély: 4,56 ...

Eladó lakás

Szeged

Földszint 1.-es lakás. Akadálymentesített, igény szerint bővíthető. A ...

Eladó lakás

Szeged

Szeged Rókus városrészben , a Damjanich utcában , elegáns , 82 m-es ...

Hasonló lakás hirdetések

Eladó lakás

Szeged

Egyedi stílusú ,trendi, dizájn lakás eladó! Szeged Rókus , Belvároshoz ...

Eladó lakás

Szeged

1.emelet 8.-as lakás. Amerikai konyhás nappali + 2 szoba , Erkély: 4,56 ...

Eladó lakás

Szeged

Földszint 1.-es lakás. Akadálymentesített, igény szerint bővíthető. A ...

Eladó lakás

Szeged

Szeged Rókus városrészben , a Damjanich utcában , elegáns , 82 m-es ...