Eladó telek/földterület Gyál 54 900 000 Ft

Leírás

REMEK LEHETŐSÉG GYÁLON, CSAK NÁLUNK, ÜRES ÉPÍTÉSI TELKEK! Gyálon az Egressy Béni utca környezetében, eladásra kínálunk 2 db. egymás mellett lévő építési telket egyben, vagy külön-külön is.

Igény szerint komplett engedélyeztetett tervekkel 2 db. ikerház megépítésére, összesen 4 db. lakásra!

A víz csatorna bevezetés folyamatban és az elektromos órafogadó kiépítés szintén folyamatban + az EON hálózatfejlesztési hozzájárulás is benne van az árban!
Az áramot elviekben 2027. májusában hozzák, erről írásos EON papírja is van a tulajdonosnak.

A telkek megközelíthetősége egy saját-privát nyeles részen lehetséges, amely 6 méter széles.

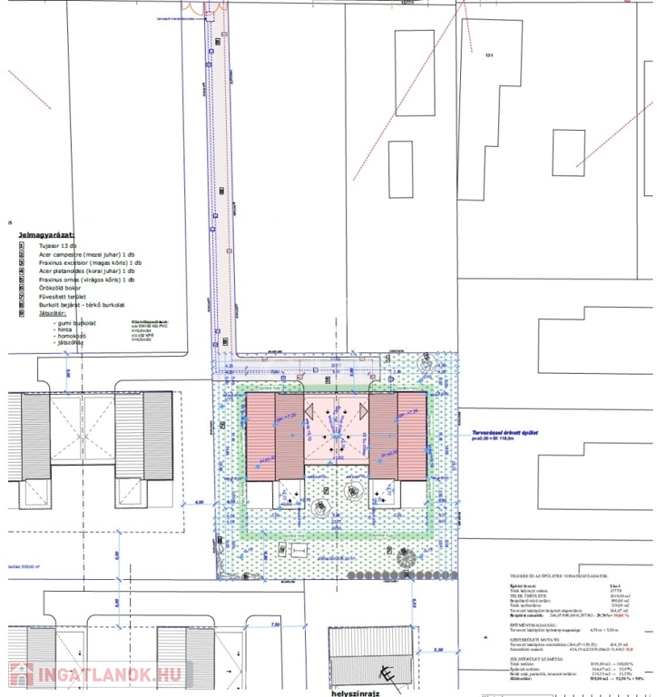
TELEKRE ÉS AZ ÉPÜLETRE VONATKOZÓ ADATOK:
Építési övezet: Lke-1
TELEK TERÜLETE: 1019,00 m2
Beépíthető telek terület: 890,00 m2
Telek nyélterülete: 129,00 m2
Tervezett lakóépület beépített alapterülete: 264,67 m2
Beépítési százalék: 264,67/890,00=0,297382 - 29,74%< 30,00 %
ÉPÍTMÉNYMAGASSÁG :
Tervezett lakóépület építménymagassága: 4,58 m < 5,00 m
SZINTERÜLETI MUTATÓ:
Tervezett lakóépület szintterülete (264,67+159,52): 424,19 m2
Szinterületi mutató: 424,19 m2/1019,00m2= 0,4162 <0,8
ZÖLDTERÜLET SZÁMÍTÁS:
Telek területe: 1019,00 m2 → 100,00 %
Épületek területe: 264,67 m2 → 25,97%
Belső utak, parkolók, teraszok területe: 219,33 m2 → 21,53%
Zöldterület: 535,00 m2 → 52,50 % > 50%

A telkek eladási ára darabonként: 54,9 MFt./db.

Információk szerint, az Egressy út teljes felújítása-kiszélesítése-átépítése 2028-ban várható.

Az ingatlan részletes ismertetése és bemutatása előre egyeztetett időpontban lehetséges, melyet nagyon rugalmasan kezelünk, akár HÉTVÉGÉN is.
További kérdéseivel kapcsolatban várom a jelentkezését.
Amennyiben Önnek a vásárláshoz szüksége lenne hitelre, babaváró kölcsönre, lakástakarékra, stb., kezdeményezheti a kapcsolatfelvételt bankfüggetlen hitelügyintézőinkkel, teljesen DÍJMENTESEN.
Közel 25 év szakmai tapasztalattal rendelkezem, eladó vagy kiadó ingatlana értékesítése vagy bérbeadása esetén, készséggel állok az Ön rendelkezésére is, keressen bizalommal.

Telek/földterület részletei

Ár: 54 900 000 Ft
Méret: 1 019 Négyzetméter
Azonosító: 11604622
Irodai azonosító: 393455
Cím: Egressy Béni utca
Telek: 1019 Négyzetméter
Besorolás: Építési telek
Csatorna: Telken belül
Gáz: Utcában
Jelleg: belterület
Villany: Telken belül
Víz: Telken belül

Térkép

Hasonló telek/földterület hirdetések

Eladó telek/földterület

Gyál

Eladó egy 12.000 m2-es gyáli telek közművekkel a közelben, melynek a ...

Hasonló telek/földterület hirdetések

Eladó telek/földterület

Gyál

Eladó egy 12.000 m2-es gyáli telek közművekkel a közelben, melynek a ...