Kiadó iroda/üzlethelyiség Budapest XIII. ker 990 000 Ft

Leírás

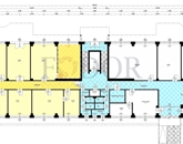
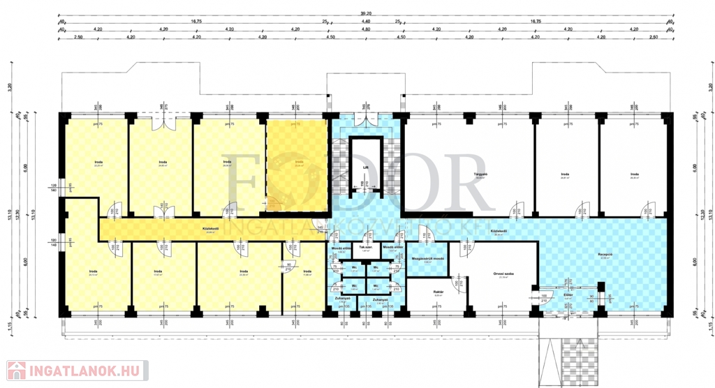
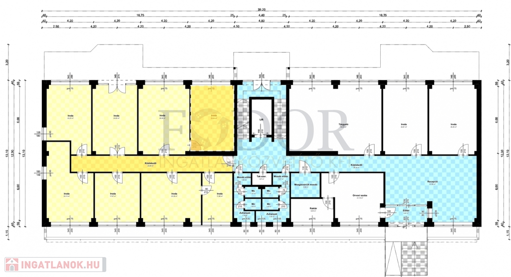
A XIII. kerület Angyalföld részén, a Topolya utcában kínálok kiadásra 8 db eltérő méretű irodahelyiséget összesen 190 m² alapterületen. Az ingatlan magában foglal egy mágneskártyával nyitható, privát, lezárt folyosót is. Az irodahelyiségek között gipszkarton falak választják el egymást, így könnyen alakíthatók. Az alaprajzon sárgával jelölt területek a kiadó irodák.
Jelenleg az épületben több iroda is működik, és a portaszolgálat munkaidőben segítséget nyújt.
A bérleti díj a következő szolgáltatásokat tartalmazza:
• 7 db parkolóhely, melyek közül 2 db VIP parkoló az A jelű főépület előtti térkövezett
parkolóban található, 5 db pedig az ingatlan zárt belső parkolójában, kijelölt
helyeken.
• Havi 6 óra térítésmentes tárgyalóhasználat a földszinti, 50 m² alapterületű VIP
tárgyalóban, 100.000 Ft + ÁFA értékben.
• Kedvezményes vállalati internet szolgáltatás a 8 db irodaegység számára, WIFI és
LAN/UTP hálózaton.
• 20 db, az épület biztonsági rendszerére feltanított mágneskártya térítésmentes
biztosítása.
• Posta szolgáltatás, küldemények kezelése térítésmentesen az irodaház recepcióján
(meghatalmazás szükséges a recepciósok részére).

Az irodák bérleti díja és a parkolók összesen bruttó 990.000 Ft.
A bérleményhez tartozó üzemeltetési költségtalány díja, a szerződés mellékletét képező, a szerződés napján érvényes szolgáltatói díjak figyelembevételével bruttó 91.000 Ft.
Az irodaház hosszú távú bérlőt keres. Szerződéskötéshez egy havi bérleti díj és két havi kaució szükséges.

Keressen bizalommal a hét bármely napján, ha felkeltette érdeklődését, illetve további kérdései vannak.

IRODÁNK INGYENES HITELÜGYINTÉZÉSSEL, TANÁCSADÁSSAL, SZÁMOS BANK AJÁNLATÁVAL ÉS ÚJ CSOK PLUSZ FOLYÓSÍTÁSÁVAL VÁRJA ÜGYFELEIT!

Iroda/üzlethelyiség részletei

Ár: 990 000 Ft/hónap
Méret: 180 négyzetméter
Azonosító: 11562959
Irodai azonosító: 328404
Cím: Topolya utca
Jelleg: iroda

Egyéb jellemzők

  • Lift

Hasonló iroda/üzlethelyiség hirdetések

Kiadó iroda/üzlethelyiség

Budapest XIII. ker

XIII.kerületben Béke úthoz közel kiadó egy 200nm-es földszinti, nagy ...

Kiadó iroda/üzlethelyiség

Budapest XIII. ker

A XIII. kerület frekventált, mégis jól strukturált és dinamikusan fejlődő ...

Kiadó iroda/üzlethelyiség

Budapest XIII. ker

A Irodaház 5.800 m2 loft jellegű irodaterületet kínál, amelyben a közvetlen ...

Kiadó iroda/üzlethelyiség

Budapest XIII. ker

A XIII. kerület frekventált, mégis jól strukturált és dinamikusan fejlődő ...

Hasonló iroda/üzlethelyiség hirdetések

Kiadó iroda/üzlethelyiség

Budapest XIII. ker

XIII.kerületben Béke úthoz közel kiadó egy 200nm-es földszinti, nagy ...

Kiadó iroda/üzlethelyiség

Budapest XIII. ker

A XIII. kerület frekventált, mégis jól strukturált és dinamikusan fejlődő ...

Kiadó iroda/üzlethelyiség

Budapest XIII. ker

A Irodaház 5.800 m2 loft jellegű irodaterületet kínál, amelyben a közvetlen ...

Kiadó iroda/üzlethelyiség

Budapest XIII. ker

A XIII. kerület frekventált, mégis jól strukturált és dinamikusan fejlődő ...