Eladó családi ház Budapest II. ker 120 000 000 Ft

Leírás

Önálló kivitelezési lehetőség!

A rugalmas építő rögtönzött akciója keretén belül lehetősége van társként (E napló szinten) beszállni a kivitelezésbe, oly módon, hogy az egyik lakást ő megtartaná!!!

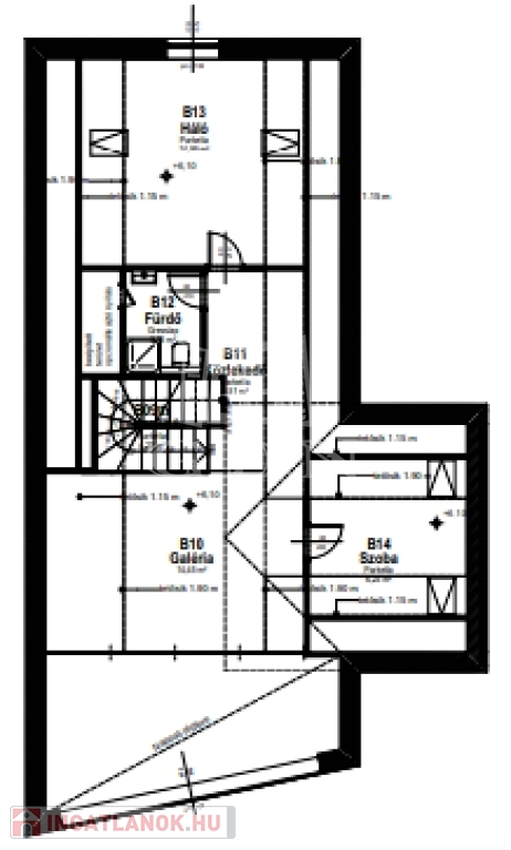
A tájvédelmi körzet szomszédságában elhelyezkedő luxus 311 nm-es lakóépület magában foglal két egymástól külön álló, azonban tetszés szerint egybe is nyitható 2 lakóegységet (melyek nettó alapterülete 158 m2 és 153 m2). A lakások a későbbiekben akár társas házként is funkcionálhatnak.

A lehetőségként kínált közös kivitelezés a közvetlen kertkapcsolattal rendelkező, 158 m2-es lakásra vonatkozik!

Az előrehaladott állapotú építkezés jelenleg 60 %-os készültségnél tart, amely bármikor megtekinthető, megismerve ezáltal a burkolásokat, illetve az átgondolt külső-belső kivitelezési munkálatok előkészítésének magas minőségét. A 20 éves tapasztalattal és számtalan referenciával rendelkező kivitelező a megegyezéstől számítva 4 hónapon belül vállalja a kulcsrakész átadást 60 M forint kivitelezési áron!

Az épület elhelyezkedése DNy-i tájolású, ily módon a hatalmas üvegfelületek páratlan optikai látványt és természetközeli élményt biztosítanak az exkluzív élettérnek!

A jövőbeni költséghatékony fenntarthatóság érdekében a fűtés levegő-hőszivattyús rendszerrel, illetve padló és mennyezet hűtés-fűtéssel kerül beépítésre.

Egyéb extrák:
- elektromos alumínium redőny,
- elektromos szekcionált Hörmann garázskapuk,
- riasztó rendszer kiépítés,
- hűtő-fűtő klíma,
- fürdőkben kiegészítő törölköző szárítók,
- fényezett egyedi beltéri nyílászárók,
- külső üvegkorlát,
- kiépített kaputelefon.

Fűtés:

- elsődleges: hőszivattyú, mennyezeti hűtéssel, illetve padlófűtéssel,

- másodlagos: hűtő-fűtő klíma

Bővebb műszaki tartalmat igény szerint küldök!

Családi ház részletei

Ár: 120 000 000 Ft
Méret: 158 négyzetméter
Azonosító: 11559800
Irodai azonosító: 386494
Cím: Pesthidegkút
Telek: 400 négyzetméter
Ingatlan állapota: Kitűnő
Jelleg: családi ház
Építőanyag: Tégla
Fűtés jellege: Geotermikus
Fűtés módja: Hőszivattyú
Komfort fokozat: Összkomfort
Kor: Új építésű
Szintek száma: 2 szint
Egész szobák: 8

Egyéb jellemzők

  • Csatorna
  • Garázs
  • Pince
  • Terasz

Térkép

Hasonló családi ház hirdetések

Eladó családi ház

Budapest II. ker

Pesthidegkúton örökpanorámás lakások ajándék konyhabútorral eladók! Tájvédelmi ...

Eladó családi ház

Budapest II. ker

II. KERÜLETI CSALÁDI HÁZ ELADÓ – PESTHIDEGKÚT-ÓFALU SZÍVÉBEN! Képzelje ...

Eladó családi ház

Budapest II. ker

***II.kerület, HIDEGKÚTON, a TEMPLOM utcában CSALÁDI HÁZ eladó!*** ***KIZÁRÓLAG ...

Hasonló családi ház hirdetések

Eladó családi ház

Budapest II. ker

Pesthidegkúton örökpanorámás lakások ajándék konyhabútorral eladók! Tájvédelmi ...

Eladó családi ház

Budapest II. ker

II. KERÜLETI CSALÁDI HÁZ ELADÓ – PESTHIDEGKÚT-ÓFALU SZÍVÉBEN! Képzelje ...

Eladó családi ház

Budapest II. ker

***II.kerület, HIDEGKÚTON, a TEMPLOM utcában CSALÁDI HÁZ eladó!*** ***KIZÁRÓLAG ...