Eladó családi ház Gyál 112 990 000 Ft

Leírás

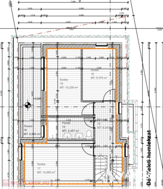
Eladó 4 szobás új építésű ikerház Gyál csendes, zöldövezeti részén!

Ez a kivételes ingatlan 122 m² lakótérrel és és 201 m2-es saját kerttel várja új tulajdonosát a város egyik kedvelt, nyugodt utcájában. A ház belső szintes kialakítása maximálisan kihasználja a teret, kulcsrakész állapotának köszönhetően pedig az átadást követően 2025. decemberében költözhető.

A ház négy kényelmes szobával, egy tágas nappalival, valamint két modern fürdőszobával rendelkezik. Az amerikai konyha prémium anyagokból készült, így ideális helyszínt nyújt a családi étkezéseknek és baráti összejöveteleknek. A nappaliból közvetlen kertkapcsolat nyílik a parkosított udvarra.
Az emeleti szobához panorámás erkély 9 m2 is tartozik.

Műszaki tartalom és felszereltség:
- Monolit vasbeton lemezalap, vízzáró rendszerrel
- Falazat hő és hangszigetelt 30 cm Leier külső falazat, Silka hanggátló elválasztó fallal
- Homlokzati hőszigetelés: 12 cm dryvit rendszer
- Földrengésbiztos födémrendszer: 25 cm vastag monolit vasbeton födém, az emelet feletti zárófödém is monolit vasbeton szerkezettel készül.
- Tetőtér szigetelése 20 cm üveggyapot a födémen
- Tetőszerkezet: Bramac betoncserép fedéssel, bádogozás korrózió mentes színezett alumínium lemez,
- Nyílászárók: 3 rétegű üvegezésű, kívül aranytölgy-belül fehér színű műanyag ablakok
- belső ajtók CPL fóliás felülettel, utólagosan szerelhető tokkal, katalógusból választható színben és ajtólappal, belső párkányok műanyag, külső párkányok alumíniumból készülnek.
- Bejárati ajtó : MABISZ minősítésű biztonsági ajtó
- Fűtés-hűtés: korszerű monoblokkos hőszivattyús rendszer, padlófűtéssel és fal-coil egységekkel
- Árnyékolástechnikai előkészítés: vakolható redőnyszekrények, hőszigetelt alumínium redőny, színe megegyezik az ablakok külső színével, szúnyoghálóval
- Válaszfalak: 10 cm Porotherm/ Leier ,Silka hanggátló tégla elválasztó falak
- Választható burkolatok , belső ajtók, szaniterek a műszaki tájékoztató szerint
- A lakásban a festés színe fehér.
- Az épület bejáratánál kaputelefon kerül felszerelésre, amely a beszélgetésen kívül az elektromos ajtózár működtetést is biztosítja a lakásból.
- A használati melegvíz ellátása a levegő-víz hőszivattúval fűtött közvetett tárolóval..
- A hőszivattyú a lakások fűtéséről gazdaságosan gondoskodik a padló fűtésnek köszönhetően. A fürdőkben elektromos törölközőszárító radiátor kerül elhelyezésre.
- A fűtéshez/ hűtéshez kiegészítő oldalfali fan cool is kapcsolódik a hálókban és a nappaliban.
Igény esetén felár ellenében helyiségenkénti vezérlés és okos otthon rendszer alakítható ki.
- A riasztó előkészítése minden lakáshoz biztosított.
- Lakásonként önálló villanyóra
- LED világítás , redőnymotor előkészítés
- Elektromos garázskapu,
-Optikai internetkábel előkészítés
- Saját parkosított kert használati megosztással,
- 6 cm vastag térkő burkolat, kocsibeállóval

Az ingatlanhoz garázs lehetőség is tartozik, amely kényelmes parkolást biztosít. Ne hagyja ki ezt a remek lehetőséget, hogy egy igazán különleges otthon tulajdonosa lehessen Gyál csendes ,rendezett környékén!

Keressen bizalommal a további részletekért és a megtekintés időpontjának egyeztetéséért!
(További képekért és információkért kérem hívjon!)

Családi ház részletei

Ár: 112 990 000 Ft
Méret: 122 négyzetméter
Azonosító: 11573073
Irodai azonosító: 556238
Telek: 574 négyzetméter
Ingatlan állapota: Kitűnő
Jelleg: ikerház
Építőanyag: Tégla
Fűtés jellege: Hőszivattyú
Egész szobák: 4
Nappalik: 1

Egyéb jellemzők

  • Beépíthető tetőtér
  • Csatorna
  • Garázs
  • Melléképület
  • Pince
  • Terasz

Hasonló családi ház hirdetések

Eladó családi ház

Gyál

Egyedi hangulatú családi ház Gyál szívében – ahol ...

Eladó családi ház

Gyál

AZ ELSŐ KÉT VEVŐ SZÁMÁRA BRUTTÓ 3.000.000. FT-OS KONYHABÚTOR HOZZÁJÁRULÁS ...

Eladó családi ház

Gyál

Gyál egyik csendes, családbarát részén eladó két igényesen megtervezett, ...

Eladó családi ház

Gyál

Gyál egyik csendes, családbarát részén eladó két igényesen megtervezett, ...

Hasonló családi ház hirdetések

Eladó családi ház

Gyál

Egyedi hangulatú családi ház Gyál szívében – ahol ...

Eladó családi ház

Gyál

AZ ELSŐ KÉT VEVŐ SZÁMÁRA BRUTTÓ 3.000.000. FT-OS KONYHABÚTOR HOZZÁJÁRULÁS ...

Eladó családi ház

Gyál

Gyál egyik csendes, családbarát részén eladó két igényesen megtervezett, ...

Eladó családi ház

Gyál

Gyál egyik csendes, családbarát részén eladó két igényesen megtervezett, ...