Eladó családi ház Kakucs 96 900 000 Ft

Leírás

ELADÓ 3 ÉVES TÁROLÓKAPCSOLATOS IKERHÁZFÉL KAKUCSON, KÖZÖS FALAK NÉLKÜL!

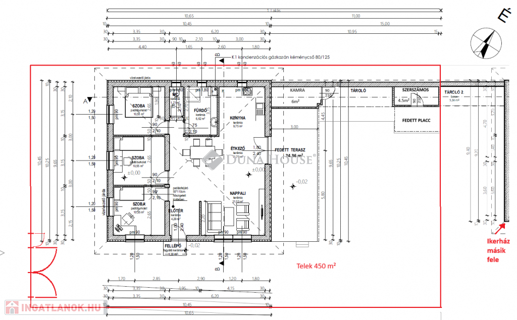
Eladásra kínálunk Kakucson egy 2023-ban elkészült 90 m2 hasznos alapterületű ikerházfelet 450 m2-es saját telekrésszel.

Helyiségeket tekintve az ingatlan rendelkezik 3 külön nyíló hálószobával, egy amerikai-konyhás nappalival és étkezővel, fürdővel és külön WC-vel és egy előtérrel.
A hasznos alapterületen kívül egy 24 m2-es fedett terasz, 6 m2-es kamra és egy 4,5 m2-es tároló is kialakításra került.

ÉPÜLET:Az épület beton alapra téglából, fa födémmel és tetőszerkezettel, betoncserép fedéssel épült.10 cm homlokzati, 10 cm lépésálló lábazati- és 30 cm-es ásványgyapot födémszigeteléssel rendelkezik.
Prémium nyílászárók: 3 rétegű üvegezéssel ellátott, 6 kamrás profilok a kiváló hang - és hővédelemért.
Fűtését ARISTON kondenzációs kazán biztosítja padlófűtéses és radiátoros hőleadással.

EXTRÁK:- WIFI-s hővisszanyerős szellőztető rendszer, hűtő-fűtő klíma és egy törölközőszárító- 3 fázisú elektromos kiállás napelemes rendszer inverterének fogadására- Ethernet- és koaxiális csatlakozás minden szobában- Kamerás kaputelefon és kamerarendszer- Elektromos kapu távnyitással és rádióvezérlésű autókapu.

KERT:- 450 m2 alapterületű saját, körbekerített kertrész- 48 m²-es murvázott gépkocsibeálló több autó parkolására is- 2350 liter vízgyűjtő kapacitás (1000 literes tartály szivattyúval)- magaságyások, üvegház.

Az ingatlan saját helyrajziszámmal rendelkezik, jogilag teljesen külön funkcionál a szomszédos ikerházféltől.

ÖRÖMMEL ÁLLOK RENDELKEZÉSÉRE A DUNA HOUSE KÍNÁLATÁBAN MEGTALÁLHATÓ ÖSSZES INGATLANNAL KAPCSOLATBAN.
HÉTVÉGÉN IS VÁROM MEGTISZTELŐ HÍVÁSÁT!

Referencia szám: HZ089054

Családi ház részletei

Ár: 96 900 000 Ft
Méret: 90 négyzetméter
Azonosító: 11606561
Irodai azonosító: HZ089054-5177442
Telek: 450 négyzetméter
Összesített energetikai besorolás: B
Ingatlan állapota: Kitűnő
Jelleg: ikerház
Építőanyag: Tégla
Fűtés jellege: Cirkó
Fűtés módja: Gáz
Komfort fokozat: Összkomfort
Kor: 1-5 éves
Szintek száma: Földszintes
Egész szobák: 4

Egyéb jellemzők

  • Garázs

Térkép

Hasonló családi ház hirdetések

Eladó családi ház

Kakucs

◉ Modern, energiatakarékos új építésű ikerház eladó – Budapesttől ...

Eladó családi ház

Kakucs

ÚJ ÉPÍTÉSŰ INGATLANOK KAKUCSON! HAMAROSAN KÖLTÖZHETŐ! Dél-Pest megye ...

Eladó családi ház

Kakucs

Kakucson nyugodt mellékutcájában kínáljuk ezt az alaprajzról előfoglalható, ...

Eladó családi ház

Kakucs

Eladó kulcsra kész ingatlanok Pest Vármegyében, Kakucs községben! CSOK ...

Hasonló családi ház hirdetések

Eladó családi ház

Kakucs

◉ Modern, energiatakarékos új építésű ikerház eladó – Budapesttől ...

Eladó családi ház

Kakucs

ÚJ ÉPÍTÉSŰ INGATLANOK KAKUCSON! HAMAROSAN KÖLTÖZHETŐ! Dél-Pest megye ...

Eladó családi ház

Kakucs

Kakucson nyugodt mellékutcájában kínáljuk ezt az alaprajzról előfoglalható, ...

Eladó családi ház

Kakucs

Eladó kulcsra kész ingatlanok Pest Vármegyében, Kakucs községben! CSOK ...