Eladó családi ház Kakucs 99 000 000 Ft

Leírás

◉ Modern, energiatakarékos új építésű ikerház eladó – Budapesttől karnyújtásnyira! ◉

Szeretne a főváros közelében élni, mégis nyugodt, kertvárosi környezetben, alacsony rezsivel? Ez a nettó 90,31 m²-es, 3 hálószobás ikerház ideális választás mindazok számára, akik a minőségi kivitelezést, az átgondolt elrendezést és a saját kert nyújtotta szabadságot keresik.

Az ingatlan a hátsó telken található szomszédos házzal egy 15 méter hosszú, félig fedett tárolón keresztül kapcsolódik. A két lakóegység külön helyrajzi számon szerepel, így jogilag teljesen rendezett, önálló ingatlanként funkcionál.

◉ Kiváló elhelyezkedés – közel a városhoz, távol a nyüzsgéstől ◉

◉ Átgondolt belső elrendezés – élhető, jól kihasználható terek ◉

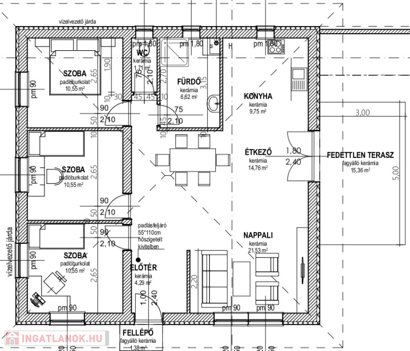
➡ Nappali: 21,53 m²
➡ Étkező: 14,76 m²
➡ Konyha: 9,75 m²
➡ 3 különnyíló hálószoba: egyenként 10,55 m²
➡ Fürdőszoba: 6,62 m²
➡ Előtér: 4,29 m²
➡ Külön WC: 1,71 m²

Kültér:
➡ 24,36 m²-es, UV-szűrős polikarbonáttal fedett terasz
➡ 6 m²-es szigetelt kamra
➡ 4,5 m²-es szerszámtároló

Mert a ház nem ér véget a falaknál.

◉ A kert – az önfenntartás és a pihenés tere ◉

A 450 m²-es, teljesen kiépített telek gondosan megtervezett, ugyanakkor teret hagy az új tulajdonos elképzeléseinek is.

➡ Előkészített magaságyások és üvegház a saját termesztéshez
➡ Összesen 2350 liter vízgyűjtő kapacitás (1000 literes tartály szivattyúval)
➡ A felesleges csapadékvíz elvezetése szikkasztó blokkokkal megoldott
➡ 48 m²-es murvázott gépkocsibeálló, ahol két autó kényelmesen elfér

◉ Kiemelkedő műszaki tartalom és energiatudatos megoldások ◉

➡ 10 cm homlokzati és lépésálló lábazati szigetelés
➡ 30 cm ásványgyapot födémszigetelés
➡ 3 rétegű, 6 kamrás prémium nyílászárók

➡ Kondenzációs kazán: Ariston
– Padlófűtés a közös terekben
– Radiátorok a hálószobákban

➡ Wifi-s hővisszanyerős szellőztető rendszer
➡ A++ Fisher hűtő-fűtő klíma

Előkészített jövő:
➡ 3 fázisú elektromos kiállás napelemes rendszer inverterének fogadására
➡ Ethernet- és koaxiális csatlakozás minden szobában
➡ Kamerás kaputelefon: Hikvision
➡ Elektromos kapu távnyitással és rádióvezérlésű autókapu

Az ingatlan teljes építési dokumentációja – a vezetékek elhelyezkedését bemutató fotókkal együtt – rendelkezésre áll, így a műszaki állapot teljes mértékben transzparens.

Az ingatlan a község központjában található, környezetében fiatalos, modern lakóházak és 300 m távolságra a közvetlen természet. Bölcsőde, óvoda, iskola gyalog 5 perc.
A községben minden megtalálható ami a hétköznapi élethez nélkülözhetetlen:
Önkormányzat ( Polgárőrség szigorúan üzemel) bölcsödék, óvoda iskola, orvosi rendelők, gyógyszertár, számos bolt.
A környéken számos a lehetőség wellness és szabadidős tevékenységhez , kúriák, udvarházak, lovardák, autó-motor pálya rendezvényekkel ( Kakucs Ring)
Budapestre jutás tömegközlekedéssel a félóránként induló, Népligetig közlekedő Volánbusz járattal lehetséges, továbbá a szomszéd településen áthaladó vasúttal is megközelíthető.
Budapest autóval az M5-ösön 30–40 perc alatt elérhető.
Legközelebbi város Dabas, Kakucstól 10 percre, ahol minden megtalálható, szolgáltatók (Bankok, Földhivatal, Kormányablak, NAV, Bíróság, Rendőrség, Gimnázium, Szakiskola) továbbá a bevásárlásokat is helyben lehet intézni ( Lidl,Tesco, Aldi, Spar, Pepco, rengeteg kis üzlet, havonta kirakodóvásár).

Irodánk teljes körű INGYENES hitelügyintézést vállal az ország összes bankjával! Kulcsátadásig követjük az ügymenetet. Szerződéskötéshez, és bármilyen jogi kérdésben saját ügyvédeink állnak rendelkezésre !
Ha megtekintené keressen akár hétvégén is!

Családi ház részletei

Ár: 99 000 000 Ft
Méret: 90 négyzetméter
Azonosító: 11602788
Telek: 450 négyzetméter
Ingatlan állapota:
Jelleg: ikerház
Építőanyag: Kérdezzen rá a hirdetőtől »
Fűtés jellege: Cirkó
Szintek száma: 1 szint
Egész szobák: 4

Egyéb jellemzők

  • Csatorna
  • Garázs
  • Kábel TV
  • Melléképület
  • Parketta
  • Pince
  • Terasz

Hasonló családi ház hirdetések

Eladó családi ház

Kakucs

ÚJ ÉPÍTÉSŰ INGATLANOK KAKUCSON! HAMAROSAN KÖLTÖZHETŐ! Dél-Pest megye ...

Eladó családi ház

Kakucs

Eladó kulcsra kész ingatlanok Pest Vármegyében, Kakucs községben! CSOK ...

Eladó családi ház

Kakucs

ELADÓ 3 ÉVES TÁROLÓKAPCSOLATOS IKERHÁZFÉL KAKUCSON, KÖZÖS FALAK NÉLKÜL! Eladásra ...

Eladó családi ház

Kakucs

Eladó kulcsra kész ingatlanok Pest Vármegyében, Kakucs községben! CSOK ...

Hasonló családi ház hirdetések

Eladó családi ház

Kakucs

ÚJ ÉPÍTÉSŰ INGATLANOK KAKUCSON! HAMAROSAN KÖLTÖZHETŐ! Dél-Pest megye ...

Eladó családi ház

Kakucs

Eladó kulcsra kész ingatlanok Pest Vármegyében, Kakucs községben! CSOK ...

Eladó családi ház

Kakucs

ELADÓ 3 ÉVES TÁROLÓKAPCSOLATOS IKERHÁZFÉL KAKUCSON, KÖZÖS FALAK NÉLKÜL! Eladásra ...

Eladó családi ház

Kakucs

Eladó kulcsra kész ingatlanok Pest Vármegyében, Kakucs községben! CSOK ...