Eladó családi ház Kakucs 99 000 000 Ft

Leírás

Medvételre kínálunk Pest vármegye M5 autópálya vonzásában, Kakucs település jó megközelítésű de mégis nyugodt környezetében, egy nettó 90,31 m²-es,Nappali+ 3 hálószobás ikerházat.
Az ingatlan 450nm-es ideális méretű fenntartható telken 2022-ben épült B30-‎Porotherm téglából,10cm-es homlokzati szigeteléssel, 3 rétegű nyílászárókkal, és minőségi cseréptetővel.
Az épület a hátsó telken lévő szomszédos házzal, egy félig fedett tárolón keresztül (15m-es hosszban) van összekapcsolva és mindkét telekrész külön helyrajzi számon szerepel.

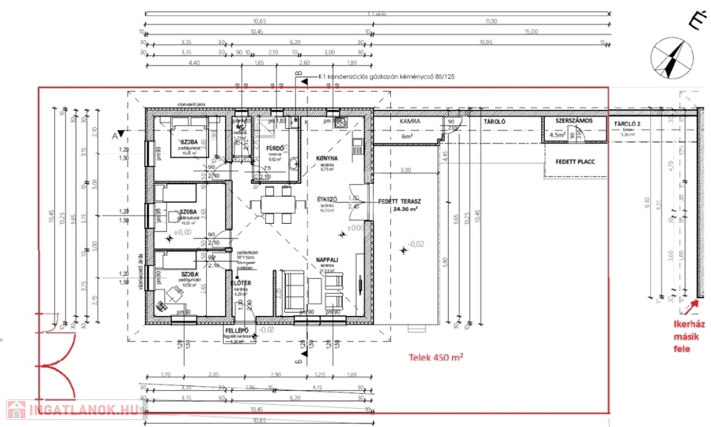
Helyiségek:
➡ Nappali: 21,53 m² | Étkező: 14,76 m² | Konyha: 9,75 m²
➡ 3 különálló hálószoba: egyenként 10,55 m²
➡ Fürdő: 6,62 m² | Előtér: 4,29 m² | WC: 1,71 m²
➡ Kültér: 24,36 m²-es hatalmas UV szűrős polikarbonáttal fedett terasz, 6 m² szigetelt kamra és 4,5 m² szerszámos.

A 450 nm-es telek minden szeglete gondosan tervezett és teljesen kiépített. A kertben magaságyások és üvegház, található.
A 2350 liter vízgyűjtőkapacitás is (az 1000 literes tartály szivattyúval ellátott) A tartályokban felgyülemlett plusz vízmennyiség elvezetése szikkasztó blokkokkal megoldott. A gépkocsik számára egy 48 m²-es murvázott beálló biztosított két kocsi részére.

Hőszigetelés:

-B30-‎Porotherm téglából+10cm-es homlokzati szigetelés,
-10 cm lépésálló lábazati- és 30 cm-es ásványgyapot födémszigetelés,
-Prémium nyílászárók: 3 rétegű üvegezéssel ellátott, 6 kamrás profilok a kiváló hang - és hővédelemért,
-Gépészet: Ariston kondenzációs kazán (közös tereken padlófűtés, hálószobákban radiátorok, Wifi-s hővisszanyerős szellőztető rendszer és A++ Fisher hűtő-fűtő klíma,
-A kamrában 3 fázisú elektromos kiállás került kialakításra, lehetőség biztosít napelemes rendszer inverterének fogadására.


A modern otthoni infrastruktúrát erősíti, hogy minden szobában és a nappaliban is Ethernet- és koaxiális csatlakozások állnak rendelkezésre. A biztonságról és a kényelemről Hikvision kamerás kaputelefon,elektromos kapu távnyitással, rádióvezérlésű gépkocsi-kapunyitó rendszerrel, további információért valamint rugalmas megtekintésért hívjon bizalommal a hét minden napján.

INGYENES hitel tanácsadás, CSOK ügyintézés!
BANKFÜGGETLEN hitelcentrumunk minden elérhető bank és hitelintézet ajánlatát versenyezteti az Ön kedvéért, ráadásul DÍJMENTESEN.

Családi ház részletei

Ár: 99 000 000 Ft
Méret: 90 négyzetméter
Azonosító: 11602784
Irodai azonosító: 393152
Cím: Központ vonzásában Nappali+3 hálós!
Telek: 450 négyzetméter
Ingatlan állapota: Kitűnő
Jelleg: ikerház
Építőanyag: Tégla
Fűtés jellege: Cirkó
Fűtés módja: Gáz
Komfort fokozat: Összkomfort
Kor: 1-5 éves
Szintek száma: Földszintes
Egész szobák: 4

Egyéb jellemzők

  • Csatorna
  • Garázs
  • Pince
  • Terasz

Térkép

Hasonló családi ház hirdetések

Eladó családi ház

Kakucs

◉ Modern, energiatakarékos új építésű ikerház eladó – Budapesttől ...

Eladó családi ház

Kakucs

ÚJ ÉPÍTÉSŰ INGATLANOK KAKUCSON! HAMAROSAN KÖLTÖZHETŐ! Dél-Pest megye ...

Eladó családi ház

Kakucs

Eladó kulcsra kész ingatlanok Pest Vármegyében, Kakucs községben! CSOK ...

Eladó családi ház

Kakucs

Eladó kulcsra kész ingatlanok Pest Vármegyében, Kakucs községben! CSOK ...

Hasonló családi ház hirdetések

Eladó családi ház

Kakucs

◉ Modern, energiatakarékos új építésű ikerház eladó – Budapesttől ...

Eladó családi ház

Kakucs

ÚJ ÉPÍTÉSŰ INGATLANOK KAKUCSON! HAMAROSAN KÖLTÖZHETŐ! Dél-Pest megye ...

Eladó családi ház

Kakucs

Eladó kulcsra kész ingatlanok Pest Vármegyében, Kakucs községben! CSOK ...

Eladó családi ház

Kakucs

Eladó kulcsra kész ingatlanok Pest Vármegyében, Kakucs községben! CSOK ...