Eladó családi ház Üllő 109 000 000 Ft

Leírás

NAGYCSALÁDOSOK FIGYELEM!

Üllőn a Sportliget lakóparkban, megvételre kínálok egy 2018-ba épült ikerház felet.

Az ingatlan Leiertherm 30N+F kerámia téglából, 10 cm-es homlokzati szigetelőrendszerrel, 10 cm-es YTONG válaszfalakkal, 15 cm-es mennyezeti paplan szigeteléssel épült, 2 rétegű műanyag nyílászáróval szerelt, 3 külön nyíló szobával, dupla komforttal nagy amerikai konyhás nappalival rendelkezik. Fűtését, egy CALEO elektromos rendszer adja.

2019-ben SolarEdge 5,4 kWp napelem rendszer lett telepítve, mely az ingatlan teljes elektromos rendszerét táplálja.
Átlagos éves termelés stabilan 4 - 5,2 MWh.

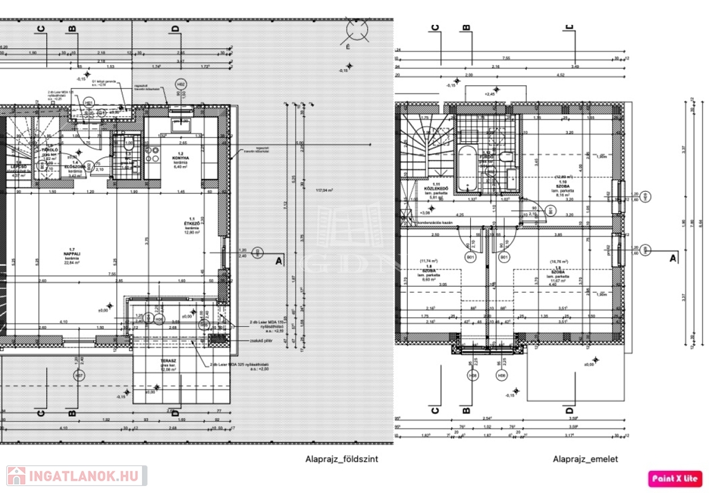
A földszinten található egy gépészeti helyiség, wc kézmosóval, kényelmes nagy nappali konyhával, közvetlen kertkapcsolattal.

Az emeleten három teljes értékű külön nyíló szoba és egy kádas fürdőszoba lett kialakítva.

A kizárólagos használatú 250 nm-es kert, kényelmes kikapcsolódást nyújt és gyorsan karbantartható.

1 személyautó parkolására van lehetőség.

Közlekedés. Budapest belvárosa 35 - 60 perc autóval, Üllő vasútállomás, 17 perc gyalogosan, 4 perc autóval.

Amennyiben hirdetésem felkeltette érdeklődését, várom hívását a hét bármely napján. tp

Családi ház részletei

Ár: 109 000 000 Ft
Méret: 91 négyzetméter
Azonosító: 11602107
Irodai azonosító: 393046
Cím: Bozsik József körút
Telek: 250 négyzetméter
Ingatlan állapota:
Jelleg: ikerház
Építőanyag: Tégla
Fűtés jellege: Egyedi
Komfort fokozat: Dupla komfort
Kor: 6-10 éves
Szintek száma: 1 szint
Egész szobák: 4

Egyéb jellemzők

  • Csatorna
  • Garázs
  • Pince
  • Terasz

Térkép

Hasonló családi ház hirdetések

Eladó családi ház

Üllő

**ELADÓ HŐSZÍVATTYÚS ÚJÉPÍTÉSŰ, KÜLÖNÁLLÓ családi ház Üllőn, ...

Eladó családi ház

Üllő

Álmai Otthona Üllőn! Fedezze fel az új építésű, modern családi házak ...

Eladó családi ház

Üllő

Eladó teljeskörűen felújított álomotthon Üllőn!Üllő egyik legkedveltebb, ...

Eladó családi ház

Üllő

Megvételre kínálunk Üllőn egy új építésű, hőszivattyús, ...

Hasonló családi ház hirdetések

Eladó családi ház

Üllő

**ELADÓ HŐSZÍVATTYÚS ÚJÉPÍTÉSŰ, KÜLÖNÁLLÓ családi ház Üllőn, ...

Eladó családi ház

Üllő

Álmai Otthona Üllőn! Fedezze fel az új építésű, modern családi házak ...

Eladó családi ház

Üllő

Eladó teljeskörűen felújított álomotthon Üllőn!Üllő egyik legkedveltebb, ...

Eladó családi ház

Üllő

Megvételre kínálunk Üllőn egy új építésű, hőszivattyús, ...